查看完整案例

收藏

下载

翻译
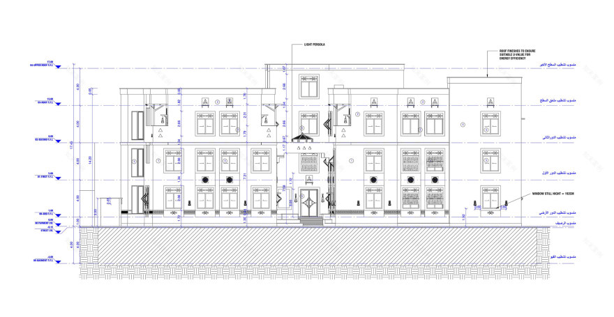
Al Mahdiyah Residential Complex
(4 Villas and 1 Apartment Building)
Main Consultant: Adeem Consultants
Scope: Architectural Design and IFT Package
according to Wadi Hanifa Code and Najdi Architectural Style
Riyadh - Saudi Arabia
2024
Apartment Building Design
Villas Design
Elevations IFT Drawings
客服
消息
收藏
下载
最近

















