查看完整案例

收藏

下载
从现代极简的利落,到法式浪漫的柔情。黑白两色与肌理协奏,呈现丰盈细腻的变化。光的痕迹在墙面与转角处游走。跟随其驻足凝望,沉浸于某一隅的静谧。克制底色之上,仍能盛放无限可能。
From modern to French, a gentle shift. Where spaces reveal their subtle transformations. Follow light that wanders through the rooms. Discover the many possibilities of beauty.
门头以黑白为底,删繁就简,至净之中,沉淀沉稳气度。
层叠木片勾勒骏马昂扬轮廓,光影之下,酝酿着向前奔涌的力量。
The entrance, in black and white Finds a quiet depth within its simplicity
Layered wood traces the horse’s form Gathering the force of a gallop
电视柜循横向线条延展,拉阔视觉边界。木作如秋阳晒过的旧书,带着岁月的温厚。金属等材质轻缀其间,晕染现代意趣。灯光轻托起轮廓,赋予柜体悬浮般的轻盈感。
The TV unit stretches in horizontal lines. Wooden cabinetry holding the warmth of time. Metal accents lend a modern edge. While light lifts it into a floating presence.
综合柜以顶天立地之势,承起沉稳气场。白色布纹背板肌理如经纬编织,纵横铺陈,与胡桃木纹理隔空交错,形成流动意韵。收纳模块随心组合,让生活习惯自在安放。
The integrated cabinet stands floor to ceiling. The fabric-textured back panel weaving vertical grain, crossing paths with the wood’s horizontal flow. Storage modules arrange freely as desired.
厨房以白为基底,黑棕双色点缀,色彩平衡、功能聚合,让烹饪变为享受。
岛台自然成为料理备餐、亲友围聚的所在,动线洄游,高效与便捷藏在每一寸设计中。
The kitchen takes white as its base, Accented with touches of black and brown.
Family gathers at the island to prepare meals, Convenience tucked into every inch of design.
以白为主体,延续展厅极简的静谧感,将两种气质迥异的睡梦场景徐徐展开。法式角花雕琢细节,利落线条刻画轮廓,光影轻抚,静享松弛安然的日常。
The bedroom maintains the gallery’s quiet, Shaping two distinct scenes of sleep. Carved lines refine each detail, Inviting quiet days of ease.
方寸私隅安放办公闲读的清宁
框线叠以拼色设计,繁简切换恰到好处
弧形过渡柔化棱角,层板轻衬纤薄之姿
于收放之间,勾勒刚柔兼具的韵律
A space made for focus and quiet work
Framed panels meet with color-blocked lines
Curved transitions softly round the edges
Where minimalism and elegance meet seamlessly
月雾灰似月光裹着薄雾的温柔。皮革温润、木作细腻,触感之间自有温度。多元收纳模块适配全场景衣物归置,生活的从容与精致在秩序中皆有归处。
Grey cabinets veiled like moonlight through mist. leather and wood offering a gentle touch. Storage modules tailored to every garment. Making daily life feel effortless and refined.
黑棕茶台与茶柜定立,漫染古色古香的气韵。四周以绿植造景,多了几分山林的呼吸。炉火初沸,慢煮清茗,将喧嚣隔绝在茶烟之外。古意作底,幽景养气,心随这方雅室落定。
Deep brown sets an air of antique grace. Surrounded by greenery that breathes with life. Brew a pot of tea to shut out the noise. As the heart settles within this serene space.
过道顶部以连续的拱形造型铺展,左右交错如涟漪荡开,光影层层递进。行走其间,步履仿佛应和着拱顶起伏,踏入一首用光影与线条谱写的诗。
The corridor unfolds in continuous arches, Left and right, light and shadow unfold in layers. Footsteps echo the arch’s rise and fall. Like a poem composed by light and line
长廊一侧设置了色板展示区,承载起我们对家的想象与描摹。目光在冷暖间流连,灵感于对比中生长。细酌慢选,将理想家慢慢勾勒成型。
Along the side, a swatch display awaits. Holding the visions we carry home. Inspiration grows in contrasts. Bring the ideal home, slowly, into form.
木作温厚,金属利落,布纹柔雅,皆在黑白基调里,找到恰如其分的位置,与空间相契,对生活应答。探索本身,也成了抵达的一部分。JOKINS 让居家生活更美好
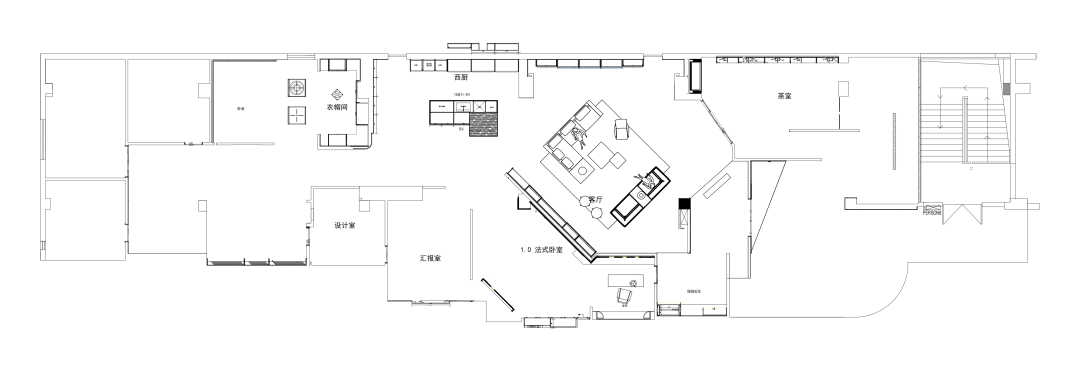
∧ PLAN/平面布局图
▲ 乔金斯·绵阳案例丨古意栖木,自然归家
▲ 乔金斯·安吉案例丨白棕逸韵,简境宁心
▲ 乔金斯·湘潭案例丨光倾满室,丰盈其中
▲ 乔金斯·漯河案例丨简美其形,风雅为境
客服
消息
收藏
下载
最近
























































