查看完整案例

收藏

下载
- - 放空自己 感知生活 本 空 B K O N S
本项目:杭州 杭樾润府 精装修改造
户型面积:139㎡
背景介绍:第二次给老客户做设计,她开口就说:“上次做完,家里每个角落都像‘长’出来的,这次想更‘静’一点,让日子慢下来。”于是,我们带着“不搞花里胡哨,让空间自己‘说话’”的想法,接下了杭樾润府这139方的活儿——预算30万,要做出“家的温度”。
实景视频 —
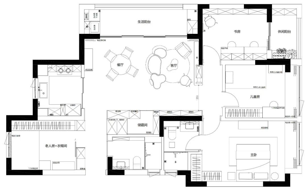
原始户型图 —
设计后平面图—
改造前后对比图 —
玄关—
换鞋时的“小停顿”
玄关没做满墙鞋柜,就做了个带换鞋凳的柜体,柜门用了米白、浅黄、深棕的色块拼,像给归家的人递了杯温茶。客户说,每次换鞋时,指尖碰到柜门的质感,都会慢下来——这不是刻意设计的,是空间在说:“欢迎回家,慢慢来。”柜体下方的彩色抽屉,藏着孩子的玩具、家人的围巾,功能与美感自然共生,没有多余的装饰,却让每一次归家都有“仪式感”。
餐厅 —
烟火气的“慢节奏”
餐厅的圆形餐桌是“家的核心”,白色桌面配木质底座,两把黑、白椅子像两个老朋友,旁边立着高大的橡皮树,枝叶伸向纱帘,把自然“请”进屋里。我们选了可调节高度的吊灯,早餐时调亮,晚餐时调暗,灯光跟着生活节奏变——客户说,以前餐厅是“吃饭的地方”,现在是“聊天的角落”,连吃饭的速度都慢了,因为“不想错过每一口饭的香气”。
客厅
—
不是“展示区”,是“家人围坐的剧场”
客厅的白色毛绒沙发像块大云朵,搭配墙上的彩色装饰画(黄、绿、红的撞色),没做电视墙,反而把沙发和餐桌“凑”在一起。客户说,以前客厅是“看电视的地方”,现在成了“孩子搭积木、爱人读报纸、自己发呆”的共享空间,空间没“主导者”,每个家人都能找到自己的位置。阳光从纱帘漏进来,落在茶几上的马克杯上,连空气都带着暖意——这就是“尊重空间感受”的样子,不强行堆砌,让空间自己“说”出家的样子。
卧室—
设计是“翻译生活”
第二次合作,客户说:“你们懂我想要的生活,不是堆砌,是让每个角落都‘活’起来。”其实,设计从来不是“改造空间”,是“翻译生活”——把客户对“慢生活”的向往,翻译成玄关的换鞋凳、客厅的沙发、卧室的窗台,让空间自己“说话”,让生活自己“生长”。
拍摄花絮图—
About
Design Company丨设计机构:本空设计工作室
Main case designer丨主案设计:思蒙
Executive designer丨撰稿:本空君
本空设计事务所 本 空 B K O N S
年度最佳实景作品展 2026
2025
2024
2023
2022
2021
客服
消息
收藏
下载
最近







































