查看完整案例

收藏

下载

翻译
TECHNICAL & WORKING DRAWINGS And Bill of Quantities (BOQ) & Specifications FOR A 100 Bed General Hospital
Faculty of Engineer, Architecture and Urban Planning Department – Port Said University
Year: 2025
Grade: A+
Project Type: Academic
HARMONIA General Hospital is designed to create a balanced healing environment where medical functionality meets calm and comfort. Through the use of natural light, open courtyards, and landscaped spaces, the project enhances patient well-being and supports recovery while maintaining clear, efficient healthcare planning.
TECHNICAL & WORKING DRAWINGS
TABLES AND SITTING OUT PLANS
GROUND FLOOR
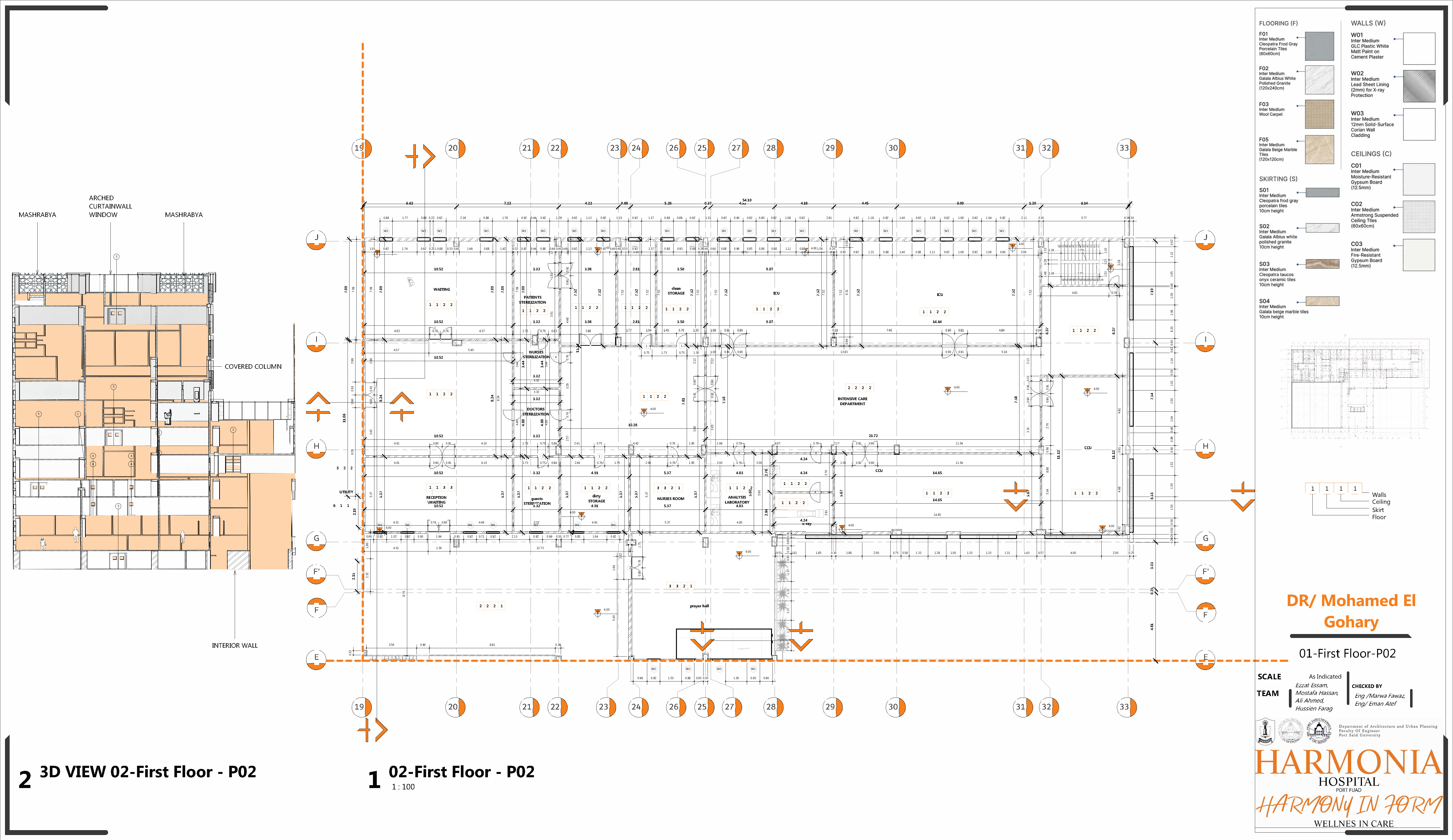
FIRST FLOOR
SECOND FLOOR
THIRD FLOOR
WORKING SECTIONS DETAILED
TECHENICAL DETAILS
Bill of Quantities (BOQ) & Specifications
AS-BUILT QUANTITY TAKE-OFF ( ON SITE )
PORT SAID UNIVERSITY- MEN BATHROOM IN THE LABS BUILDING
PRE EXECUTION QUANTITY TAKE-OFF
EMERGENCY AREA IN HARMONIA HOSPITAL
COLUMN & REINFORCMENT QUANTITY FOR EMERGENCY AREA
THANKS FOR WATCHING!
客服
消息
收藏
下载
最近




















































