查看完整案例

收藏

下载

翻译
MEGA-YACHT
GRADUATION PROJECT
This project represents my graduation thesis from the Faculty of Applied Arts, where it was awarded a final grade of 97% (+A).
The design explores the concept of a luxury residential mega yacht, merging architectural thinking with advanced marine design. The project focuses on creating a floating architectural structure that combines fluid aesthetics, functional spatial planning, and high-end living standards typically found in luxury coastal residences.
Hand-Drawn Sketches...
That is where the whole story began with.
Nature Concept Selection : The Sperm Whale...
Raw Model Proposals...
The process of refining the model to its best form by altering the design to multiple shapes and aligns for it to meet our standards and functionalities.
All Models done Manually using 3ds max software, Actually these shots are screen-taken from the programs view port.
The Preferred Model We Elaborated...
This particular Model has been chosen because of not only meeting the interior floor plans line but also for its unique shape after adding the glass facade...
It had that touch of realism to it making the story easier to sell.
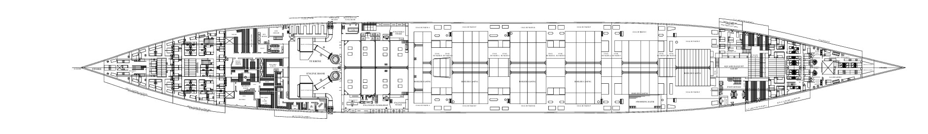
Floor plans.
Carefully Thought Distribution of The Spaces with Consideration of their relationship with each other and the relation of the whole level with the next featuring immense detailed areas in furniture planning and space management.
Exploded Plans Diagram...
Closer look at what the interior walls would look like from a wider aspect.
It demonstrates areas range of spaces in comparison to each other and provides a better sense of navigation through one area to another.
Ocean and Air Simulations...
Getting to make sure the model we chose had the right parameters for it to be optimal in motion in the middle of the sea we uploaded it into multiple external programs few of which were airshaper and chaos groups phoenix fd for both the tides of the ocean and the air waves.
Final 3D Renders...
Every Shoot has been created using 3Ds Max and Vray Renderer Featuring the ocean and movement simulation by Chaos Groups Phoenix FD.
Final Presentation Banners...
The Whole Detailing for the Idea Concept, Design Logo, Plans Drawings, Ships Recommended Route and Spaces Design Details and Functionality.
Final Technical Stats Banners...
Every banner is typically a layout combining the main floor plan and the detailed content and function concept, a diagram of the spaces names and distribution, bubbles diagram, another colored spaces relations aspects that is more detailed than the bubbles plan, and finally spaces areas range and rating.
we usually separated each floor according to social stats as it gets more luxurious and entertaining as you coming up.
For The Finale...
generally created by rendering multiple rendered shoots and importing the closest two in Kling AI website as a first and last frame and entering your prompt scenario as needed.
by repeating the process again but this time putting your previous last render as your first frame and a different render in your second attempt last frame.
you get two ai generated videos with a mutual frame that you can combine both in any editing program to fuse into one full cinematic video ( you can repeat this process many times as you want, depends to your required video length ).
Special Thanks To...
Dr. Sherif Abo ElSadaat : Our mentor, supervisor, sharp mind, even sharper tongue.
Technically the god father of the whole project topic.
Personally learned a lot from him about the very way one
can approach a project with such scale.
Dr. Omnia Abo Ziad : Responsible of keeping the project intact as a whole
featuring realistic aspects and actually being close as
possible from structural accuracy as a design.
Eng. Dina Hesham : Words cant describe the effort, passion, assistance and patience she gave this project along with its team members.
getting to know her as a person was the best thing about the whole project. THANKS DR. DINA HOPE YOU THE BEST.
Project Team Members...
The Small Group Responsible of Such an Amazing Project Came to Life.
Abdelrazik Osama Abdelrazik Nermeen Essam Rashad
Saif Amr Atta Nouran Moataz ElBaroudy
Hagar Sorror Rammah
Thanks For Tuning in...
Hope You Enjoyed The Presentation <3
Wish We Managed to Establish a Solid Template for This Particular Project Topic for the Next Applied Arts Students Generations Willing to Dive into it for their Graduations.
客服
消息
收藏
下载
最近




















































