查看完整案例

收藏

下载
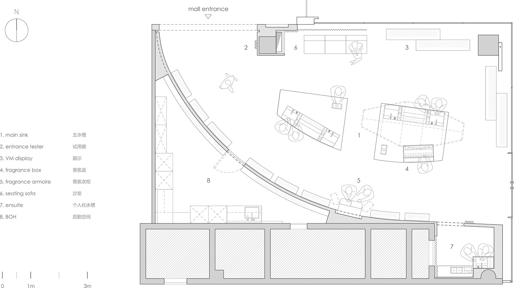
场地位于西湖东侧,与湖面仅百步之遥。商铺空间规整,两面沿街,主入口设于商场内部。平面布局策略简单直接:采用连贯的弧形墙体串联空间入口与东侧街景,并自然地划分出前后场。
The site is situated on the eastern bank of West Lake, just a hundred steps from the water’s edge. The retail space is well-proportioned with two street-facing facades, while the main entrance is tucked within the mall. The spatial strategy is clear and concise: a continuous curved wall gracefully anchors the entrance to the streetscape on the east, naturally demarcating the front and back of house.
▼空间入口,Entrance view © 雷坛坛,由伊索提供
西湖三面云山,湖山依傍。潋滟的湖光与岸边浓郁的树荫交织,构筑出澄澈与阴翳相融的光影意境。在明暗对比中,人的感知亦是流动的。为了营造静谧且灵动的空间质感,我们对材质与光线的调配极尽克制与谨慎。
West Lake is embraced by mountains on three sides, where shimmering waters meet dense, layered foliage, creating a spatial interplay of clarity and shadow. Within this contrast, the human experience becomes fluid. To achieve a texture that is both serene and dynamic, materials and light have been orchestrated with meticulous restraint.
▼室内整体,Interior overview © 雷坛坛,由伊索提供
轨道灯隐匿于后场,投向天花;光线穿过弧墙顶部的梭形百叶,折射出层次丰富的光影。即便行人漫步街头,亦能捕捉到室内如湖水般流转的光律。水槽上方悬浮着明暗渐变的“游船”,其骨架结构取意自西湖船篷,柔和的光线透过酱色柿染布,在台面上氤氲弥漫。
Track lights, concealed along the back-of-house walls, cast a glow toward the ceiling. As the light filters through the spindle-shaped louvers atop the curved wall, it creates a rich tapestry of light and shadow. Even from the street, passersby can sense the rhythmic undulation of light within the space, reminiscent of the lake itself. Hovering above the washbasin is a “pleasure boat” of shifting light and shade; its skeletal structure, inspired by the traditional awnings of West Lake boats, allows light to diffuse through russet-colored, persimmon-dyed fabric, casting a soft mist over the countertop.
▼陈列空间,Display shelves © 雷坛坛,由伊索提供
▼陈列空间近景,Display shelves close view © 雷坛坛,由伊索提供
▼陈列细部,Display detail © 张钧雷工作室
古建偏爱大漆,其深沉浓郁的质地在微光下呈现出含蓄内敛的东方气韵。弧墙借由木材的天然纹理与大漆的温润反射,将室外的自然光与绿意“借”入室内。为保持视觉的连贯性,货架隔板与墙面特意脱开2cm;香水柜门则选用湖泊绿彩釉玻璃,如滤镜般加深了绿影的重叠。
Traditional architecture has a storied affinity for Daqi (Chinese lacquer), prized for its deep, lustrous texture that glows subtly—a hallmark of reserved Eastern aesthetics. The curved wall harnesses the natural grain of timber and the gentle reflections of the lacquer to “borrow” the outdoor sunlight and greenery into the interior. To preserve this visual continuity, the shelving is detached from the wall by a 2cm gap. Furthermore, the use of lake-green glazed glass for the fragrance armoire acts as a filter, deepening the reflection of the verdant shadows.
▼湖泊绿香水柜体,Lake-green fragrance cabinet © 雷坛坛,由伊索提供
▼室内一角,A corner of interior © 雷坛坛,由伊索提供
我们邀请了杭州大漆艺术家张钧雷老师,将大漆髹饰于布胎。在水槽台面、层板与器物表面,坚实漆壳下隐现的纺织肌理提供了更为亲切的触感。香水盒作为空间中分量最重的物件,开启瞬间便露出华美的金色——随视角切换,金色呈现出深浅不一的明度与笔触。大漆的色泽将随岁月流转缓慢蜕变,为空间赋予了另一个维度的厚度与重量。
▼工艺现场,Craft process © 张钧雷工作室
▼工艺现场近景,Craft process close view © 张钧雷工作室
In collaboration with local Hangzhou Daqi artist Zhang Junlei, the ancient technique (lacquer applied over a fabric base) was employed. Beneath the resilient lacquer shell of the basins, shelves, and vessels, the faint texture of the textile emerges, offering a more intimate tactile experience. The fragrance box, the most significant object in the space, reveals a magnificent gold interior upon opening—a gold that shifts in depth, brightness, and stroke depending on the angle of view. Over time, the color of the lacquer will evolve, bestowing the space with a weight that belongs to a different dimension of time.
▼大漆细部,Lacquer detail © 张钧雷工作室
▼平面图,Plan © atelier suasua
▼剖面图,Section © atelier suasua
项目类型:室内设计
项目位置:杭州
设计和完成时间:2025.05-2025.12
建筑面积:95平米
大漆合作:张钧雷工作室
灯光咨询:ELA寻光
施工:Yanloo
摄影版权:雷坛坛,由伊索提供;张钧雷工作室
地址:浙江省杭州市上城区延安路238号
Project Name: Aesop West Lake
Project Type: Interior Design
Project Location: Hangzhou
Design and Completion Year: 2025.05-2025.12
Building Area: 95 sqm
Daqi Chinese lacuqer artisan: Zhang Junlei Studio
Ligthing Consultant: ELA
General Contractor: Yanloo
Photo credit: Jonathan Leijonhufvud, courtesy of Aesop; Zhang Junlei Studio
Address: Yan’an Road No.258 IN77, Shangcheng, Hangzhou
客服
消息
收藏
下载
最近




















