查看完整案例

收藏

下载

翻译
ضي | Museum of Optics & Vision
Optics Museum – Ibn Al-HaythamDeconstructivism × Modern × Islamic Spatial Language
Site Location: El-Haram, Giza, Egypt
Project Function: Optics Museum / 2500 m² – 2 Floors
Design Project - Grade: A+
Alexandria University - Faculty of Fine arts - Interior Architecture Department - 2025/2026
Software Used:3ds Max 2023 – Corona Renderer 11 – AutoCAD 2025 – Adobe Photoshop 2020
Design Concept
Inspired by the scientific legacy of Ibn Al-Haytham, the father of modern optics, this museum translates the principles of light, perception, reflection, and vision into a spatial experience.The design explores how light is not only a physical phenomenon, but also a tool for knowledge, discovery, and architectural expression.
The project adopts a hybrid design language combining Deconstructivism, Modern architecture, and Islamic spatial philosophy. Fragmented geometries, sharp intersections, and layered forms represent the analytical nature of optical science, while Islamic-inspired spatial continuity and rhythm emphasize order, balance, and intellectual clarity.
Interactive zones:
Interactive Library Room:A contemporary research space that integrates both digital and physical references, enhanced by VR technology. The virtual reality experience simulates real experimental environments, allowing visitors to engage with optical experiments in an immersive and interactive way.
Additional Spaces Include:Exhibition halls, lounge areas, kids’ activity and seating zones, social interaction spaces, ticketing area, gift shop, cinema hall, and administrative offices—each carefully integrated to support the museum’s educational, cultural, and social functions.
The design relies on deconstructed geometries, sharp linear cuts, and controlled voids, balanced with Islamic-inspired spatial hierarchy and modern minimalism.Light is treated as a structural component, guiding circulation, defining focal points, and enhancing the educational narrative throughout the museum.
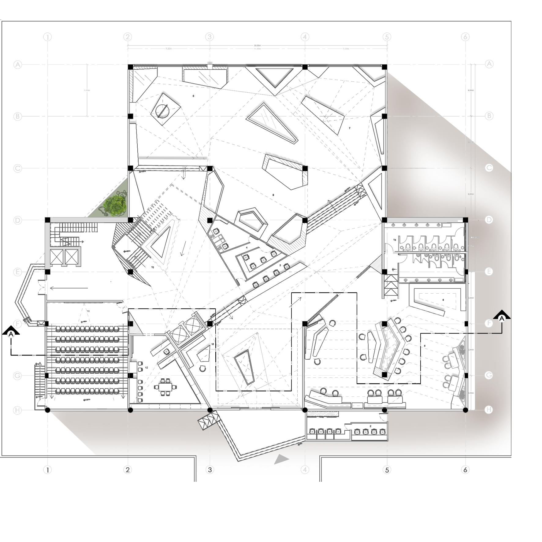
First Floor Plan Ground Floor Plan
Reception Area: Information Desk + Waiting Area + Focal Point Hologram Sculpture
Biography Zone: narrating the life, experiments, and scientific contributions of Ibn Al-Haytham
Camera Development Zone: showcasing the evolution of cameras and optical devices
3D Cinema Hall: cinematic educational experience focused on optics and visual science
Hologram Focal Point: a central interactive installation visualizing light behavior in space
The central focal point has two conceptual proposals:
Light Rays Installation – Light Theory Concept:This proposal uses orchestrated beams of light to illustrate the principles of refraction, reflection, and optical behavior. It transforms the zone into an immersive, educational experience, allowing visitors to visualize the movement of light and interact with its patterns in real-time.
Hologram of Ibn Al-Haytham – Iconic Representation Concept:This alternative features a holographic display of Ibn Al-Haytham, serving as both a narrative and symbolic centerpiece. Visitors can experience a lifelike representation of the scientist, connecting the human story to the museum’s themes of vision, discovery, and innovation.
Café Area: designed as a transitional social space with controlled lighting atmospheres
Administrative Offices: efficiently integrated within the overall circulation system
Materiality & Visual Language
客服
消息
收藏
下载
最近
















