查看完整案例

收藏

下载

翻译
Architects:Only Human
Area:870m²
Year:2026
Manufacturers:Louis Poulsen,Audo Copenhagen,HAY,Herman Miller
Lead Architects:Runn Charksmithanont, Chayaluck Peechapat
Category:Houses
Design Team:Thanakrit Siriseth
Interior Design:Only Human
General Contractor:Lamphuan Phetloet
Landscape Architecture:Ah Ma's Garden
Engineering & Consulting > Electrical:KC Loft
City:Bangkok
Country:Thailand
Text description provided by the architects. The design of this mixed-use private residential project is influenced by the owners' lives, which have revolved around China since their teenage years. It also responds to their request for an architectural approach that showcases exposed structures, materials, and building systems.
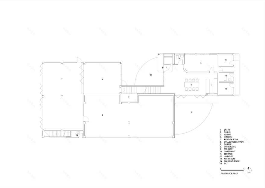
A featured corridor divides the program into two interlocking halves. One half is a private residence comprising four bedrooms, a dining area, a kitchen, a living area, a garage with a collectibles room, and a music listening room. The other half contains an office space with two bedrooms and a warehouse.
Traditional Chinese paintings depicting architectural spaces were analyzed and translated into three-dimensional diagrams, which were then applied through architectural gestures of simplification, axis shifting, and repetition. Instead of directly using the conventional moon gate, it is rotated horizontally and reinterpreted as a circular void framed by a steel beam. It continues to function as a transitional feature in the welcoming courtyard, allowing trees to penetrate upward to the second-floor balcony of the living room.
The main corridor on the second floor is long and strongly axial. Above it, a full-length skylight with arch-shaped fins creates a rhythmic sequence, interpreted from the traditional Chinese colonnade, forming a distinctive experiential journey toward the master bedroom.
The material palette is kept simple, with concrete forming a neutral background. Imported dark grey brick, characteristic of traditional Chinese architecture, is highlighted as the primary tonality, flowing from the front façade to the walls and down to the floor. The alternation of horizontal and vertical brick patterns is not only an aesthetic choice but also an efficient one, as it reduces the number of bricks used by half compared to a horizontal-only layering system.
H168 House is a combination of time, referencing the tradition while embracing the contemporary ideas of exposedness and balancing the imperfections of time-honored materials with refined details.
Project gallery
客服
消息
收藏
下载
最近



























