创作上传
VIP
收藏下载
登录 | 注册有礼
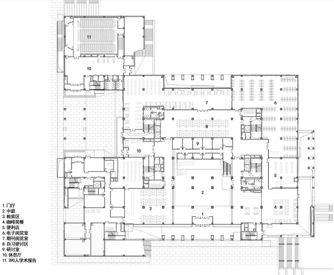
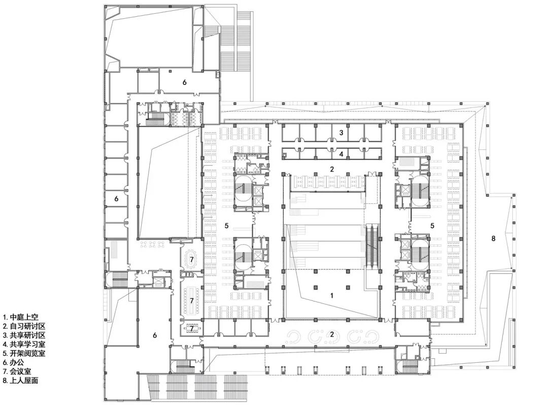
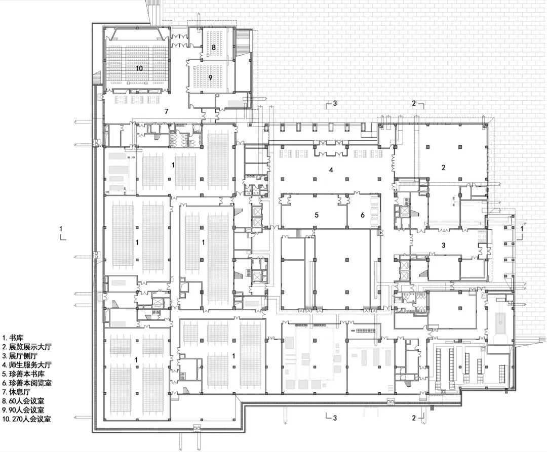
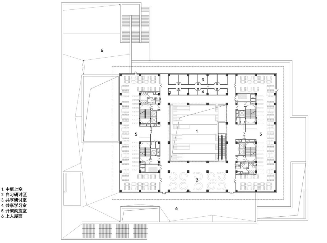
大学校园规划建筑设计:西宁 · 青海理工学院丨中国西宁丨清华大学建筑设计研究院有限公司(THAD)
2026/04/01 10:31:22
查看完整案例
微信扫一扫
收藏
下载
分享
你可能还喜欢
换一换
诺德布罗综合学生公寓
融合校园环境的 Barnato Hall Addition Phase 1 设计
南非 Mpumalanga 大学融合自然景观的学生公寓设计
苏黎世 ETH 学生公寓——创新共享空间设计
热带校园绿色运动馆——Koffi & Diabaté Architectes 设计
博伊西州立大学视觉艺术中心
客服
消息
收藏
下载
最近