查看完整案例

收藏

下载
春台Spring Patio位于成都一栋老办公楼改造后的商业园区内,项目在保留既有建筑结构的前提下,完成一二层餐酒空间的更新设计。
Spring Patio is a restaurant and bar located within a renovated former office building in Chengdu. The project occupies the ground and second floors, and develops its design strategy based on the retention and reorganization of the existing structure.
▼餐厅外观,exterior of the restaurant©Guo Xinxin
▼餐厅外观,exterior of the restaurant©Guo Xinxin
原有建筑在改造过程中拆除部分隔墙后,暴露出混凝土结构、红砖与梁柱体系。设计延续这一状态,将结构作为空间的基础秩序保留下来,并在其之上植入新的使用功能,而非进行覆盖或重构。
Following partial demolition, the original building reveals its concrete frame, brick walls, and structural system. Rather than concealing these elements, the design preserves them as the primary spatial order, introducing new functions within this existing framework.
▼原混凝土柱梁被保留下来,preserve the original concrete structure frame©Guo Xinxin
▼原混凝土柱梁被保留下来,
preserve the original concrete structure frame©Guo Xinxin
立面采用双层界面处理。外层为卷帘门,内层为通高玻璃窗,在两者之间形成过渡空间,以增强采光与空间的开放性。同时,原本应被隐藏的后勤通道被直接纳入立面系统,使其同时承担内部流线与对外停留的双重功能。
The façade adopts a double-layered system. An outer layer of rolling shutters and an inner layer of full-height glazing create an intermediate zone that enhances daylight and visual permeability. A service corridor, typically concealed, is instead integrated into the façade, functioning both as internal circulation and as an interface for public interaction.
▼立面采用双层界面处理,
the façade adopts a double-layered system©Guo Xinxin
室内空间延续“裸露”的策略。桥架系统整合电气、给排水与暖通管线,使各类设备以清晰可见的方式组织于顶面。材料使用保持克制,混凝土、红砖、金刚砂地面与木地板共同构成空间的基本语言,通过不同区域的切换形成层次。
Inside, exposed cable trays unify electrical, plumbing, and HVAC systems into a visible ceiling layer. Materials are used in a direct and restrained manner, including concrete, red brick, polished concrete flooring, and timber. Transitions between materials are articulated through glazed metal tiles, allowing different zones to be defined while maintaining continuity.
▼室内空间延续“裸露”的策略,the interior space continues the exposed strategy©Guo Xinxin
▼各类设备以清晰可见的方式组织于顶面,
all kinds of equipment are organized in a clearly visible way on the top surface©Guo Xinxin
空间中的功能单元多基于日常原型发展而来。酒窖柜体参考基础立柜形式,以满足展示与取用需求;部分酒柜借助桥架系统进行悬挂,形成轻质的展示结构。贯穿两层的餐梯被保留,并通过色彩处理强化其在空间中的可识别性。
Spatial elements are often derived from everyday typologies. Wine storage adopts the form of simple cabinets for accessibility and clarity, while suspended shelving systems are integrated with cable trays, forming lightweight structures within the space. A service lift spanning two floors is retained and highlighted through color, becoming a dynamic visual element.
▼酒窖区域,wine storage area©Guo Xinxin
▼酒窖区域,wine storage area©Guo Xinxin
二层通过十字骨架对空间进行组织,整合包间、露台及过道等功能区域。隔断、栏杆等界面采用轻量构造,结合不同材料属性回应使用需求,并在室内外之间形成连续的空间关系。
The second floor is organized by a cross-shaped structural frame, which defines circulation and connects dining areas, private rooms, and terraces. Partitions and railings are constructed using lightweight systems, allowing spatial boundaries to remain permeable while responding to functional needs.
▼二楼区域,the upper level area©Guo Xinxin
▼从二楼俯瞰一层空间,overlook the lower level from above©Guo Xinxin
▼形成连续的空间关系,
allowing spatial boundaries to remain permeable©Guo Xinxin
▼靠窗区域,area facing the window©Guo Xinxin
▼绿色点亮空间,green lights up the space©Guo Xinxin
▼绿色点亮空间,green lights up the space©Guo Xinxin
▼小隔间,the booth©Guo Xinxin
整体设计避免过度装饰,通过对原有结构的保留与再组织,使空间在满足当代使用的同时,保留建筑本身的时间痕迹与构造逻辑。
By preserving and extending the logic of the existing structure, the project avoids excessive formal intervention. Instead, it establishes a spatial system where new functions coexist with the original building fabric, allowing the space to remain open, adaptable, and continuously in use.
▼保留建筑本身的时间痕迹与构造逻辑,
allowing the space to remain open, adaptable, and continuously in use©Guo Xinxin
▼傍晚餐厅,restaurant at dusk©Guo Xinxin
▼夜景,restaurant at night©Guo Xinxin
▼一层平面图,ground floor plan©一门社
▼二层平面图,first floor plan©一门社
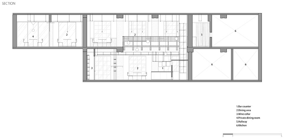
▼剖面图,section©一门社
项目名称:春台
项目类型:餐饮
设计方:一门社 amass
项目设计:2023
完成年份:2024
设计团队:王凯麟,艾林子,傅蕾,田洁
项目地址:成都
建筑面积:410㎡
摄影版权:郭新新
客户:春台
Project name:Spring Patio
Project type:Restaurant
Design:amass
Design year:2023
Completion Year:2024
Leader designer & Team:Wang Kailin, Ai Linzi, Fu Lei, Tian Jie
Project location:Chengdu
Gross built area: 410㎡
Photo credit: Guo Xinxin
Clients:Spring Patio
客服
消息
收藏
下载
最近














































