查看完整案例

收藏

下载

翻译
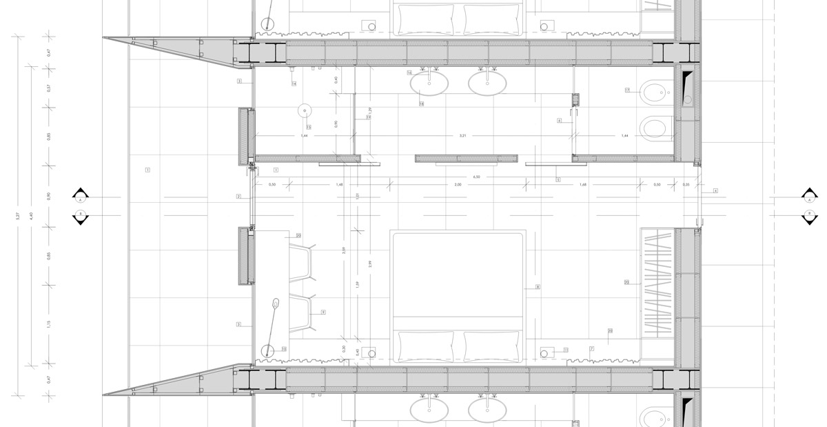
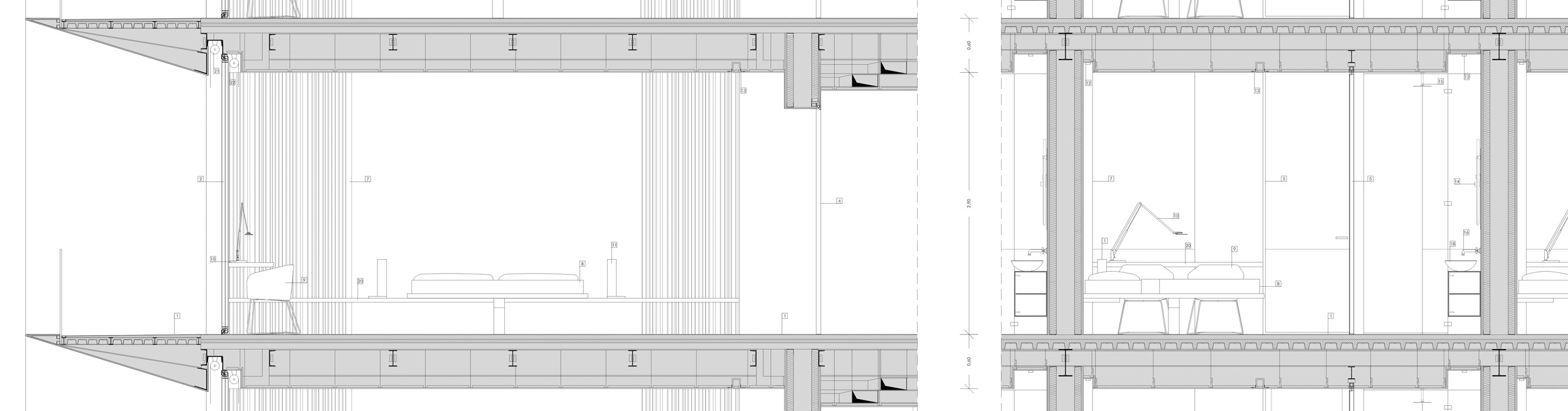
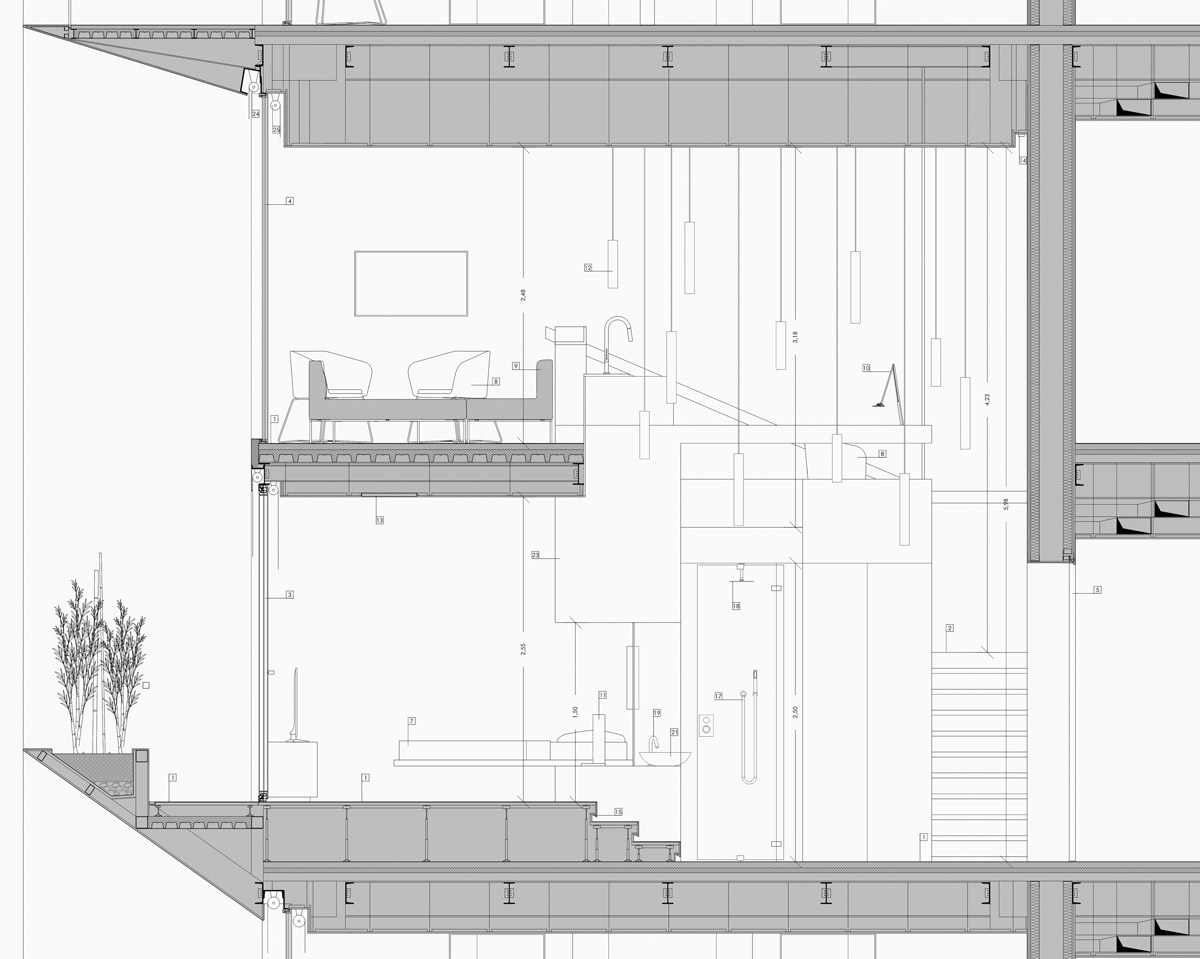
Un hotel dotato di ristoranti e spa caratterizzato da due fronti a contrasto. A sud un volume parallelepipedo ospita le camere ed è scandito da logge ortogonali; a nord lo stesso volume si disgrega in elementi più piccoli ruotati tra loro che danno origine a spazi interni articolati.
Status Completed works
Type Apartments / Tower blocks/Skyscrapers / Hotel/Resorts / Interior Design
客服
消息
收藏
下载
最近









































