查看完整案例

收藏

下载
F L Y ¢ D E S I G N ⊙ # 阳光下的包豪斯 #
在时代美学与审美浪潮的汹涌更迭间,不求大同、向内悦己,他们期待自己的家可以不拘一格,有着独属的生活节奏。
中古包豪斯下生活气息如诗般弥漫,看似繁杂拥塞,实则暗合生活的韵律——乱中藏序。四季的阳光宛如灵动的舞者,掠过窗台、沙发与墙壁,光影流转,满载生活的诗意,缓缓驶向心灵的宁静港湾。
In the rapid iteration of aesthetics and aesthetic trends of the times, they do not seek harmony or personal satisfaction. They hope that their homes can be unconstrained and have a unique pace of life. The atmosphere of life under the medieval Bauhaus is like poetry, seemingly complex and congested, but in fact, it is in line with the rhythm of life - chaos hidden in order. The sunshine of the four seasons is like a dynamic dancer, sweeping over windowsills, sofas, and walls, with light and shadow flowing, filled with the poetry of life, slowly heading towards the peaceful harbor of the soul.
玄关 / Porch
玄关 / Porch
客厅 / Living Room
客厅 / Living Room
给足空间呼吸感,白色主调为纷繁有序的家定好纯粹底色,木色铺垫、蓝色点缀,灵动温馨的氛围之下,不锈钢材质的加入塑造其利落的力量感。墙面艺术漆特地还原他们在德国生活时期的家居墙面,故事的延续叙写与美感交融,家是承前启后的人生语句。
To give the space a sense of breathing, white is the main tone for a complex and orderly home setting, with a pure base color, wooden bedding, blue accents, and a lively and warm atmosphere. The addition of stainless steel furniture creates a sharp sense of power. The wall art paint specially restores the home walls of their living period in Germany, and the continuation of the story blends with aesthetics. Home is a romantic statement that carries on the past and opens up the future.
客厅 / Living Room
客厅 / Living Room
客厅 / Living Room
客厅 / Living Room
精装房格局不大动却在每一处都有微调,以微小的变动带来惊喜的收获。更改灰色地砖为木色地板,小体量的同色系家具与之呼应,木质的温润与不锈钢的冷冽理性中和,配合以不同体块、材质的穿插碰撞,错落有致满载生活的细语,小故事的拼图碎片串起生活的温柔全貌。
The layout of the furnished house remains unchanged, but there are slight adjustments in every aspect, bringing surprising rewards with minimal changes. Change the gray floor tiles to wooden flooring, with small pieces of furniture of the same color matching it. The warmth of wood and the coolness of stainless steel are balanced, complemented by the interweaving and collision of different blocks and materials, creating a staggered and full of life’s whispers. The puzzle fragments of small stories string together the warm and gentle whole of life.
客厅 / Living Room
客厅 / Living Room
客厅 / Living Room
自然之光的挥洒流动,与家居进行亲密抚触,居家时光自我放空、静静欣赏一场光与家的舞剧。阳光之下的中古包豪斯之家,温柔、浪漫亦是从容、心安,载着晨昏的低语,驶向永恒的岸。
The flow of natural light, intimate touch with the home, allowing for self reflection and quiet appreciation of a dance drama of light and home during home time. The medieval Bauhaus house under the sunshine is gentle, romantic, and calm, carrying the whispers of dawn and dusk, heading towards the shore of eternity.
客厅 / Living Room
餐厨区 / Dining Room & Kitchen
餐厨区 / Dining Room & Kitchen
餐厨区 / Dining Room & Kitchen
封闭式厨房调整为半开放式厨房,释放空间体感,在局限的体积下寻找新的配比为空间赋能。兼具橱柜与岛台的功能,增强餐厨之间的联系与实用性,岛台之上的可移动折叠窗,与右侧的口袋移门可形成一道完整屏障,将厨房与客餐厅独立开,确保油烟不外流。体感、美感与实用美学的完美配合,设计的魅力来自于贴近生活变幻的张力。
The closed kitchen is adjusted to a semi open kitchen, releasing the spatial sense and finding new ratios to empower the space within the limited volume. Combining the functions of a cabinet and an island platform, it enhances the connection and practicality between the kitchen and dining areas. The movable folding window on the island platform and the pocket sliding door on the right can form a complete barrier, separating the kitchen from the dining room and ensuring that oil fumes do not escape. The perfect combination of sensory, aesthetic, and practical aesthetics, the charm of design comes from the charm of being close to the changes in life.
餐厨区 / Dining Room & Kitchen
餐厨区 / Dining Room & Kitchen
餐厨区 / Dining Room & Kitchen
过道 / Aisle
书房 / Study
书房邻着过道的地方开拱形门洞,做嵌入式猫窝给猫猫安置新家,趣味性与实用性兼备。书房采用雾化玻璃与公区既有互动性又能保持其自身的私密性,不做大体量柜体,凭借不同形式的收纳柜、置物架有机组合,高收纳需求满足的同时书房仍有着灵活的可调度性。
An arched doorway is opened next to the hallway in the study, and an embedded cat bed is made to accommodate cats in a new home, combining fun and practicality. The study adopts atomized glass to interact with the public area while maintaining its own privacy. It does not require large cabinets, and with the organic combination of different forms of storage cabinets and shelves, the high storage needs are met while the study still has flexible scheduling.
书房 / Study
主卧 / Master Bedroom
卧室不做过度设计,精简的笔法呈现出的纯净温润归还睡眠应有的氛围。床尾满柜满足居者的高收纳需求之外,仍有充裕的空间可以拓展,在入户门位置,与床平行增设收纳空间,次净衣区与抽屉收纳,触及细节的温柔规划,居家松弛感与秩序感流淌着舒适宜居的理想生活状态。
The bedroom is not excessively designed, and the concise brushwork presents a pure and warm atmosphere that returns the essence of sleep. In addition to meeting the high storage needs of residents with a full cabinet at the end of the bed, there is still ample space for expansion. A storage space is added parallel to the bed at the entrance door, with a secondary clean clothing area and drawers for storage. The gentle planning is close to the details of life, and the relaxation and orderliness of home flow with a comfortable and livable ideal living state.
主卧 / Master Bedroom
主卧 / Master Bedroom
次卧 / Second Bedroom
原始图
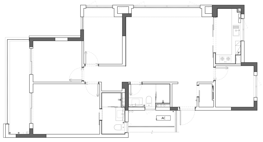
平面图
左右滑动查看更多
·精装改造前后对比·
设计机构 / 菲拉设计
Designer Department / FLY DESIGN
项目类型 / 精装改造
Project type / Renovation of hardbound house
项目地址 / 浙江杭州·翠揽云境
Project address / Zhe Jiang · Hang Zhou
户型 / 四室两厅
Door Model / Four rooms and Two halls
面积 / 126㎡
Square Meters / 126㎡
欢迎各位评论,分享,点推荐~~
不要忘记设为置顶哦
地址/杭州市上城区顺福商务中心3幢1703室
#往期推荐
#
所属版权及最终解释权归菲拉设计所有
客服
消息
收藏
下载
最近








































