查看完整案例

收藏

下载
CNR-IRBIM——意大利国家研究委员会(CNR)海洋生物资源与生物技术研究所的新总部已进入施工实施阶段。项目位于意大利中部亚得里亚海沿岸港口城市安科纳的历史港区,由Simone Subissati Architects设计。经过欧洲公开招标,施工合同由AR.CO. Srl中标。该项目总投资约720万欧元,建设周期约540天,预计将于2027年底竣工。
▼港区环境现状,existing port context © Simone Subissati Architects
Construction has entered the executive phase for the new headquarters of CNR-IRBIM – the Institute for Marine Biological Resources and Biotechnology of the Italian National Research Council (CNR) in the historic port of Ancona, a port city on the Adriatic coast of central Italy. The project is designed by Simone Subissati Architects. Following a European tender, the construction contract has been awarded to AR.CO. Srl. The project represents an investment of approximately €7.2 million and is scheduled for a construction period of around 540 days, with completion expected by the end of 2027.
▼滨水界面效果图,waterfront view rendering © Simone Subissati Architects
本次改造对象为原Fincantieri办公楼(1956–1959年),该建筑由工程师Giuseppe Zampiga设计,最初作为港口中的行政总部使用。其区位极为敏感——距离图拉真拱门仅数米,位于由安科纳大教堂主导的瓜斯科山脚下,并毗邻克莱门蒂诺拱门——使其处于亚得里亚海港口城市中最具历史与视觉价值的环境之一。
▼加建策略图解,addition scheme diagram © Simone Subissati Architects
The intervention concerns the building known as the former Fincantieri office building (1956–1959), designed by engineer Giuseppe Zampiga as an administrative headquarters within the port. Its location — just a few meters from the Arch of Trajan, below the Guasco hill dominated by the Ancona Cathedral and near the Arco Clementino — places it within one of the most historically and visually sensitive settings of the Adriatic port city.
▼建筑外观效果图,exterior rendering © Simone Subissati Architects
该建筑最初作为战后工业港区中兼具展示与控制功能的代表性建筑而建,随着时间推移逐渐失去了原有的功能与中心地位。项目正是以这一状态为出发点:并非取而代之,而是在安科纳滨水最为显著的位置之一,重新激活这一长期处于“悬置”状态的存在。
Originally conceived as a building of representation and control within the post-war industrial port area, the structure gradually lost both function and centrality. The project takes this condition as its starting point: not replacement, but the reactivation of a presence long suspended at one of the most exposed points of Ancona’s waterfront.
▼建筑侧立面效果图,side facade rendering © Simone Subissati Architects
▼外观细部效果图,exterior detail rendering © Simone Subissati Architects
该项目由Simone Subissati Architects与工程师Domenico Lamura合作设计,在保留建筑原有形态与结构体系的同时,对内部空间进行全面重组,以容纳当代功能需求——包括办公空间、操作性工作区、会议厅以及会议空间。屋顶层新增体量经过精确控制,以尺度与比例回应周边环境。新增阁楼层以轻薄的构件重新定义建筑轮廓,在不改变其城市尺度的前提下,框取海景与历史城市视野,同时减弱港区近期建设所带来的视觉干扰。
Designed by Simone Subissati Architects in collaboration with engineer Domenico Lamura, the project preserves the building’s original form and structural layout while completely reorganizing the interiors to accommodate a contemporary program — including offices, operational workspaces, a conference hall, and meeting areas. A carefully calibrated addition at roof level completes the building, responding in scale and proportion to the surrounding landscape. The slender blades of the new attic floor redefine the profile of the structure without altering its urban measure, framing views of the sea and the historic city while mitigating visual interferences produced by more recent port constructions.
▼室内空间效果图,interior rendering © Simone Subissati Architects
▼可变玻璃界面渲染图,switchable glass facade rendering © Simone Subissati Architects
▼建筑外观夜景效果图,exterior night view rendering © Simone Subissati Architects
▼地下层平面图,basement plan © Simone Subissati Architects
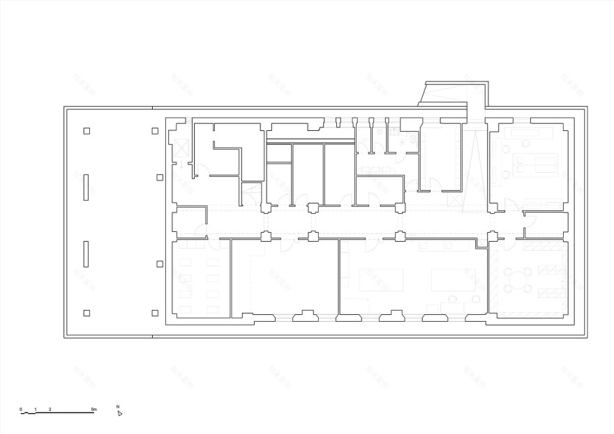
▼首层平面图,ground floor plan © Simone Subissati Architects
▼二层平面图,first floor plan © Simone Subissati Architects
▼屋顶层平面图,roof plan © Simone Subissati Architects
▼剖面图,sections © Simone Subissati Architects
Project name: New CNR-IRBIM Headquarters in Ancona, Italy
Client: National Research Council – IRBIM Ancona
Location: Ancona, Italy
Architectural project: Simone Subissati Architects
Instagram: @simone_subissati
Project team: Simone Subissati and Stefano Barile (architects), Domenico Lamura and Matteo Virgulti (engineers)
Structural and systems engineering: Domenico Lamura, Stefano Virgulti
Contractor: AR.CO. Srl, Bari, Italy
Construction cost: 7,200,000 Euros
Project schedule: Design: 2015 – 2025; Construction: Dec 2025 – Dec 2027
客服
消息
收藏
下载
最近




























