查看完整案例

收藏

下载

翻译
Escape from stress life with beach vibes.
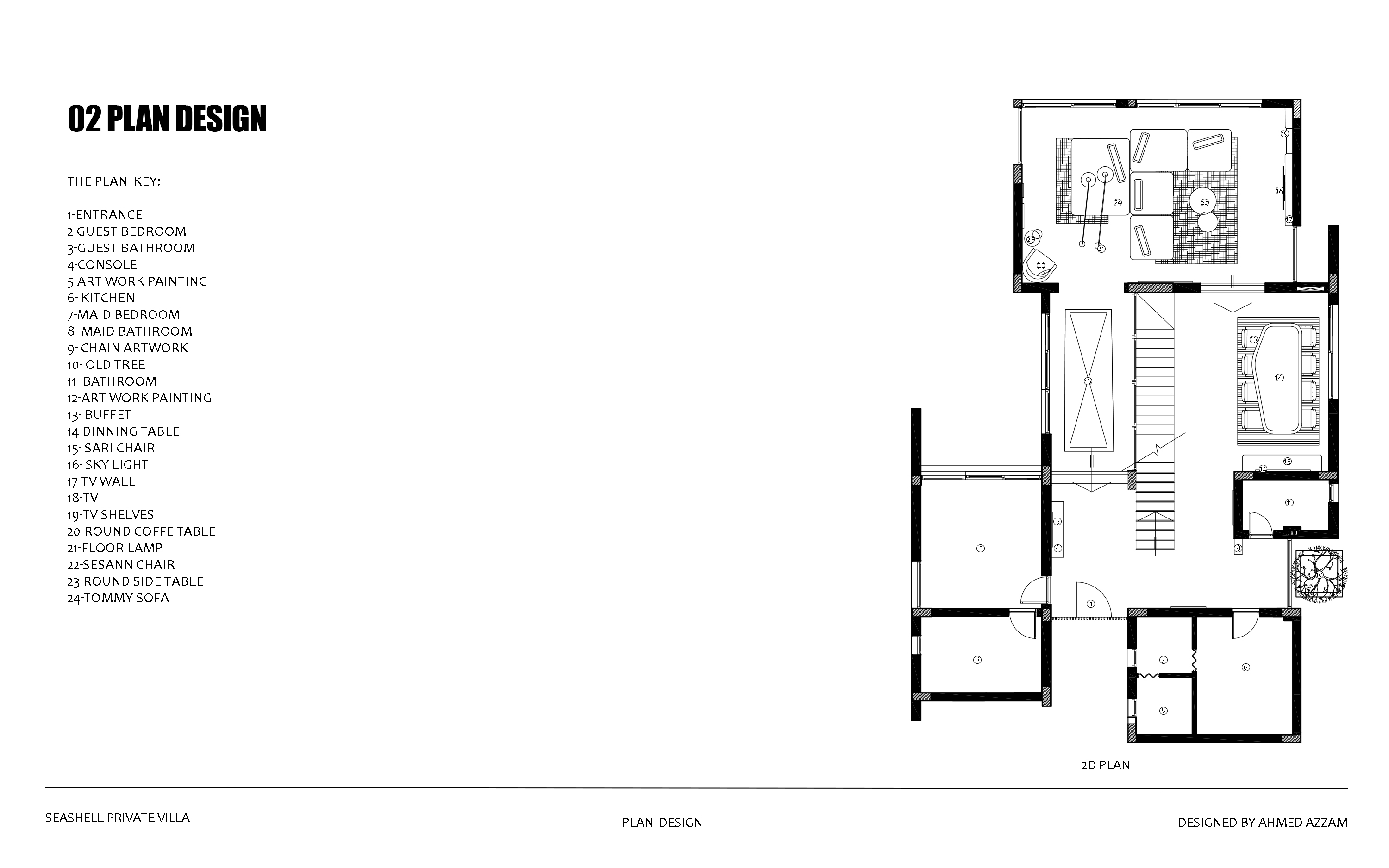
RECEPTION VILLA DESIGNDesigned & Visualised By |AHMED AZZAMConcept > 3d modeling > VisualisationType | Private VillaLocation |SEA SHELL-NORTH COAST2.0.2.4
3D Renders
DESIGN DIRECTION & MOOD BOARD
客服
消息
收藏
下载
最近





















