查看完整案例

收藏

下载

翻译
Architects:Grzywinski+Pons
Area:35117m²
Year:2026
Manufacturers:Cassina,Flos,b&b italia,luceplan,mckinstry,pure and freeform
Lead Architects:Grzywinski + Pons
Category:Residential Architecture,Apartments
Design Team:Matthew Grzywinski, Amador Pons
Landscape Architecture:GGLO
Engineering & Consulting > Structural:KPFF
Engineering & Consulting > Electrical:IMEG
Architecture Offices:Perkins Eastman
City:Seattle
Country:United States
Text description provided by the architects. Kaye is a new thirty-one-story building in Seattle's Belltown neighborhood comprising 324 apartments, hospitality-grade amenities on the ground, seventh, and thirty-second floors, a co-working space on the mezzanine, and commercial space at grade. Grzywinski+Pons designed both the building and all of the interiors, as well as much of the furniture, for our client, Skanska.
Belltown is Seattle's densest urban neighborhood and embodies the tension of the Emerald City's past and future, where new high-rises sit alongside architectural remnants of the area's maritime and light-industrial heritage. We wanted to design a building that celebrated the best qualities of its early-twentieth-century neighbors while creating new homes for those experiencing Seattle's exciting future.
Our site shares a block with a three-story Tudor Revival multifamily residence and a single-story Georgian Revival structure, both built in the 1920s and clad in masonry and cast stone. We designed Kaye as a tower on a podium—a configuration that allowed us to create a plinth congruent with both our immediate brick-clad neighbors and the tower that rises from it.
We designed the podium to be oriented toward the street and conversant with our mid-rise neighbors—anchored, masonic, and resolute. Conversely, the tower is oriented toward the skyline, becoming ever more ethereal and diaphanous as it rises. These intentions manifest in material and form: the base is a celebration of tectonic weight, while the top is a study in light and reflection.
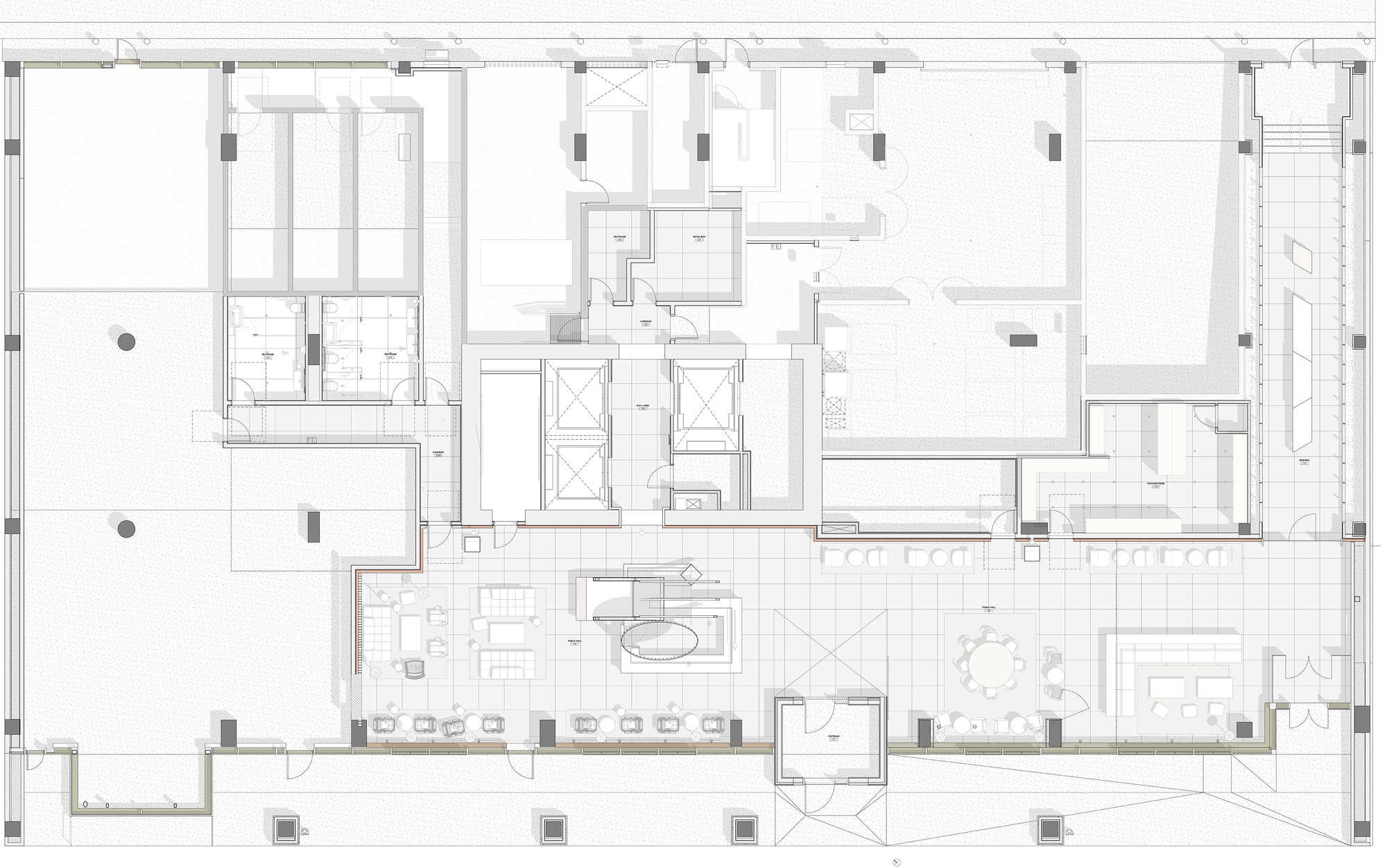
We established guiding principles for Kaye's six-story base. We wanted the podium legible from the street, with conspicuous program elements, open spaces, and intuitive circulation. Grand spaces and soaring volumes feel approachable and friendly, with granular details rendered in warm, tactile materials. Since we designed both building and interior, we were able to treat the ground-floor spaces as an extension of the street.
We created a "great hall" behind an operable glass storefront, with an internal secondary facade clad in masonry and fenestrated as though it were another street wall. A monumental onyx-clad stair invites guests and residents to the amenity spaces on the mezzanine, all bathed in natural light and connected to Fourth Avenue. The mail and bike room doubles as a visual and physical connection from Fourth Avenue, through the great hall, and out to the alley behind—the architectural realization of an anticipated "desire path" for residents heading east or south. The party walls at either end of the great hall are finished with custom-made glass bricks, and a projected retail volume of glass and Tennessee pink marble sits underneath a mirror-finished awning, reflecting pedestrians passing by.
To human-scale the plinth, we treated the mass as something to be eroded. Through subtractive massing, we created setbacks and voids at strategic locations, inviting connections from the street into the building's core. At the Fourth Avenue street wall, we designed a colonnade in lieu of Seattle's prescriptive overhead weather protection. This move pushed the building's threshold back, extending the public realm into the structure and diffusing the barrier between private interior and public sidewalk.
At our Blanchard Street elevation, we utilized a further setback, stepping down to acknowledge the scale of the single-story Otis building to our south. This created an internal courtyard that serves as a protected playground for resident children. The sixth-floor terrace features an external bridge spanning this void—conspicuous circulation that provides a legible sense of scale and movement to the podium's upper reaches.
Drawing inspiration from our neighbors, we designed the podium facade with these principles in mind. The double-height ground floor, setback behind the colonnade of brick and cast stone, is fronted by a glass storefront featuring an integral pony wall, operable sash windows, and a stone-clad entry vestibule. The soffit above is treated as a "fifth facade" and clad in metal panels with an aged brass finish. Street furniture and generous plantings invite residents and passersby to inhabit the augmented external space.
The rest of the base is clad in sage-hued, glazed Roman brick with precast string courses. We designed a simple debossed arch at each window header. On the southwest corner, we created a winter garden where the Fourth Avenue cladding turns the corner onto the lot-line Blanchard facade, otherwise finished in non-glazed stock brick.
For the tower portion, we wanted the building to feel more diaphanous as it rises. Skanska's trust in us to design both architecture and interiors afforded us the opportunity to make decisions that would benefit both.
The most tectonic formal move was the creation of projected volumes, or "sky lounges," in some units. In an otherwise rigorous facade, we explored syncopation—the curated interruption of organized elements of mass and envelope. These projections afford some units 270-degree views. The glazing on the perpendicular faces allows an inhabitant to look back at and past the building, sometimes opening sightlines west to Elliott Bay, north to the Space Needle, and east to Lake Union from a single room. These projections further the principle of erosion we pursued on the podium, where expansive glazing on the corner sky lounges allows people to "look through" the building from the street.
We wanted to maximize texture and amplify the spatial recession of the tower's facade. Even within a highly transparent envelope, we prioritized rustication within all opaque components, including mullions, spandrels, and frames of operable panels. We also developed grids that hover in front of glazed panels, enhancing the perception of depth through shadow and reflection. We concentrated more of these components lower in the tower, decreasing the texture on higher floors and enhancing the perception of vertical gradation.
In the public spaces, we softened the structural expressionism with a palette of warm, inviting, and resilient materials: stone floors plied with generous rugs; walls finished with masonry, lime plaster, and timber tambour panels; and windows dressed in lush curtains. We furnished the spaces with sofas, banquettes, and overstuffed chairs to encourage lingering.
In the residential units, we used a palette of soft neutrals and designed built-in furniture. A marble-topped, timber-framed table/island hybrid sits perpendicular to the expansive kitchens. A large sideboard with integrated bookshelves is built into the space between the units' expansive windows, the dimensions of which are equal to the muntins of the adjacent glazing. We designed the lighting and window treatments to complement the utility, mood, and warmth of the units from within and contribute to the experience of the building at night from without.
It is our hope that Kaye will be a protagonist in a neighborhood defined by its layers. By synthesizing the masonic language of the 1920s with a diaphanous tower, we have sought to create an architecture that respects the gravity of its heritage neighbors—the Charlesgate and the Otis—while embracing Seattle's future. Kaye participates in an ongoing urban dialogue, exploring a density that can be both stolid and ethereal. It is hugely rewarding to see The Kaye integrated into the fabric of this ever-evolving and dynamic neighborhood.
Project gallery
客服
消息
收藏
下载
最近








































