查看完整案例

收藏

下载

翻译
Architects:Takeshi Hirobe Architects
Area:205m²
Year:2022
Photographs:Koichi Torimura
Lead Architects:Takeshi Hirobe
Category:Houses
Design Team:Risa Makino
Engineering & Consulting > Structural:Mika Araki Structural Engineers
City:Karuizawa, Nagano
Country:Japan
Text description provided by the architects. This residence was designed for a client who relocated from the city to a rural highland area with the intention to work remotely. The site is characterized by a gentle slope that runs from the west side, which faces a road, to the east before dropping sharply. A small stream flows below, forming a modest valley. As a result, there is a significant distance between the residence and the nearest house, located across the valley, and the view on this side is marked by trees that cascade down the slope in a dense, layered arrangement. To make the most of these surroundings, the southeast corner of the residence was designed to accommodate a large picture window.
The town of Karuizawa is known for its cool and refreshing summers, but the winters can be harsh, with temperatures dropping below -10°C. Because of this, the foundations of homes here must be built below the frost depth. While parts of home foundations here are sometimes dug independently from their main structures, the structure itself, in this case, also lies below the frost depth, and this portion of the house was utilized effectively: at the request of the client, a full-size billiard table was installed in this belowground section, which was incorporated into the design of the residence as a value-adding enhancement.
To combat the winter cold, the house features a water-based thermal-energy storage system beneath the floor. This system absorbs temperature changes throughout the day, creating thermal stability, while two heat pump air conditioners ensure 24-hour climate control. There is also a wood-burning stove for use as a heat source, and at times when letting in outside air is the most comfortable option, the thermal storage system is used solely for regulating temperature fluctuations. The foundation below the frost depth (as explained above) also functions as part of the thermal storage system.
Near the center of the building is a wood-truss shear wall, created using 60-millimeter-thick material laid out on a square grid and reinforced by 45-millimeter diagonal members. These diagonal members also function as bracing for horizontal loads and are further reinforced by smaller 30-millimeter diagonal members. This progressive reinforcement enhances the wall's buckling strength. In addition to serving a functional role, this structural element makes a subtle yet dynamic contribution to the interior aesthetic by influencing the perception of scale within the space.
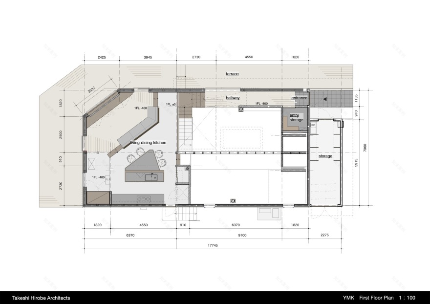
The cross-sectional composition of the residence is quite complex. Although it is technically a two-story building, the design divides the space into multiple distinct levels while at the same time maintaining a unified feel throughout the whole interior. This spatial balance is supported by six carefully defined floor levels, each tailored to the needs of each area. In this way, the design process involved not only responding to the land's topography but also creating a distinctive new "terrain" within the architecture itself.
Project gallery
客服
消息
收藏
下载
最近

























