查看完整案例

收藏

下载

翻译
Architects:Hoem + Folstad Arkitekter
Year:2023
Photographs:Knut Folstad
Category:Houses
City:Åkrehamn
Country:Norway
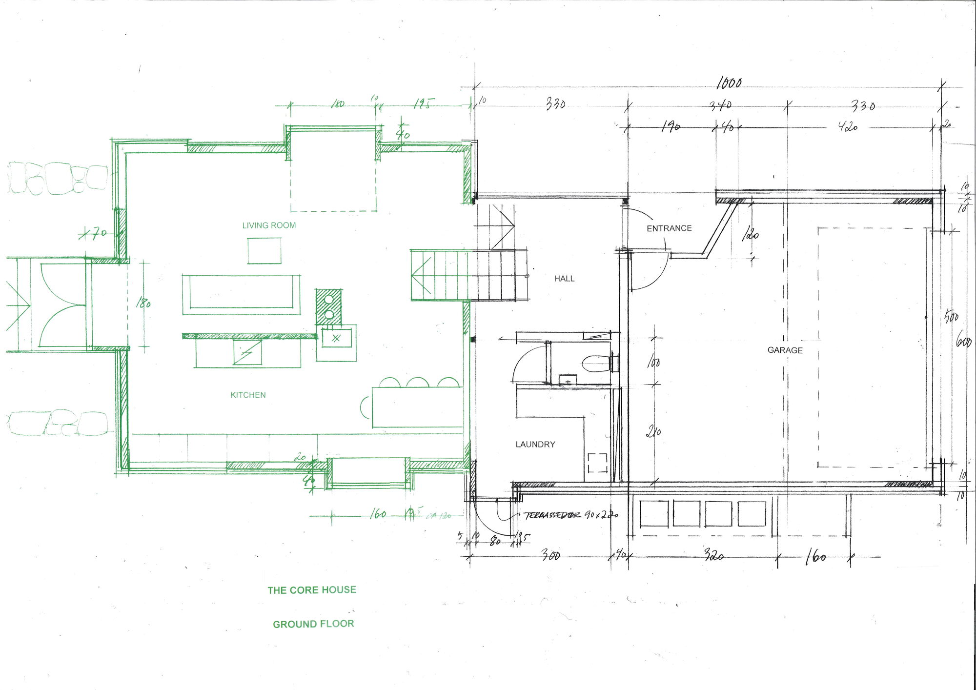
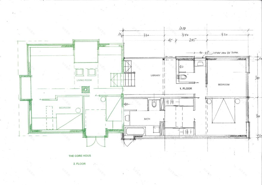
Text description provided by the architects. The house is located on a wide plain by the coast of the North Sea. An old log house forms the core of a new detached house for a young family with small children.
The open, windy landscape gives associations with the American prairie. By the way, there was a large emigration to North America from these shores in the 19th century. The American settler style with European reminiscences sets the tone both in terms of form and materials.
The core house has been given distinctive bay windows to the east, west, and south and contains a kitchen, dining room, living room, and rental apartment.
The north side has been extended, consisting of a garage and main entrance on the ground floor and a lounge room, bedrooms, and bathrooms on the first floor. All timber and carpentry are carried out by the homeowner, who makes a living as a carpenter.
The extension is built in freshly cut timber. New and old timber walls blend into each other throughout the house. Externally, the walls and roof are clad with oak shingles and old brick pans.
Project gallery
客服
消息
收藏
下载
最近































