查看完整案例

收藏

下载
项目名称:氢途科技杭州总部
位置:杭州 浙江
设计单位:森上建筑
图片数量:32张
项目背景-新城区工厂
浙江氢途科技有限公司位于目标打造“浙江光谷·富春芯城”的杭州富春湾新城,氢途科技是一家专注于氢燃料电池研发等相关工程应用开发服务的新能源科技公司,于前几年计划迁入富春湾新城,并在富春湾互通的门户位置建造新一阶段的总部厂区。
▼鸟瞰全景 © 刘国威
富春湾新城建设兼顾生态、人文、产业集群的建设和发展。该区域工厂与园区的建设需突破原本传统的厂区模式,并与当下新城的社区形象和周边环境相契合,打造兼顾人本关怀,改善办公人员的工作体验并提升思维创造力,关注高效生产与可持续发展的创新生态园区。
▼黄昏城市街景 © 刘国威
建筑形态-工厂的公共边界
项目用地的北侧及东侧与富春江相望,该地块设计依托着《富春山居图》的文化底蕴,遵循工业建筑空间生产效率,寻求创造开放生态的工厂环境与富有科技创造力的办公场所。建筑形体由展厅接待区、加工生产车间、食堂休闲区、办公综合楼、研发测试中心、多功能模块组成,各个功能体的边界衔接区域形成了门廊、露台、通高花园、屋顶平台等多功能复合空间。
▼空间生成图解 © 森上建筑
▼主楼外观 © 刘国威
▼建筑立面 © 刘国威
▼外观近景 © 刘国威
▼立面近景 © 刘国威
▼外观细部 © 刘国威
▼入口 © 刘国威
员工休闲区及食堂位于生产车间与办公综合区之间,是两大功能区块间的一道缓冲带,在此打造的通高花园区与屋顶露台是楼中令人松弛的户外休闲场所与交互空间。这个通过有机造型打造的富春湾沿线上具有识别性的天际线观景台,使得在职人员在完成精密的工作之余,可借富春江之景,放松身心,亲近自然。
▼大厅与展厅 © 刘国威, 方立明
▼办公区 © 方立明
▼会议室 © 方立明, 刘国威
▼休闲观景露台 © 刘国威
城市界面-富春湾的科技符号
氢途科技作为以生产性空间为主体的园区,如何表达企业形象并兼顾城市界面与环境融合是设计关注的重点。尽管位于工业地块,但隔街相望的即是居民区与幼儿园等生活配套设施,新城与新科技应具备一个更为时代与律动感的城市界面,为富春湾的街区创造一个不受传统工业厂房干扰的城市沿街形象。
▼模型 © 森上建筑
▼鸟瞰夜景 © 刘国威
▼街区的科技符号 © 刘国威
建筑的立面造型结合了高新技术的科技感并对LOGO元素进行了转译,以“T”为原型,通过横向与纵向的斜切造型应用于裙房与办公楼的立面设计中。低层立面上错动韵律的开窗削弱了厂房呆板的体量,高层的幕墙斜向杆件造型富有视觉动态,成为了具有企业识别性的科技符号,也为富春湾的新城营造出具备科技时代感的街区氛围。
▼夜景外观概览 © 刘国威
▼夜晚外观近景 © 刘国威
▼场地区位 © 森上建筑
▼一层平面图 © 森上建筑
▼二至五层平面图 © 森上建筑
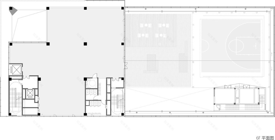
▼六层平面图 © 森上建筑
▼办公层平面图 © 森上建筑
▼立面图© 森上建筑
项目名称:氢途科技杭州总部项目类型:建筑设计设计方:森上建筑项目设计:2023.07完成年份:2025.12方案主要设计团队:章钧添 孙鸿斐 顾子昕室内设计团队:岚禾建筑装饰设计有限公司施工图合作设计院:浙江省工业设计研究院有限公司项目地址:浙江杭州建筑面积:16000㎡摄影版权:刘国威&方立明客户:浙江氢途科技有限公司材料:铝板 涂料 玻璃幕墙
客服
消息
收藏
下载
最近


































