查看完整案例

收藏

下载

翻译
ВИХІДНІ ДАНІ
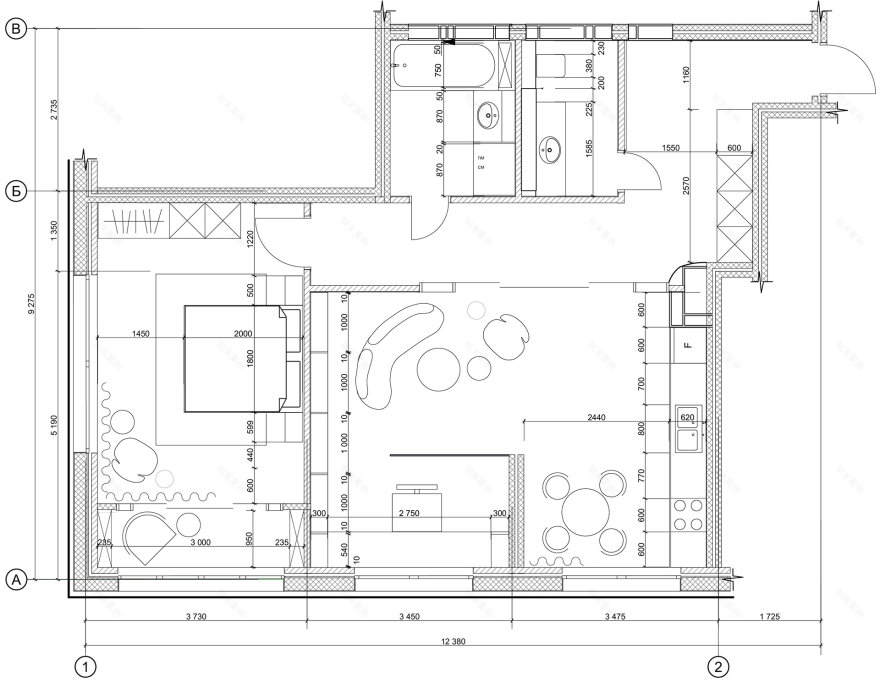
Місцезнаходження: м. Київ, вул. Пимоненка, 20 (Шевченківський район)
Будинок: 1
Поверх: 9
Квартира: 138
Загальна площа: 78 м2
ОСНОВНІ ВИМОГИ
* Власник: студентка + працює в сфері ІТ
* Збереження простору від інформаційного навантаження;
* Максимально спрощений дизайн і відсутність яскравих кольорів.
* Гобі: захоплюється читанням художньої літератури;
* Полюбляє затишні зустрічі з друзями;
ВХІДНА (ТРАНЗИТНА) ЗОНА
КУХНЯ-ВІТАЛЬНЯ (ЗОНА КУХОННІ-ЇДАЛЬНІ)
КУХНЯ-ВІТАЛЬНЯ (РОБОЧА ЗОНА)
КУХНЯ-ВІТАЛЬНЯ (ЗОНА ВІТАЛЬНІ)
ЗОНА САНВУЗЛІВ
СПАЛЬНЯ
РЕЛАКС-ЗОНА
Концепція базується на ідеї загальної безколірності, де білий колір використовується як основа для дизайну, на тлі якої відбувається гра текстур та фактур, від стін і стель до підлоги і меблів. Ключовим елементом в даному дизайні є підсвітка. Велика кількість точкових світильників, світлодіодних стрічок та додаткових світильників у вигляді бра та настільних ламп, розміщена по всьому приміщенню. Ця підсвітка регульована за допомогою сучасних систем керування освітленням. Вона дозволяє створювати різні атмосфери, варіюючи яскравість і тон освітлення. Від білого світла над робочими поверхнями до теплого або кольорового світла для створення атмосфери і зонування простору.
Дизайнер: Аліна Кисіль
客服
消息
收藏
下载
最近





























