查看完整案例

收藏

下载

翻译
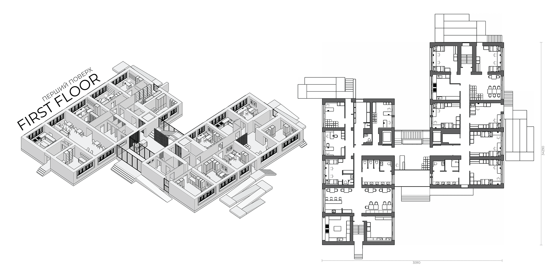
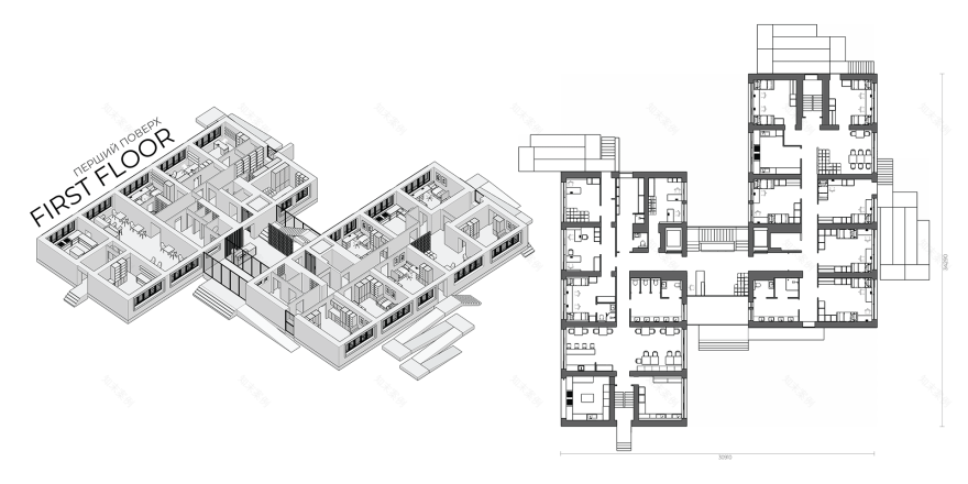
Renovation of the LNAA dormitory
(Lviv National Academy of Arts)
Реновація гуртожитку ЛНАМ
(Львівська національна академія мистецтв)
Designer: Alina Nahaichuk
Date: december, 2024
Location: Lviv, Ukraine
Area: 5233,8 м²
Exterior
before / after
Recreation / coworking area
Зона відпочинку / коворкінг
Staircase / corridor
Сходи / коридор
客服
消息
收藏
下载
最近


















