查看完整案例

收藏

下载

翻译
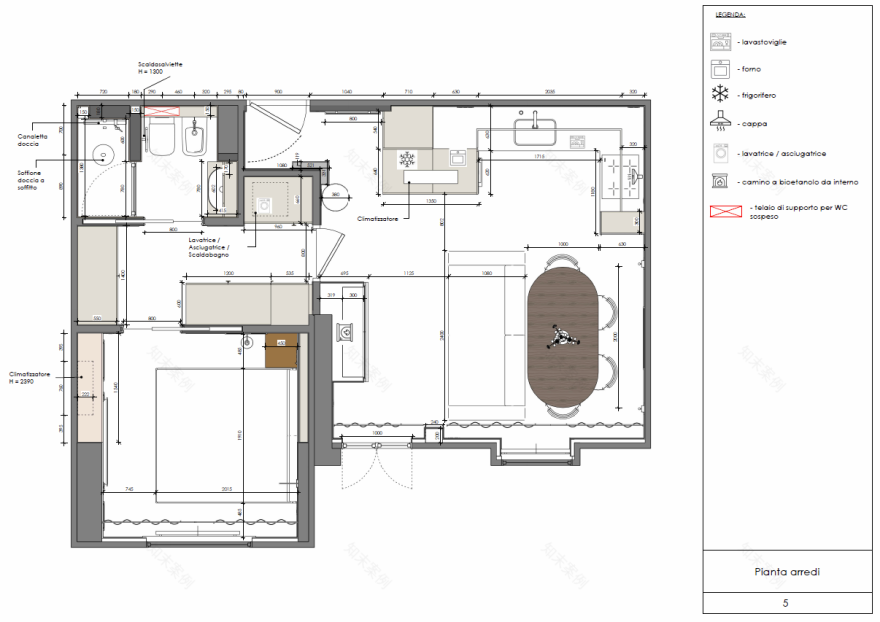
Residential project in Milan (IT)
This project is a refined 41 m² apartment renovation in Milan. The concept blends soft contemporary elegance with subtle classical details, bespoke millwork and integrated lighting. The layout includes an entrance, kitchen–living area, bedroom and bathroom. Warm oak finishes, marble-effect tiles and custom cabinetry create a cohesive, light-filled interior, enhanced by a bioethanol fireplace as a sculptural focal point.
Within this project, I designed all custom cabinetry and built-in furniture.
The project includes detailed technical drawings:– demolition and construction plans– electrical and lighting layouts– plumbing schemes– furniture specifications– material schedules
Materials were carefully selected to create warmth and visual continuity:French herringbone parquet, marble-effect porcelain tiles, Egger oak veneer and integrated aluminum details.
客服
消息
收藏
下载
最近

















