查看完整案例

收藏

下载
尼汝村位于世界自然遗产“三江并流”区域的核心腹地,是一个深藏于横断山脉褶皱中的藏族古村落,被联合国专家誉为”世界第一村"。作为香格里拉深处的秘境,尼汝北连稻城亚丁的圣洁雪山南接普达措国家公园的湖光山色东至丽江宁蒗泸沽湖的神秘风情串联起雪山、森林、湖泊、草甸、牧场、溪流与古村。阿若康巴·尼汝庄园作为这片秘境中心的“尼仓”希望为每一位徒步者打造出理想的身心度假空间,无需刻意寻觅抬眼便是大自然中最原始的壮丽闭目便能感受内心最纯粹的宁静。在的绝美画卷里,尼汝宛如一颗隐匿的明珠。阿若康巴・尼汝庄园,就静卧于这片秘境的中心,它曾承载着过往的故事,如今迎来建筑改造的新生契机。
溯源:珍视原始底蕴
传统建筑是尼汝村适应自然、改造生活的智慧体现。以松木为骨、土石为为墙的民居,三层结构的民居首层与二层为夯土墙体围合木架而形成主体结构,三层为木质的“凳架”双坡屋顶结构,主要用于保护主体结构免受雨雪侵蚀及储存各类杂物,建筑兼具畜养、居住与储物功能,同时村民跟随季节在房屋、田地与高山牧场之间“逐时令而居”,这种半农半牧的方式恰似建筑与自然的默契,展现着当地与自然动态共生的生活生产智慧。
尼汝庄园的前身,是一座当地传统的民居建筑,拥有典型的传统结构形态,融合了当地传统与岁月痕迹。它的布局与构造,带着地域的独特印记,是当地居民生活智慧的结晶,也是尼汝历史文化的物质载体。在改造伊始,我们深入探寻其过往,研究建筑的历史脉络与文化意义,从传统建筑元素中提取精髓,比如当地特有的木构工艺、质朴的石砌技法,这些都将成为改造后新建筑独特气质的根基。
理念:生态与文化共融
尼汝的自然生态是其最为珍贵的财富。改造秉持生态共生理念,力求将建筑对环境的影响降至最低。选用当地废弃房屋拆解后的旧木材、石材,减少运输能耗与碳排放。在建筑布局上,依据场地的自然地形与风向,优化空间规划,提升自然通风与采光效果,降低能源消耗。同时,引入生态景观设计,利用本地植物打造庭院,营造与周边雪山、森林、溪流相呼应的生态小环境,让庄园成为自然的有机组成部分。
实践:空间重塑与功能升级
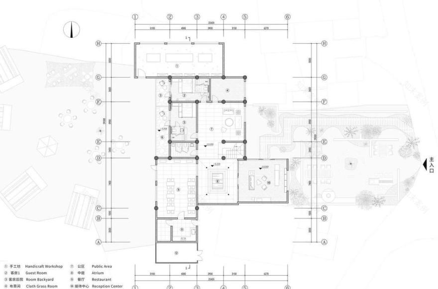
(一)院落
在院落整体布局方面,我们对院落的景观布局进行调整,保留一定程度的运营灵活性。考虑到尼汝村作为一个徒步旅行的目的地,而徒步活动本身正在日益成为一种生活方式与社交场景,我们希望场地内预留出休闲草坪能够容纳更多的活动,让整个院落空间具备包容与多功能属性,能够让到达尼汝的旅行者们能够在此进行休息与交流,使得众多旅行者更好地融入到当地文化生活中。同时,藏族村庄的院落从来不是以“高墙大院”的封闭形式出现,而是一种开放感,其院墙更多是为满足阻挡牲畜进入以及标定各自的属地范围,邻里之间的越过由夯土或当地石材垒筑而成的低矮院墙进行沟通是乡村生活的常态,低矮的院墙也使得村庄与院落与周边保持着和谐的场地关系没有被生硬切割,我们将这种传统的院落关系继续进行了保留,以延续其开放与融合的场地关系。值得一提的是,在项目建设中,我们把原来的一间结构不稳的旧房新建成为现在的接待厅。另外新建了木工坊作为旅客们了解尼汝当地建筑文化的传播场所,人、乡村文化、自然在这一刻得以融合。
(二)外观重塑
从外观上,保留传统建筑的坡屋顶形式,及传统的立面材料语言,适当调整比例与尺度,使其更符合现代审美与功能需求。在对原有建筑主体结构进行保留的基础上,我们对三层原有“凳架”双坡屋顶结构进行彻底重构,在回应传统材料体系的同时扩大了建筑的室内面积。三层的屋顶采用当地传统杉木瓦片铺设,既保证防雨功能,又增添古朴韵味。建筑立面运用传统木构框架与现代玻璃材质结合,木构展现当地特色,玻璃则引入充足自然光线,同时提供绝佳的观景视野,让雪山、森林的美景成为室内的天然画卷。面对中庭的立面一二层完全打开,同时将建筑立面的彩绘木架进行了保留,让徒步旅客能够更好的欣赏到中庭景观。
(三)室内空间优化
客房:我们对客房布局进行精细调整。在保证私密的同时,合理规划空间尺度,提升舒适度。墙面装饰融入尼汝当地的刺绣、唐卡等艺术形式,让住客在休憩时能深度感受地域文化魅力。
公共空间:一层的餐厅与厨房区域,扩大餐厅空间,采用开放式布局,让住客在用餐时能欣赏户外景色。优化厨房操作流线,提升服务效率。二层、三层的公共区域,增设休闲阅读角、观景露台等功能。
在雪山环抱的香格里拉秘境里,设计打造了一处不止于栖居的民宿——它是一个通往藏族文化与自然灵性的入口。作为洛克线秘境里的老藏房焕新,我们没丢当地木构石砌的老底子,又融了现代设计,肌理涂料配木构,开窗直接把雪山森林框成室内画。留了庭院草坪、造了木工坊,让建筑顺着自然来,人文和生态揉在一起,希望去普达措徒步的人喜欢。
反思:设计之外的故事
阿若康巴在藏语里意为“来吧,朋友”,希望通过这个独特的场所链接起游客、风景与当地文化。主理人扎巴格丹是一个传奇的康巴汉子,祖籍香格里拉,出生于印度,少年时出家做过7年喇嘛。扎巴的父亲是茶马古道的腊都(赶马人),在他小时候经常为他讲述家乡和茶马古道的故事。1997年,扎巴成立了香格里拉第一家生态旅游公司——康巴商道探险旅行社。2006年,他创办了“香格里拉民族文化多样性传承与保护协会”,致力于民族文化的传承和保护。协会中设立了唐卡中心,向贫困学生提供免费食宿和学习机会,让他们系统学习到藏文化,唐卡绘画,以及藏语、汉语和英语三种语言。而主理人的多元背景与所在地区的特色也成为项目中各种融合风格软装元素的灵感来源。
项目建成后获得了江苏省土木建筑学会一等奖与科学技术(建筑设计)三等奖、云南省“好村寨”设计大赛三等奖,一定程度上证明了设计成功延续了藏族村落传统民居的风貌。这里远不止是一间客房,更是一座活的民族体验馆。围拢在篝火旁跳锅庄,火光映照着一张张真挚的笑脸,无需语言也能心意相通。
客服
消息
收藏
下载
最近










































