查看完整案例

收藏

下载

翻译
Project Information项目信息地址 Location / 温江-金科 • 天辰面积 Area / 370㎡设计 Design / 付玉龙风格 style / 混搭风这是一套每层楼都风格各异的混搭风设计,希望大家喜欢我的设计作品。谢谢。以下,多图预警:
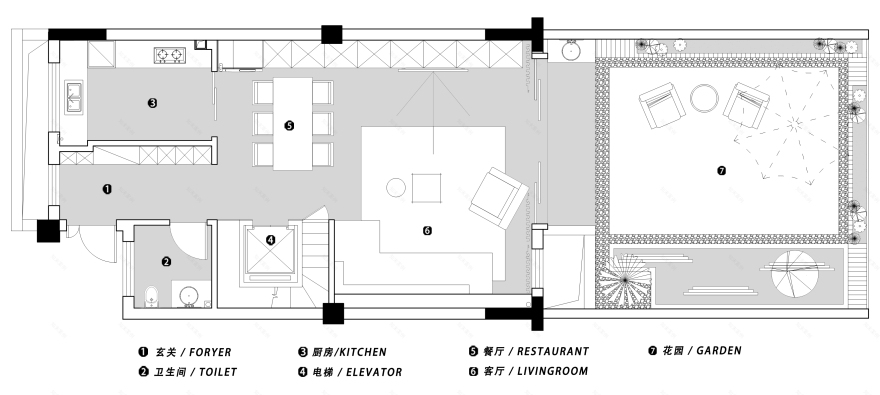
▼一楼
▲一楼玄关
▲一楼厨房
▲一楼客餐厅
▲一楼花园
▼负一楼
▲负一楼会客厅
▲负一楼棋牌区
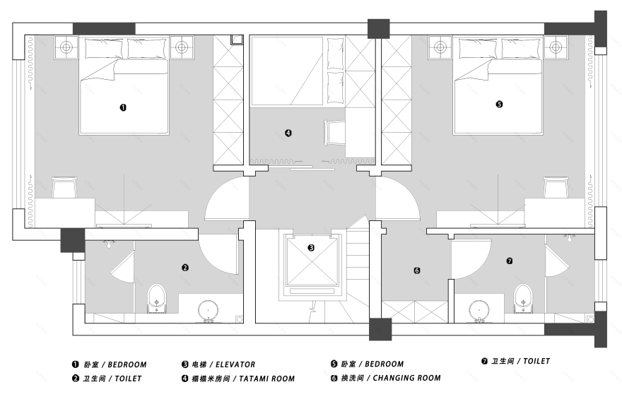
▼二楼
▲二楼老人房
▲二楼老人房卫生间
▲二楼客房
▲二楼客房卫生间
▲二楼榻榻米房
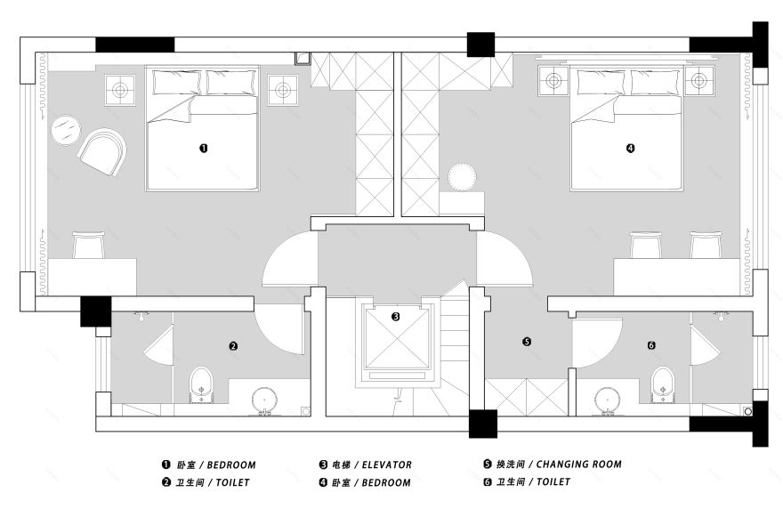
▼三楼
▲三楼主卧
▲三楼主卧卫生间
▲三楼次卧
▲三楼次卧卫生间
非常感谢你的观看。
客服
消息
收藏
下载
最近










































