查看完整案例

收藏

下载
东南侧鸟瞰
长风生态商务区位于上海市普陀区南部内环线和中环线之间的苏州河北岸,其前身是北新泾工业区,是上海老工业区成功转型的典范,也是上海市首批重点推进的现代服务业集聚区之一,初步形成了开放服务型、总部集聚型、人文生态型的区域特征。上汽集团作为中国最大的汽车工业企业,正处于向全球布局、跨国经营、具有国际竞争力和品牌影响力的世界著名汽车公司的转型发展过程中。位于长风生态商务区的尚鸿商务中心项目将以汽车消费和汽车品牌文化为核心,围绕上汽自身需求,致力于塑造现代汽车服务企业的总部经济集聚地,现代汽车服务产业新技术、新知识和领军人才集聚高地,以及汽车服务产业新业务示范和体验的领先基地。本项目突出节能、绿色、环保、智能的设计理念,是上汽集团第一个绿色建筑三星和LEED金双认证项目。
大区位图©Atelier Z+
西南侧鸟瞰
场地概况
Site Overview
项目基地位于丹巴路以东,云岭东路以北,东邻华师大四附中,北靠庆隆长风住宅项目沁和园,是长风生态商务区的西南门户节点。基地前身是1958年迁址于此的华丰钢铁厂,1965年该厂由上海市冶金局划归上海市机电一局农机公司(上汽集团前身)正式进军汽车行业。1992年华丰厂与上海压铸厂合并成立上海有色铸造总长,2001年上汽集团在华丰厂基础上合资成立上海皮尔博格有色零部件有限公司,并于2010年告别云岭东路厂区搬迁至嘉定,原有厂区经城市更新规划调整确定为商务、商业、文化混合用地。基地周边公共交通便利,教育、科研、文教、医疗及商业设施都较为充足。场地绿化景观资源丰富,北、东、南三面都被30 - 50米宽的绿带环绕,西侧隔路邻近城市公园。
小区位图©Atelier Z+
总体布局
Overall Disposition
为了凸显上汽集团汽车服务业务的示范性、体验性和品牌性,我们在场地西南角临十字路口公众可达性最好的位置布置了一栋4层高方形体量的上汽品牌中心,并以此为关节点沿南侧和西侧道路呈L形布置四栋56米高的塔楼。这样的布局让四栋塔楼尽量远离北侧住宅区,与其之间留出大面积的共享花园空间,在解决日照影响的同时,保障了各自的私密要求与景观视野。
西南侧轴测图©Atelier Z+
西南侧鸟瞰
东南侧鸟瞰
品牌中心(A4楼)北侧的A1楼、以及东侧的A2、A3楼这三栋是商务办公主楼,它们通过相互之间的两层通高连接体在底部联成一体。
总平面图©Atelier Z+
底层除门厅外布置配套会议中心、文创商业,二层布置健身中心、后勤及物业部门。最东侧的B楼相对独立、作为还建地方政府的公益文化设施。
功能构成图©Atelier Z+
建筑群沿云岭东路自西向东260米一气呵成展开,衬着50米宽的城市绿带,向城市展示了一个兼具公共性和地标性的汽车文化界面。
南侧街景图(左右滑动)
四栋塔楼都设置场地内外两侧双入口,面对内侧花园临内部车道是车行下客入口,面对外侧街道是人行入口。其中A1是朝东的独立专用车行入口,A2、A3合用一个朝北的车行入口,这两个入口内是贯通这三栋楼、总长195米的两层通高公共门厅,内部分为五段,其中三段是三栋塔楼电梯厅外对应的前厅,两段是三栋塔楼间的连接空间。
The four towers are designed with dual entrances on both the inner and outer sides of the site. The inner entrances face the garden and connect to the internal driveway for vehicular drop-off, while the outer entrances face the street for pedestrian access. The A1 tower features an independent, dedicated vehicular entrance facing east. Towers A2 and A3 share a north-facing vehicular entrance. Inside, this entrance leads to a two-story-high public lobby that connects the three towers over a total length of 195m. The lobby is divided into five sections: three sections serve as the foyer outside the elevator lobbies of each tower, and the remaining two sections provide connecting spaces between the towers.
一层平面图©Atelier Z+
长轴剖面图(左右滑动)©Atelier Z+
标准层平面图©Atelier Z+A1栋入口
A1栋剖面图©Atelier Z+A1西侧
A2栋、A3栋连接处入口
A1、A2间的连接体向西向南延伸,同时连接了A4品牌中心,其中向西延伸部分成为A1面向丹巴路的人行入口,向南延伸部分是夹在A2和A4之间的400座会议厅。
通往A4栋品牌中心
A2、A3间的连接体向南延展直至面向云岭东路的人行入口,成为贯穿南北、带有北向高侧天窗的高敞大厅,并有扶梯通向地下一层员工餐厅。
A2栋、A3栋共享大厅南北贯通
立面设计
Façade Design
立面设计回应上汽集团的品牌定位及汽车工业的美学特质,塑造项目整体简约理性、雅致精密、又富于视觉冲击力的气质。
东侧立面鸟瞰
三栋办公主楼的南北主立面上设置竖向凹槽,将单栋塔楼调适为两片板状体量微挑于首二层以上、与凹槽相夹的三明治状态,使塔楼在保证楼层使用进深的前提下在视觉上显得相对更为修长,并用两种幕墙类型来分别定义板状体量和凹槽这两部分的外立面。
南侧立面图©Atelier Z+
北侧立面图©Atelier Z+
西立面图©Atelier Z+
东立面图©Atelier Z+
对于作为代表项目形象识别度的板状体量部分,我们采用了带有半层高横向外突石材遮阳格构的水平长窗带和铝质窗间墙带竖向虚实交替的系统,形成富于韵律感的光影效果。石材格构的外缘端部居中嵌入铜色铝材凹槽,让格构更显精致细腻。窗带采用高强度的原产旭格窗系统,单块固定扇达到6平米,形成室内无遮拦的超宽横屏城市景观视野。窗间墙带部分采用了仿铜金属漆质感的内凹弧形铝型材拼接,在光影变化下展现出汽车工艺般的美感。
典型墙面节点详图©Atelier Z+
典型墙面局部
塔楼竖向凹槽延续到塔楼首二层立面是带有两层高竖向石材格构的玻璃幕墙,比板状体量更轻盈通透,格构做法与板状体量的横向格构相同。
A1楼车行入口上方设有大尺度出挑的铜色铝板宽大雨棚,底面配有发光顶棚。
A1栋楼铜色铝板雨棚
三栋主楼及品牌中心之间的两处连接体由带有铜色铝板挑檐雨棚的通高全玻幕墙维护,形成整个项目中最通透的部分。
通高全玻幕墙作为文化配套的B楼标准层相对最小,形体处理呼应内部偏心核心筒布置,形成西侧的竖向格构玻璃幕墙体量与东侧微凸的横向格构窗带-铝板带体量互相咬合的效果。
B楼南侧品牌中心是整个项目的立面处理中最特殊的部分,我们用一个上下通高的密集石材柱廊构架形成品牌中心南、西两边面对城市的开放界面,既调节了它与项目整体的比例及尺度关系,又凸显了其作为项目整体空间关节点的应有形象。
A4栋楼品牌中心
柱廊内是分层错叠咬合穿插的盒子体量,形成丰富的退台与悬挑空间。这些盒体分为由弧形铜色穿孔铝板单元包裹的半透明双层幕墙盒子和透明的单层玻璃幕墙盒子两种类型,并兼容了内部两个上下错位的双层通高空间。
A4栋墙体详图©Atelier Z+
景观设计 Landscape Design
景观设计充分融合了生态可持续和城市共享的理念,建筑组群和南、北、东三面的绿化带、花园和开放空间形成有机的整体,创造建筑、城市与环境的和谐共生。
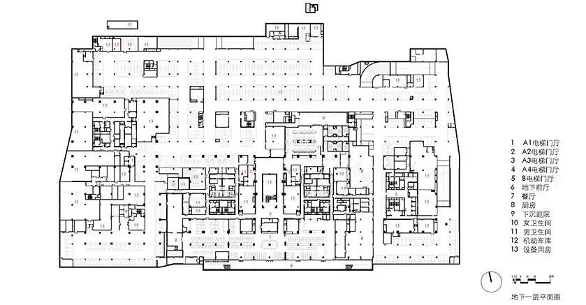
建筑组群南北两个长边的硬质铺装消防场地外侧都设置了向内跌落的线形跌水景观,既作为建筑各主要入口前区的对景屏障,又作为与外侧绿化景观区域的过度。南侧跌水与消防场地间设置通长线形下称庭院为地下一层的员工餐厅提供自然采光与通风,并让跌水一直延续到下沉花园底部水池。
地下一层平面图©Atelier Z+
下沉庭院
南区跌水外侧绿化带的主体是带有稀树的生态草原,而在品牌中心南侧则是适合举行各种活动的大草坪。生态草原区由本地耐寒植被组成,包括榉树、银杏、柳枝稷、千鸟花、金鸡菊、羽毛草等,具备低维护需求,能有效减少水资源的消耗,并提供栖息地支持本地生物多样性。
The green belt outside the southern cascade is mainly composed of an ecological meadow with scattered trees, while the area south of the Brand Center is a large lawn suitable for various events. The ecological meadow consists of local hardy plants, including zelkova, ginkgo, switchgrass, gaura, coreopsis, and feather grass, which require minimal maintenance, help reduce water consumption, and support local biodiversity by providing habitats.
南区生态草原
品牌中心南侧大草坪
北区跌水外侧的花园是以本地树种生态混合林和湿地为主的休憩漫游景观,错落有致地种植了栾树、朴树、榉树、白玉兰、枫树、樱花、海棠、桂花、杜鹃、鸢尾等。大树撑起绿荫,注重四季花与叶的色相变化;灌木既丰富林层结构,也与林间湿地一起为野生动物提供栖息之所和食物来源。
北区休憩漫游景观
生态草原,生态混合林和湿地,是不同的生态景观类型,但它们都对丰富城市中的生物多样性、调节气候、涵养水源等有非常积极的作用。南北两区的景观相互依存,共同营造丰富多样、充满生机且优美动人的生态系统,也体现了企业对环境保护和可持续发展的承诺和永续形象。
北侧花园内跌水结构下部空间及园内草坪设置了开放式会议区、休闲放松区和运动场地等的多样设施,不仅服务于园区内部,也与周边社区及城市保持开放共享,这增强了企业与城市的互动。
室内设计
Interior Design
室内设计立足展现品牌形象,融合了当代工艺美学,以及功能性与艺术性的高度平衡。底层门厅作为室内最重要的空间,延续外部建筑用材至室内一体成型,展现简约大器的整体特质,不仅体现接待区的氛围,并通过对于上汽品牌元素的融合兼容了品牌展示的需要。室内注重多功能性和弹性使用,无论是访客、员工还是举办活动,都能适时依需求选择空间。会议室设计灵活多变,从小型会议到大型活动,可以根据所需进行灵活配置。同时,休息区也兼顾了舒适性和实用性,在工作之余可以尽情放松。
共享大厅
室内各个接待区
通往地下员工餐厅及地下前厅、员工餐厅
电梯厅
结合外立面的大面积水平窗带设计,利用光线与室内植物改善大进深室内办公空间使用体验,营造和谐且舒适的工作环境。
办公区域
材料与细节的设计展现上汽集团对品质的追求和对工艺的关注,也充分考虑环保和可持续性,符合现代企业的社会责任。
完整技术图纸
Drawings
总平面图©Atelier Z+
一层平面图©Atelier Z+
二层平面图©Atelier Z+
标准层平面图©Atelier Z+
地下一层平面图©Atelier Z+
A1栋八层、九层、十层、十一层平面图(左右滑动)©Atelier Z+
A4栋三层、四层平面图(左右滑动)©Atelier Z+ 南立面图©Atelier Z+
北立面图©Atelier Z+
东立面图©Atelier Z+
西立面图©Atelier Z+
剖面图1©Atelier Z+
剖面图2©Atelier Z+
剖面图3©Atelier Z+
典型墙体详图©Atelier Z+
A4栋墙体详图©Atelier Z+
项目档案
Credits and Data
项目名称:上海现代汽车服务产业集聚区尚鸿商务中心
建筑师:周蔚+张斌/致正建筑工作室
主持建筑师:张斌
项目建筑师:李沁,王惟捷(方案设计,扩初设计,施工图设计),王佳绮(景观设计)
设计团队:洪凯越、刘晓曼、廖雪城、梁一凡、章迅、黄荣正、查东尼、韩城、许昱歆、王智聪(实习)、刘晓宇(实习)、陆伊昀(实习)、郝竞(实习)、娄刘梦(实习)、唐韵(实习)、何陈忠(实习)、贺翠婷(实习)
室内顾问:一宇设计/王裕中、陈芃卉、刘中杨、王志豪、林育生
景观顾问:一宇设计/林逸峯、田益正、李建郡、黄婉贞、Alex de Dios、黄申飞、沈雪、吴丽晶
幕墙顾问:上海熙玛工程顾问有限公司/蔡一栋、李根、吴顺
灯光顾问:上海同济建筑室内设计工程有限公司照明工程所/杨秀、龙婷、熊奇珉、何迪
室内施工图:上海同济建筑室内设计工程有限公司/张栩、王文武、谈凯、黄宏斌、陈璐洁
设计总包:同济大学建筑设计研究院(集团)有限公司
设计总负责:张斌、曾群
建筑:专业负责人:周蔚、陈康诠、赖君恒 设计:李沁、韩佩菁
结构:专业负责人:万月荣、洪文明 设计:钟毓仁、裴英博、李旭、李振国、戴嘉琦、董耀旻、贾国庆、裴英博、耿柳珣
动力:专业负责人:刘毅、邵华厦 设计:朱青青
暖通:专业负责人:刘毅、邵华厦 设计:朱青青、周懿、吴佳菲
给排水:专业负责人:王文清 设计:王文清
强电:专业负责人:武攀 设计:武攀、唐平、王瑛、胡祝格、梁富助
弱电:专业负责人:唐平、徐畅慧 设计:唐平、徐畅慧
建设地点:上海市普陀区云岭东路680号,云岭东路、丹巴路交叉口东北侧
建设单位:上海尚鸿置业有限公司
施工总包:上海建工二建集团有限公司
专业分包:
幕墙:武汉凌云建筑装饰工程有限公司 江苏恒尚节能科技股份有限公司 上海玻机智能幕墙股份有限公司
室内:上海市建筑装饰工程集团有限公司
泛光:上海建工一建集团有限公司
空调:上海建工一建集团有限公司
消防:上海环创安装工程集团有限公司
弱电智能化:上海市安装工程集团有限公司
景观:上海建工园林有限公司
设计时间:2015.03 - 2022.09
建造时间:2016.12 - 2023.12
用地面积:45,802m2
占地面积:14,328m2
建筑面积:191,724m2
结构形式:钢框架+钢筋混凝土核心筒结构(A1栋,A2栋,A3栋,B栋),钢框架结构(A4栋)
建筑层数:地上11层、地下2层
主要用途:办公,文创商业,会议,展示,公益文化,员工餐厅
主要建筑用材:印度蓝花岗石,铜色氟碳喷涂铝型材、铝板及穿孔铝板,超白玻璃,旭格窗系统,拉丝不锈钢
主要室内用材:皮革面印度蓝花岗石(墙面)、光面印度蓝花岗石(地面)、氟碳喷涂铝板、铝格栅、铝板扩张网、木纹铝板、树脂板、硬包、木饰面、透光膜、编织地毯、防滑地砖
主要景观用材:花岗石、岩板、塑木、卵石、景石
工程造价:约143,000万元人民币
摄影师:章鱼见筑
客服
消息
收藏
下载
最近














































































