查看完整案例

收藏

下载
▼一楼半开放公共餐区
▼露出梁底天花
▼远看灯线隐去,就餐高顶仪式感
Moss照⻘苔是⼀家⾼端中餐厅,品牌调性沉静、内敛⽽优雅,位于⼀栋柱⽹规整分明的建筑⾥。⺠以⻝为天,不同于⻄餐以⼑叉作为餐具解构⻝材,中餐是⽤⼀双筷⼦夹起⻝物,⼀同送⼊⼝中品尝丰富的层次,讲求“天⼈合⼀”的融合与平衡。中餐所蕴含的饮⻝⽂化和哲理博⼤精深,我们以此为灵感进⾏空间设计转译。
▼包间设有茶室
▼二楼包间材质以艺术涂料、石为主,不失现代感
▼二楼细部
▼壁炉
餐厅总共有三层,⼀层是公共餐区,另外两层均为独⽴包间。空间划分遵循原始建筑柱⽹,布局对仗⼯整。从电梯出来即可⻅印有标识的前台和酒柜,穿过开放酒柜区,⼀排落地窗框映⼊眼帘,我们希望在此打造富有节奏感的空间印象,于是将建筑⽴⾯窗户的节奏引⼊室内空间排布,并⽤厚重的深⾊胡桃⽊勾勒,进⼀步强调和重复了这种韵律,形成建筑与室内空间的连通和对话,奠定了整个⼆楼公共就餐区的空间基调。▼入口印有照青苔标识的前台
▼开放酒柜
沿窗就餐区的桌椅摆放与每个窗框融为⼀体,窗框既是框景,⼜作为两⼈餐位。同时露出这⽚区的梁底天花,将所有管道⻛⼝等设备收纳于旁边的吊顶中,窗框⾼度与吊顶底部⻬平,两者之间的⾼差为吊灯的⾛线排布留下空间,并与天花脱开⼀定距离,远看灯线隐去,当落座于此⼜可以体验到⼀种⾼顶仪式感。在空间另⼀端的尽头,“锈迹斑驳”的镜⾯呼应空间整体材质调性,映照出对⾯的窗户,延伸强化了空间节奏。
▼一楼半开放公共餐区
▼细部
楼上是独⽴包间层,常规中餐厅多注重包间内的空间,外部⾛廊幽暗窄⼩。我们试图打破这种局限,减弱⾛廊的纵深感,避免空间压抑。设计以“客厅”为概念,从电梯厅出来布局了⼀个弹性空间,通过中轴⻔的开合,空间既可作为开放待客区,关闭起来⼜形成临时独⽴包间。电梯厅整⾯墙的精选⼤理⽯材延伸⾄⾛廊,营造空间的⽆限贯穿感,此外包间⻔把⼿沿⽤同款材料作为细节处的回应。▼电梯厅整面墙精选大理石材延伸至走廊
▼设计避免外部走廊幽暗窄小,打破局限减弱走廊的纵深感
房间分隔依据柱⽹规整地进⾏空间划分,但在⼊⼝⽞关处,我们有意偏离柱⽹,将墙体分隔脱开⼀定距离,露出柱⼦和梁,建筑本身的“⻣架”成为⽞关的“雕塑”。⼗字形梁柱的体量感、⾛廊浅⾊的材料和包间⼊⼝深⾊⽊⽴⾯,反差间形成空间张⼒。⽞关偏离退让所留出的空间,作为进⼊包间前的留⽩,与⾛廊融合,仿佛是城市⾥街区转⻆处的⼝袋空间。客⼈从电梯出来穿过⾛廊⾏⾄包间,⼀路体验空间的开合与流畅,⽽不是封闭悠⻓的笔直路径,最后进⼊包间前的短暂停留,为包间留⾜想象空间。
▼空间标志性裸露梁柱“雕塑”
▼电梯厅整面墙精选大理石材延伸至走廊
▼二楼包间材质以艺术涂料、石为主,不失现代感
根据功能所需,包间设计有茶室或榻榻⽶区,有的含壁炉或 KTV 休闲功能。家具部分选⽤业主收藏的⽊头⽼家具,靠墙展台的印玺⽯雕摆件、壁龛⾥的陶罐,这些⼩物件与家具⼀起营造优雅的中式古典感。空间材质以艺术涂料、⽯为主,不失现代感。配合同⾊吸⾳软包,保证了包间声学环境舒适性。▼部分家具选用业主收藏的木头老家具,靠墙展台的印玺石雕摆件、壁龛里的陶罐
▼包间内的榻榻米区
▼包间盥洗室
整个餐厅的灯光未采⽤⼤⾯积下照光,⽽是从不同⻆度的多层次精准照明,点到为⽌,营造沉静的⾼级氛围。除了照亮桌⾯的吊灯,在局部设置点状聚光照亮桌⾯的植物盆景,不经意间暗寓餐厅名“照⻘苔”。轨道⼩射灯点缀于墙上,关照展现着艺术品摆件。另外,艺术造型的台灯和墙边地灯微光营造出居家舒适感。包间⻔牌、把⼿边也都贴⼼地⽤⼩射灯照亮,空间更显低调与⾼级。
▼餐厅半开放用餐区域照灯细节
▼地灯微光射灯细节
我们为品牌定制设计的标识从汉字笔画解译,⽅正如印章,带有⼀丝国⻛古韵⽓息。最终从⽂化空间转译到布局⼤框架,再到平⾯视觉,丰富融合⽽不失细节,⽆⼀不彰显品牌沉静优雅的调性⽓质。
▼餐厅标识设计,彰显品牌沉静优雅的调性气质
▼弹性空间中轴门可关可合,关闭时成为独立包厢空间,门打开则成为开放待客区
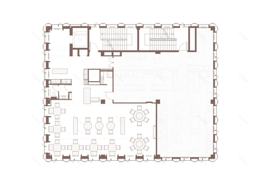
▼一层平面图
▼二层平面图
▼ 三层平面图
业主:照⻘苔 Moss
项⽬地点:杭州云起中⼼
项⽬类型:餐饮
项⽬规模:900平⽅⽶
设计时间:2022年10⽉
建成时间:2024年2⽉
主持建筑师:董雪莲, Matteo Piotti, Andrea Maira
设计团队:⼋荒设计团队
设计范围:建筑改造,室内设计,VI 视觉标识设计
光学顾问:⼗⾀(上海)照明设计有限公司
声学顾问:上海德洛声学科技有限公司
施⼯单位:上海翼楠建筑⼯程有限公司
主要材料:混凝⼟,⽔泥⾃流平,微⽔泥,吸⾳⽑毡,吸⾳喷涂,艺术涂料,花岗岩,⼤理⽯,⽯灰岩,不锈钢,⽊头,瓷砖,钢板
品牌:草字头,Viabizzuno
摄影:张⼤齐
设计美学与现代功能完美结合的典范。通过定制化设计、精挑细选的家具与软装陈设,打造成一处永恒的美学空间。设计美学与现代功能完美结合的典范。通过定制化设计、精挑细选的家具与软装陈设,打造成一处永恒的美学空间。空间氛围营造很棒,功能与美学很好的兼顾到了。空间氛围营造很棒,功能与美学很好的兼顾到了。空间氛围营造很棒,功能与美学很好的兼顾到了。
很喜欢这个设计,不仅只是一个物理空间,更是一种体验和记忆。所有的设计都从感官出发,让人们在空间中感受到宁静与舒适。并不断通过细节与情感进行有效传递,使空间在使用者的心中留下持久的印象。
碰撞与冲突产生特殊的美感,材料运用很不错,碰撞冲突产生特殊的美感
客服
消息
收藏
下载
最近



















































