查看完整案例

收藏

下载

翻译
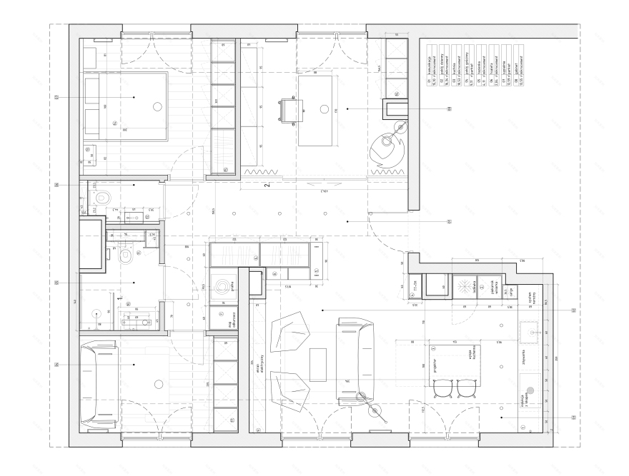
This loft design emphasizes functionality in an open, seamless space, balancing modern aesthetics with practical living. The left side of the loft welcomes you with an inviting living area and kitchenette, while the right side houses a flexible home office, cleverly separated by sliding doors and a heavy curtain for added privacy. Moving deeper into the space, you'll find a cozy bedroom, guest room, and separate toilet and bathroom. The spacious hallway is equipped with custom-built furniture, doubling as a wardrobe, utility room, and laundry area.
The minimalist, modern design highlights clean composition, refined details, and bold contrasts. Custom-made furniture infuses the space with character, showcasing the owner's personality—guitars proudly displayed, a cabinet for climbing gear, and a living room created for social cooking and gatherings. Industrial materials like microcement, steel, and graphite are balanced with soft, muted colors, warm lighting, and natural wood accents.
The state-of-the-art kitchen features an induction cooktop with a built-in extractor, while the living area includes a home theater complete with a retractable screen. Italian fixtures and thoughtfully curated lighting elevate the industrial-inspired bathroom, offering a relaxing yet sophisticated ambiance.
Photos: Łukasz Nowosadzki
Thank you for watching!
Feel free to write a comment if you like it or have any questions about the design
客服
消息
收藏
下载
最近



















