查看完整案例

收藏

下载

翻译
A HOUSE WITH TRADITION IN RADZYŃ PODLASKI
THE HISTORICAL LAYOUT OF A TRADITIONAL PODLASIA COTTAGE, BASED ON THE LAYOUT OF ROOMS CIRCULATING AROUND THE FURNACE, EXPANDED WITH ELEMENTS OF MODERN ARCHITECTURE. WITH RESPECT FOR THE BUILDING TRADITION OF THE REGION AND TAKING INTO ACCOUNT THE ECONOMIC AND ECOLOGICAL NEEDS, THE DESIGNERS HAVE CREATED A SYMBIOTIC HOUSE FOR THE PODLASIA LANDSCAPE.
A symbiotic single-family, detached residential house designed for a family of four.Team: Karolina Kluz, Makary Malakhouski
Category: Student project
Location: Radzyń Podlaski, 20 Jarmuła Stanisława Stagrowskiego StreetPlot area: 2010 m2Building area: 359.3 m2 (designed house 179.3 m2, garage 55 m2, workshop and sauna 125 m2)Usable area: The usable area of the house is 144.8 m2Cubature: 1147 m3 (The volume of the designed house is 607 m3, garage 165 m3, workshop and sauna 375 m3)Timeline: 2022/2023
The borderland culture was born on the basis of several cultures, considering them equally identical. She incorporated them into her canons, recognizing their differences, adapting them to her own context, thus creating a unique cultural marriage. All manifestations of human activity in the process of creating the architecture of this particular region and its most common form - residential houses - "are the most lasting witness of existing boundaries and divisions, but above all of this 'common part'". Without an attempt to get to know and develop awareness of this place, in the next decades, in a natural way due to the ongoing socio-economic changes, we will irreversibly lose its spirit, forgetting about the cultural heritage of this region left to us by our ancestors.
TEAM ASSUMPTIONS
The initial guideline in creating the design concept was to create an ecological single-family house based on the layout of a traditional Podlasie cottage, corresponding to its dimensions with minimal spatial interference in its dimensions for today's residential standards.The characteristic visual value of the construction industry in this region is the small size of the original buildings, as well as the construction using traditional materials such as stone, wood or straw. When it comes to architecture itself, he uses the language of forms such as porches or verandas, which are important elements in building the social life of the region and shaping the sociological image of its inhabitants.Thus, a concept was created that encompasses the uniqueness of tradition and progress, care for culture and acceptance of inevitable changes. The concept of a house that uses knowledge about man, his history and the environment in which he builds his existence.
LAND DEVELOPMENT AND DESCRIPTION OF ADOPTED SOLUTIONS
The house was designed on an exemplary corner plot, measuring 50 m x 40 m, allowing for the location of elements necessary for the proper functioning of the house and the proper connection of the house with the garden.The selected construction plot is located in the area covered by the local development plan for the city of Radzyń Podlaski and is adjacent to areas intended for single-family detached buildings.The corner location of the plot allowed for the optimization of the access road in relation to the facilities located there. Thanks to this, the entrance to the property was designed on the north-western border of the plot with a maximum offset to the northern border. The location of the house on the plot provided a welcome buffer against the noise of the residential road, but also enabled convenient operation of the auxiliary infrastructure closing the northern wall of the development.The above-mentioned infrastructure includes a complex of single-story buildings, combining rooms for parking vehicles (a convenient two-car garage), work (workshop), and relaxation (sauna). The windows of the buildings open onto the garden to the south-east, creating an atmosphere of privacy and a close relationship between the architecture and the surrounding nature.The proposed layout of the buildings and their architecture, which refers directly to rural farm buildings, fits seamlessly into the traditional spatial arrangements of the Podlasie region.On the north-west side and the road running along it, the garden is enclosed by the building of the designed single-family house. There is a relaxation terrace on its southwestern wall.There are three plant cultivation zones on the plot. The first zone is a planned home greenhouse with year-round crops of food plants that filter gray water. In the second zone (from the porch side), closest to the kitchen, herbal crops will be planted, the aesthetics of which will refer to traditional flower gardens located in front of the houses. The third zone is located in the warmest part of the plot, in its south-eastern corner. It is a vegetable garden with an assumed arable area of 200 m2.The designed fence of the plot also refers to the nature of the farm buildings. In the adopted concept, it is a wooden picket fence on a foundation.The paved surfaces of the plot, including paths, entrances to buildings and access roads, were designed with slate stone slabs.
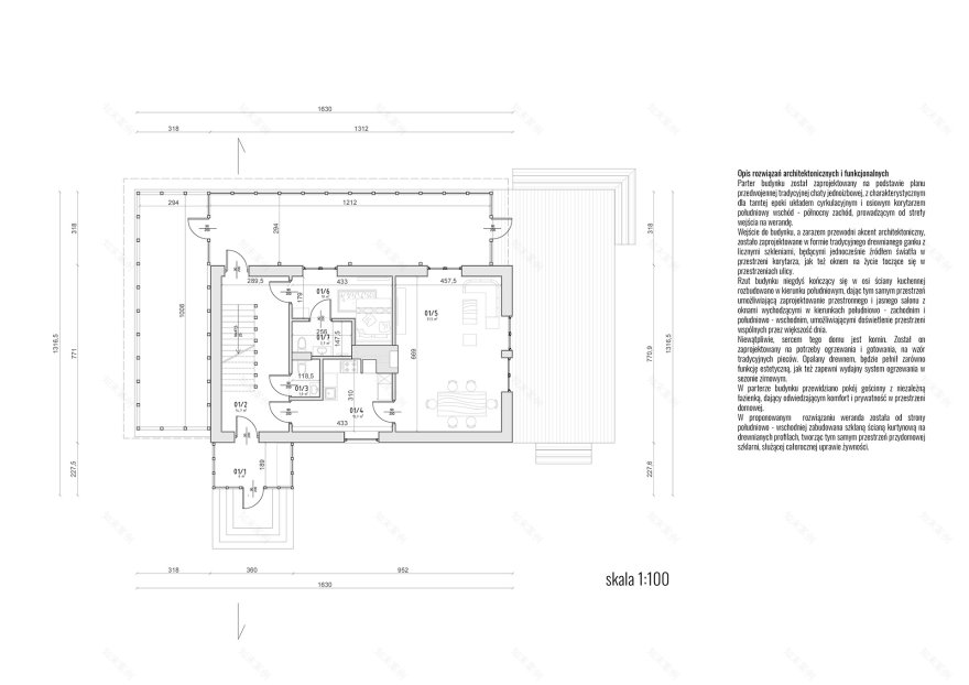
DOM Z TRADYCJĄ W RADZYNIU PODLASKIM. OPIS PROJEKTU W JĘZYKU POLSKIM.
客服
消息
收藏
下载
最近




















