查看完整案例

收藏

下载

翻译
Architects:Anonym
Area:1000m²
Year:2024
Photographs:Ketsiree Wongwan,Soopakorn Srisakul
Lead Architects:Phongphat ueasangkhomset
Category:Houses
Design Team:kamolchanok somsang
City:Bangkok
Country:Thailand
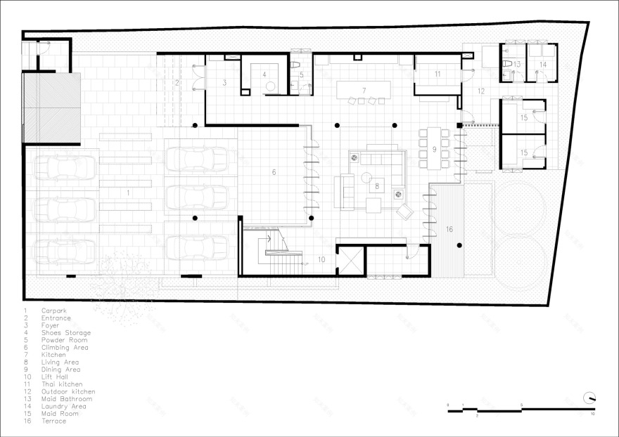
Text description provided by the architects. Sailom House is a four-story home that accommodates members from three families. Anonym designs the inside to look and feel like a service apartment with functional spaces that each family member can use freely and separately on each floor. The first floor consists of common areas such as the living room and kitchen, while the upper floors house bedrooms, more living areas, and small pantries. Every story is linked together via two internal courtyards that open up into the void, running from the ground to the fourth floor.
The first court is an outdoor space with a climbing wall, a requirement from the owner who climbs as a hobby. The remaining court hosts a walkway for each floor, designed to overlap and bring interesting space variations. The roof is elevated at the upper part of the court, creating a void to facilitate airflow, with a transparent material used to welcome natural light. While the courts exist as a part of the house's interiors, the openings that let the wind and light into the living space create a pleasant obscurity, adding the outdoor element to the indoor area.
The highlight of the house's exterior is the brick facade that offers natural ventilation with the material having been arranged in various dynamic patterns. The perforated bricks are used not only because of their ventilation properties but also for their safety, affordable price, including the freedom they offer to the design and the privacy they can bring to dwellers.
The facade is designed to cover the parts of the house exposed to an excessive amount of sunlight. The brick pattern is less perforated in the areas on the ground floor where more privacy is required. For the top part of the facade and higher floors, the patterns become more perforated and airier, corresponding to the surroundings that are more open and unobstructed. The space between the facade and the house is designed into a veranda with potted plants, adding a visually pleasant green area to the living space. The variations of perspective result in the house's diversified floor plans and functional spaces as the facade diminishes the four-story structure's rigidity.
There are other fun details about the facade. For example, the architect wanted to use the bricks without making any cuts. Therefore, calculating the ranges between each block, beams and lintel was critical. They achieved that, not merely from the finalized working drawing on paper, but also from additional adjustments and experiments made on the site, which helped to attain the desired outcome. "There is this element of craft to it as well," said Phongphat.
Desolidifying the architectural structure is one of the design's strong characteristics. It's expressed in the forms of openings, internal courtyards, or the play with textures on different materials, whether the perforated bricks or the concrete surface whose customized patterns were crafted using a prefabricated trowel. The architect mentioned that he didn't know how to create that particular texture at first until the experimentation took place on-site with the builders' help, creating a pattern that brings an interesting dimension and lessens the rigidity of the concrete walls' plain.
Like the house's architecture, the architect's approach and execution are somewhat more relaxed. Anonym is known for its immaculate details. But with the Sailom house, the architect deliberately left the beam above the brick facade exposed. The air conditioning pipes are also left uncovered in the living room. Such a shift in the design has got many people thinking that perhaps this is the work of a different architect. "I like this house because it isn't about the crisp and polished details. We did everything the way it could and should be done. I wasn't too serious or trying too hard about making everything flawless, and that's what I love most about it," added Phongphat. With the Sailom House, the wind not only brings comfort to the home but adds a new dimension to the architect's identity.
Project gallery
客服
消息
收藏
下载
最近




























