查看完整案例

收藏

下载

翻译
COSY BAR RESTAURANT
Maître d'oeuvre : ARCHI TECH
Surface totale de projet : 220 M2
Année du projet : 2023
Emplacement : NC
Nature du Projet : Rénovation totale d'un restaurant
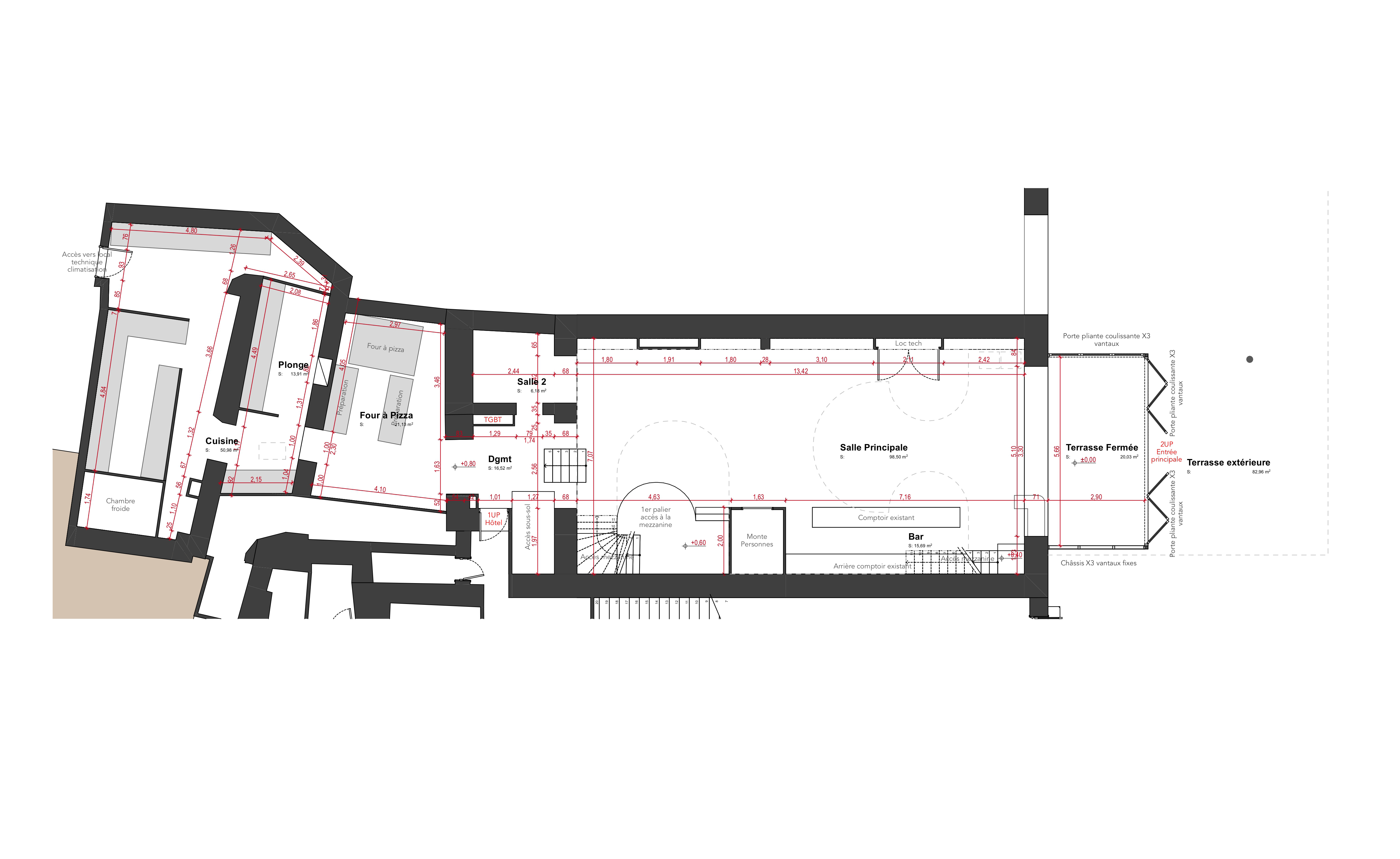
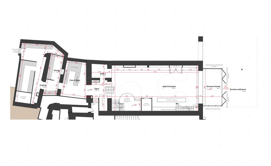
EDL PLAN RDC
EDL PLAN MEZZANNINE
EDL PLAN SOUS-SOL
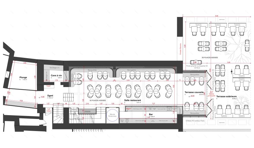
PROJET PLAN RDC
PROJET PLAN MEZZANNINE
PROJET COUPES
客服
消息
收藏
下载
最近













