查看完整案例

收藏

下载

翻译
Architects:REIMS 502
Area:1100m²
Year:2023
Lead Architects:Eduardo Reims Hernández, Andrea Maldonado Verduzco
Category:Houses
Interior Design:Habitación 116
Landscape:Maat Handasa
Contractor:Rogerio Ruiz Ramírez
Structure:S+S Obra y 4D Estructural
City:Cancún
Country:Mexico
Text description provided by the architects. Suburban tropical residence for a family from Cancún that, through multiple design strategies, incorporates anextensive architectural program and integrates with a sensitized “sense of place” within its immediate context
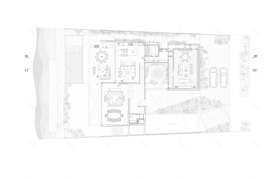
The project starts with a massive, blind geometry whose primary purpose is to house an extensive program of needsand avoid direct sun exposure during the day. Consequently, in its design process, it draws inspiration from the Puucarchitecture of ChichenItzá, where the dominant, closed, and massive construction, with a single point of access andornate cornices, merges with the tropical landscape over time, blurring and fusing the boundaries between bothenvironments.
A large central courtyard pierces this dense built mass, strategically functioning as a skylight, microclimate generator,and access point. Inside, a cistern collects rainwater for irrigation and symbolically evokes the Mayan cenotes,enriching the transitional experience from the street to the interior of the residence
On its facades, the project intentionally appears to be two stories high; however, its section conceals four levels of anextensive program distributed from the basement to the upper floor, accommodating specific functions on each level:services, public-social areas, semi-private spaces, and intimate rooms, respectively. From the interior, visualconnections were prioritized, with spacesopeningto the exterior landscape through the garden and an infinity poolthat extend towards the water canal and golf course, aiming to dissolve their boundaries.
Project gallery
客服
消息
收藏
下载
最近





































