查看完整案例

收藏

下载

翻译
Architects:Patara Architects
Area:1333m²
Year:2024
Photographs:tacophoto.bkk
Manufacturers:APK Brick,Bangkok Inter Stone,Lamptitude,Studio Mueja,Sunflex,Zimplex
Lead Architects:Patara Warathanasin
Interior Designer:Patara Architects
Contractor:Chanitat
Civil Engineer:Alps
Electrical Engineer:Acco
Category:Houses
Architects:Patara Warathanasin, Chalut Netvichit, Nicha Kachamas
Sanitation Engineer:Acco
City:Bangkok
Country:Thailand
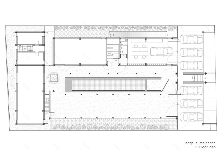
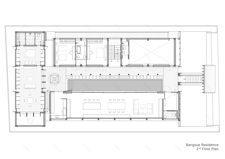
Text description provided by the architects. Bangsue Residence exemplifies an architectural vision that transcends spatial organization, embracing the challenge of creating a home for a three-generation family. The design moves beyond mere room allocation, striking a delicate balance between togetherness and individual privacy—ensuring the house truly becomes "the home for everyone."
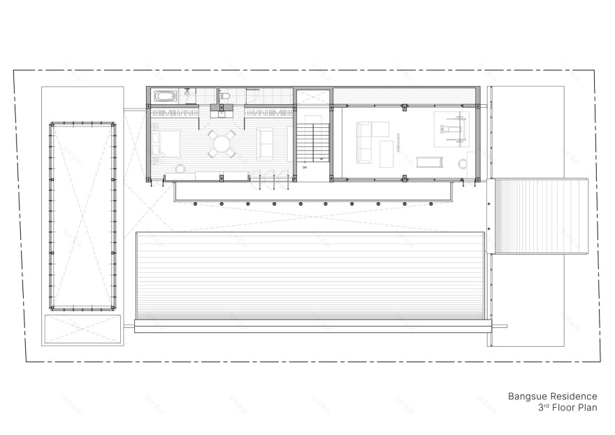
At the heart of this house lies the common area on the second floor, which seamlessly integrates the living room, dining space, and kitchen. This common area opens toward a swimming pool in the center of the house, creating a fluid connection between indoor and outdoor areas. Conceived as a space for family gatherings, the space encourages interaction during shared quality time, such as mealtimes. Meanwhile, each family member can enjoy full autonomy in their private units, which are self-sufficient, equipped with personalized functions and en-suite bathrooms, allowing for independent living.
One of the key design challenges was to minimize reliance on air conditioning and embrace natural ventilation. Inspired by the traditional Thai "Ruen Moo" (Cluster House) concept, the buildings are arranged with intentional gaps that encourage cross-ventilation. The living area opens generously to natural breeze through expansive sliding doors and windows, while large ceiling fans and air conditioning are provided in every room, offering residents a choice between natural airflow and mechanical cooling.
The architectural language reflects a modern interpretation of tropical architecture. Classic Thai elements such as the gable roof and elevated floors are reimagined with modern sensibilities. Every detail has been meticulously considered—from the alignment of columns with furniture placement to the precise roof structural grid. Even the small details, such as column patterns and tile arrangements, reveal a dedication to craftsmanship. Material selection was equally deliberate, ensuring durability, harmony, and aesthetic refinement.
Sustainability and adaptability are embedded in the house's DNA. The ground floor functions as a service zone, discreetly housing mechanical systems for easy maintenance and future upgrades. Flexible spaces anticipate evolving needs: connecting rooms that can shift functions, double-height areas that can be converted into two floors, and living spaces that can transform into workshops or studios. This foresight allows the house to grow and change alongside the family members, embodying resilience and long-term relevance.
Ultimately, Bangsue Residence is more than a residence—it is a living architecture that reflects the identity of its residents. It accommodates growth, embraces change, and nurtures meaningful integration, serving as a testament to architecture where aesthetics, sustainability, and love are seamlessly intertwined.
Project gallery
客服
消息
收藏
下载
最近





































