查看完整案例

收藏

下载
这是我们做的一个位于北京的四层别墅设计。
整座住宅以暖色调以及自然材料为基调:天然黏土、实木饰面、肌理丰富的木地板、手工砖。它们并不张扬夺目,只随着日常的使用与触摸逐渐显露质感。
空间中的家具选择刻意远离潮流,更多是被时间反复验证过的经典——羊毛、亚麻、藤编、橡木。它们不为塑造风格,而是让生活本身成立,让人得以舒适自在。
This is a four-story villa design we created in Beijing.
The entire residence is grounded in warm tones and natural materials: natural clay, solid wood finishes, textured hardwood floors, and handmade bricks. These elements are not flashy or eye-catching; instead, their texture gradually reveals itself through daily use and touch.
The furniture selection deliberately steers clear of fleeting trends, favoring instead timeless classics that have stood the test of time—wool, linen, rattan, and oak. These elements do not exist to define a style, but rather to support life itself, allowing residents to feel comfortable and at ease.
▼项目概览,overall of the project© 立明
在四层的垂直结构中,设计更关注连续的尺度关系、光线的变化以及居住节奏的自然过渡,而不是每一层各自“好看”的画面效果。
这不是一个强调视觉刺激的空间,设计也从一开始就被设定为退隐的位置。我们相信,真正重要的不是空间完成时的样貌,而是十年后它仍然愿意被使用、被停留、被安静地生活在其中。
设计最终应该服务于一种状态:自然、放松、有秩序,并且不过时。
Within the four-story vertical structure, the design focuses on the continuity of spatial relationships, the play of light, and the natural flow of daily life, rather than creating a visually striking scene on each individual floor.
This is not a space that emphasizes visual stimulation; from the outset, the design was conceived to take a backseat. We believe that what truly matters is not how the space looks upon completion, but whether, ten years from now, it will still be a place people want to use, linger in, and quietly live within.
Ultimately, design should serve a state of being: natural, relaxed, orderly, and timeless.
▼客厅-厨房-餐厅,living room and kitchen-dining© 立明
▼客厅细部,details of the living room© 立明
一层:客厅、餐厅与厨房
First Floor: Living Room, Dining Room, and Kitchen
客厅位于别墅一层,与餐厅、厨房相邻,充裕的挑高和落地窗形成明亮通透的空间围合。整个空间以暖色为主调,墙面使用天然粘土,保留肌理变化。大面积使用木饰面和木纹地板作为空间背景,加之黑色手工砖制造视觉重量感。家具大多选择经典款式,追求纯粹清晰的线条比例。融入亚麻、藤编、橡木实木等天然的材质,让设计褪去浮饰,回归质朴。整个空间追求居住使用后的长期主义。我们希望它不止好看,更能融入日常生活。
The living room is located on the first floor of the villa, adjacent to the dining room and kitchen. The generous ceiling height and floor-to-ceiling windows create a bright and airy space.
The overall space features a warm color palette, with walls finished in natural clay to preserve its natural texture. Large areas of wood paneling and wood-grain flooring serve as the backdrop, while black handmade bricks add visual weight. Most of the furniture features classic designs, emphasizing clean, simple lines and proportions. The incorporation of natural materials such as linen, rattan, and solid oak strips the design of any superfluous embellishments, returning it to a state of simplicity. The entire space is designed with long-term livability in mind. We hope it is not only aesthetically pleasing but also seamlessly integrates into daily life.
▼客厅,living room© 立明
木质餐厅是整座住宅最沉静舒适的场域之一。橡木地板纹理柔和,餐桌背后整面的收纳墙,通过连续的木条将分缝巧妙隐藏,转化为一个纯粹的木质体块。空间最核心的是一张完整的实木餐桌,厚拙而含蓄,其质感并非来自设计赋形,而是材料自身生命的表达。搭配Hans J. Wegner设计的Y Chair,结构与比例都透露出一种诚实、从容的自然感。在这里,设计隐藏于材料、比例与留白之后。生活的痕迹也将在往后漫长的使用中,缓缓填入其中,最终完成属于居住者自己的叙事。
The wooden dining room is one of the most serene and comfortable spaces in the entire residence. The oak flooring features a soft grain, while the full-height storage wall behind the dining table cleverly conceals the joints with continuous wooden slats, transforming it into a pure wooden mass. At the heart of the space stands a solid wood dining table—substantial yet understated. Its texture does not stem from design manipulation but rather from the material’s inherent vitality. Paired with Hans J. Wegner’s Y Chair, the structure and proportions exude an honest, unhurried sense of nature. Here, design is concealed behind the materials, proportions, and negative space. Over time, the traces of daily life will gradually fill this space, ultimately completing a narrative unique to its inhabitants.
▼由厨房看餐厅与客厅沙发,viewing the dining area and the sofa from the kitchen counter© 立明
▼餐厅,dining area© 立明
▼餐桌,dining table© 立明
原始一层厨房空间比较局促,因此设计师把相邻房间打通,做成了洄游动线的厨房布局。改造后不仅优化了操作动线,也整合出岛台、操作台面、小型储物间、小电器区与锅炉收纳区等功能区,提升空间利用率的同时保证了室内通透与开放。风格上柜门用拉槽的橡木纹路,墙面和地面分别是白色和黑色的手工砖,让空间更有自然质朴的肌理感。操作台面选择米色的人造石,颜色和空间统一,美观且耐用。拉槽工艺隐藏了柜门和储物间门缝,强化了视觉的整体感,更加极简克制。
The original ground-floor kitchen was rather cramped, so the designer opened up the adjacent room to create a kitchen layout with a looping circulation path. The renovation not only optimized the workflow but also integrated functional zones such as an island, countertop, small storage room, small appliance area, and boiler storage area, enhancing space utilization while maintaining the interior’s airiness and openness. Stylistically, the cabinet doors feature grooved oak grain, while the walls and floors are clad in white and black handmade bricks, respectively, lending the space a natural, rustic texture. The countertop is made of beige engineered stone, harmonizing with the overall color scheme to create a look that is both aesthetically pleasing and durable. The grooved finish conceals the gaps between cabinet doors and storage room doors, reinforcing a sense of visual unity and achieving a more minimalist, restrained aesthetic.
▼开放式厨房,open kitchen© 立明
▼围绕岛台的操作动线,operation path around the island counter© 立明
我们在1层客厅与厨房之间定制了一个岛台,兼顾功能与空间划分的需求。岛台客厅视角延续了厨房地面的黑色手工砖材质,保持了视觉的整体性,也为客厅增添了深色点缀。岛台厨房视角做了收纳柜,材质延续了空间的木条造型,满足收纳功能。台面配套的五金件与水槽都选择黑色,与整体色调一致,强化了视觉的统一。同时水槽位置便于从客厅与厨房两侧使用,提升了屋主日常便利。此外,岛台的边角空间被巧妙利用,打造成一处紧邻餐桌的咖啡角。配备放置咖啡机和隔板收纳咖啡杯等器具,形成流畅便捷的生活动线。
We custom-built an island between the living room and kitchen on the first floor to serve both functional and spatial division needs. From the living room perspective, the island continues the black handmade brick material of the kitchen floor, maintaining visual cohesion while adding a dark accent to the living room. From the kitchen perspective, the island features storage cabinets that echo the space’s wooden slat design, fulfilling storage requirements. Both the countertop hardware and the sink were selected in black to align with the overall color scheme, reinforcing visual unity. Additionally, the sink’s placement allows for convenient access from both the living room and kitchen sides, enhancing daily convenience for the homeowners. Furthermore, the corner space of the island was cleverly utilized to create a coffee nook adjacent to the dining table. Equipped with a coffee machine and shelving for storing coffee cups and other accessories, it forms a smooth and efficient living flow.
▼厨房,kitchen© 立明
▼厨房细部,details of the kitchen© 立明
▼楼梯,staircase© 立明
二层:主卧、起居室与卫生间
Second Floor: Master Bedroom, Living Room, and Bathroom
主卧和起居室做玻璃门隔断,通透之余,保留了卧室应有的私密感。通过起居室进入到主卧空间,视觉上给人感觉比较纯粹、克制。主卧大面积使用手工肌理感的天然黏土和木饰面作为空间背景,搭配藤编、布艺、石材等天然材质,共同营造出一种不追逐潮流、回归生活本质的长期主义。亚麻材质的窗帘将光线柔和的很好,光影洒落之间,空间仿佛自带呼吸感,让居住者一进入到这个空间就能自然而然的沉静下来。
The master bedroom and living room are separated by glass doors, which maintain the bedroom’s privacy while creating an open, airy atmosphere. Entering the master bedroom from the living room, the space feels visually clean and understated. The master bedroom features expansive walls finished with handcrafted, textured natural clay and wood paneling as the spatial backdrop. Paired with natural materials such as rattan, textiles, and stone, these elements collectively evoke a long-term philosophy that eschews fleeting trends and returns to the essence of life. Linen curtains softly filter the light, and as light and shadow dance across the room, the space seems to breathe, allowing residents to naturally find calm the moment they enter.
▼主卧和起居室做玻璃门隔断,the master bedroom and living room are separated by glass doors© 立明
▼卧室,bedroom© 立明
小起居室布置在了主卧门口,通过玻璃门进行分隔,保留了视觉的通透,又确保了私密性。起居室内配备沙发、书架、书桌兼化妆台、音响设备等,满足屋主阅读、休憩以及日常使用的多元需求。风格上,暖色系的天然黏土墙面结合橡木锯齿纹地板,营造出温暖自然的空间基调。同时,书架与墙面做同色处理,让整个空间更加和谐统一。家具以大地色与木色等暖色系为主,沙发、地毯、音箱支架、书桌、单人椅以及凳子都来自vvd设计的zara系列,旨在通过简约的线条与温暖的材质,诠释vvd式极简温暖的设计美学。
The small living area is situated just off the master bedroom, separated by a glass door that maintains visual openness while ensuring privacy. Furnished with a sofa, bookshelves, a desk that doubles as a vanity, and audio equipment, it meets the homeowner’s diverse needs for reading, relaxation, and daily use. Stylistically, warm-toned natural clay walls paired with oak herringbone flooring create a warm and natural spatial tone. Additionally, the bookshelves are finished in the same color as the walls, creating a more harmonious and unified space. The furniture primarily features warm tones such as earth tones and wood hues. The sofa, rug, speaker stands, desk, armchair, and stools all come from VVD Design’s Zara series, aiming to interpret VVD’s minimalist and warm design aesthetic through simple lines and warm materials.
▼小起居室,the small living area© 立明
▼小起居室细部,details of the small living room© 立明
▼小起居室,the small living room© 立明
▼细部,details© 立明
在二层主卧卫生间中,浴室柜延续了卧室区域的设计语言,选用橡木实木皮贴皮工艺,缝隙内部手工填色与木皮同色,细节把控的很好。同时,柜体和地面地板颜色保持一致,形成了视觉上的连贯界面,也满足了日常收纳的实用功能。
In the master bathroom on the second floor, the vanity cabinet continues the design language of the bedroom area. It features an oak solid wood veneer finish, with the gaps meticulously hand-stained to match the veneer—a testament to the attention to detail. Furthermore, the cabinet’s color matches the flooring, creating a visually cohesive interface while fulfilling the practical needs of daily storage.
▼二层主卧卫生间,the master bathroom on the second floor © 立明
▼浴室细部,details of the bathroom© 立明
次卧
Second Bedroom
次卧的墙面、书架、书桌、柜体统一刷了暖色调的天然粘土,给人感觉温暖自然,有很强的整体感。结合木质的地板和软装家具,让居住者在这个原本不大的空间里瞬间放松下来。空间一侧设有斜天窗,我们在窗下定制了整排的置物架,另一侧做书桌,用于休息前专注阅读和轻量工作,宁静温馨。
The walls, bookshelves, desk, and cabinets in the second bedroom are all painted in a warm, natural clay tone, creating a warm and natural atmosphere with a strong sense of cohesion. Combined with the wooden floors and soft furnishings, this instantly helps residents relax in what is otherwise a modest-sized space. A slanted skylight is situated on one side of the room; we installed a full row of custom shelving beneath it. On the opposite side, a desk provides a quiet, cozy spot for focused reading or light work before unwinding.
▼次卧,the second bedroom © 立明
▼斜天窗下的书桌,the desk under the sloping skylight© 立明
▼细部,details© 立明
三层:女儿房
Third Floor: Daughter’s Room
别墅的顶层是女儿房。顶层本身的私密性就很好,室内还保留了建筑的尖顶,宁静且很有空间感。整个空间做洄游动线布局,为了满足屋主日常生活的需求,划分为卧室、钢琴区、书桌区、衣帽间、卫生间5个区域。
The top floor of the villa is the daughter’s room. The top floor offers excellent privacy, and the interior retains the building’s original pitched roof, creating a serene and spacious atmosphere. The entire space features a looping circulation layout and is divided into five distinct areas—a bedroom, a piano area, a study area, a walk-in closet, and a bathroom—to meet the homeowner’s daily needs.
▼女儿房,daughter’s room© 立明
风格上主打简洁且温馨,墙面通刷暖色艺术漆,地面是有手工痕迹的橡木地板。软装方面增加了一些柔软的元素,比如床背板和椅子都采用羊毛圈织物包裹的材质。功能上床侧做置物架,放一些书籍、绿植、艺术摆件等,装饰灵活度很高。下面设有布艺帘子遮挡,放置大件行李等。卧室卫生间干区延续了公共区域的木条元素,镜子两侧的壁灯亦可补充镜前光线,圆球的形态灵动可爱,增添几分趣味。
The design emphasizes simplicity and warmth, with walls finished in warm-toned textured paint and floors featuring oak planks with a handcrafted texture. Soft furnishings incorporate plush elements, such as the headboard and chairs, which are upholstered in looped wool fabric. Functionally, a shelving unit is installed beside the bed to hold books, houseplants, and decorative ornaments, offering great flexibility in styling. A fabric curtain is installed below to provide privacy and accommodate large luggage. The dry area of the bedroom bathroom continues the wooden slat motif seen in the common areas. Wall lamps on either side of the mirror provide additional lighting, and their spherical shapes add a touch of whimsy and charm.
▼细部,details© 立明
地下室
Basement
地下室空间延续了整体的设计语言,保留原始裸露的房梁,墙面选择暖色天然粘土,呈现出自然质朴的空间基调。整个地下室空间没有任何跳脱的颜色和材质出现。家具选择亚麻、橡木和编制材质,温润质朴,衬的自然光线都很柔和沉静。希望这里既可以当作私人影音室、会客厅,也是一个可以思考专注的地方,营造出一个区别于楼上且氛围独特的舒适场域。
The basement space continues the overall design language, retaining the original exposed beams and featuring warm-toned natural clay walls to create a natural, rustic atmosphere. No jarring colors or materials are used throughout the basement. The furniture, crafted from linen, oak, and woven materials, exudes a warm, rustic charm that complements the soft, tranquil natural light. The intention is for this space to serve as both a private home theater and reception area, as well as a place for focused contemplation, creating a comfortable environment distinct from the upper floors with its own unique atmosphere.
▼地下室,basement floor© 立明
▼细部,details© 立明
卫生间
Bathroom
在一层客厅卫生间,则延续了客厅岛台的手工砖材质,黑白砖呈现出手工感的微妙纹理,视觉语言干净自然。
The bathroom on the first floor, adjacent to the living room, continues the theme of the handcrafted tiles used on the living room island. The black-and-white tiles feature subtle, handcrafted textures, creating a clean and natural aesthetic.
▼卫生间,the bathroom© 立明
▼地下层平面图,B1 plan© NOTHING DESIGN
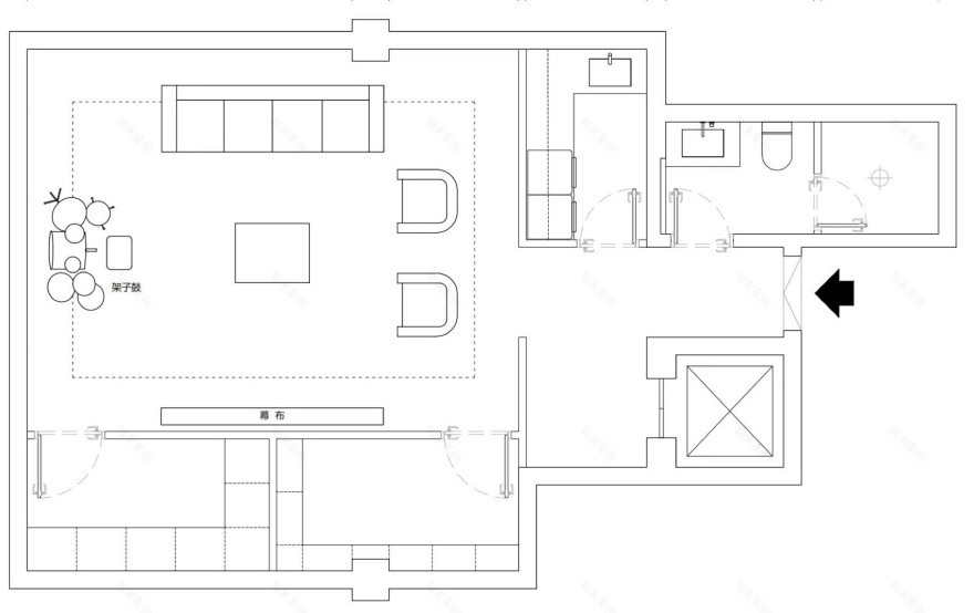
▼一层平面图,1F plan© NOTHING DESIGN
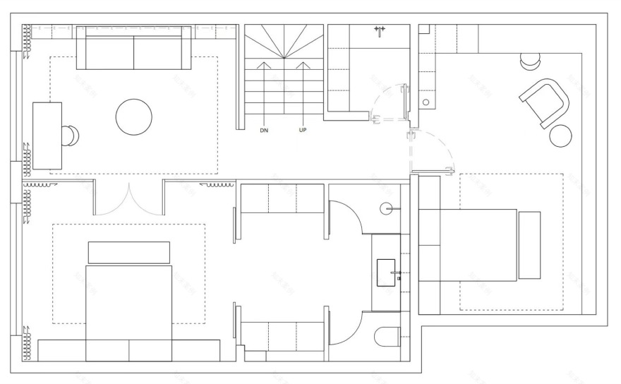
▼二层平面图,2F plan© NOTHING DESIGN
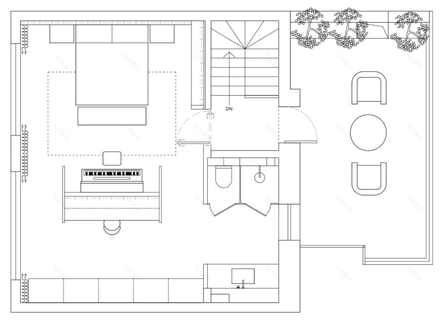
▼三层平面图,3F plan© NOTHING DESIGN
项目名称:关于自然材料与时间的住宅
项目类型:住宅
设计方:NOTHING DESIGN
完成年份:2025
设计师:刘畅
项目地址:中国
建筑面积:280㎡
摄影版权:立明
材料:天然黏土、手工砖、实木、橡木、亚麻、藤编
Project name: A Home About Natural Materials and Time
Project type: Residential
Design: NOTHING DESIGN
Completion Year:2025
Designer: Chang Liu
Project location: Jiaxing, China
Gross built area: 280㎡
Photo credit: Liming
Materials:Natural clay, handmade bricks, solid wood, oak, linen, rattan
客服
消息
收藏
下载
最近
















































































