查看完整案例

收藏

下载

翻译
Architects:4RQ arquitectura,MBM Arquitectes
Area:2632m²
Year:2025
Photographs:Adrià Goula
Category:Social Housing
Architects And Lead Architects:Marta Camañes, Oriol Capdevila, Gerard Torrent
Technical Team:Beth Bacardit, Santi Velasco
City:Igualada
Country:Spain
Text description provided by the architects. 24 social housing units in Igualada: a piece of public housing that expands collective space, promotes sustainability, and strengthens community life.
The project is located on a site in Igualada marked by unfavorable urban conditions and intended to complete a pre-existing set of social housing. Rather than viewing these limitations as obstacles, the proposal transforms them into an opportunity to rethink the relationship between housing, public space, and sustainability. The municipal brief required not only addressing a residential program but also responding to new social, environmental, and mobility demands in the Les Comes neighborhood, which is separated from the center by an industrial area.
The proposal envisions the building as a transitional piece between the urban fabric and the adjacent park. Its central element is an open and ventilated courtyard that acts as an articulating void, allowing public space to penetrate the interior and visually project towards the roof. In this way, the architecture establishes a direct and porous relationship between the city, the building, and the landscape.
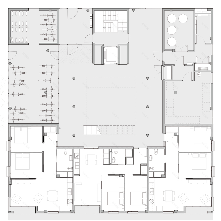
One of the main gestures of the project is the opening of the ground floor to create a large community space connected to the park. This area accommodates the main entrance, technical facilities, greywater and waste management, bicycle parking, and various social and circulation zones. To make this possible, the program is reorganized: the typical floors concentrate seven housing units, while the ground floor houses only three, thus prioritizing the collective dimension of the building.
The housing units, with adjusted dimensions, are resolved through a spatial strategy of "broken corner," which breaks the rigidity of compact typologies, expands sightlines, and improves interior continuity. The result is more flexible, bright, and livable spaces.
The materiality reinforces the building's dual identity. Galvanized steel, pavement, and ceramics dialogue with the urban and industrial character of Igualada, while the recycled chipboard and the presence of wood in the common areas provide domestic warmth. This logic extends to the construction system, based on prefabricated elements, dry assembly, and industrialized solutions that reduce time, waste, and environmental impact.
Sustainability permeates the entire project: high thermal efficiency envelopes, cross natural ventilation, low-emission glass, hygro-regulable systems, and a photovoltaic pergola capable of covering 100% of community consumption. Additionally, greywater reuse, permeable pavements, and circular economy criteria based on recycled materials, dismountable systems, and waste valorization are implemented.
The building demonstrates that public housing can go beyond its residential function and become a tool for urban regeneration, sustainable mobility, and community building.
Project gallery
客服
消息
收藏
下载
最近




























