查看完整案例

收藏

下载

翻译
Architects:Haworth Tompkins
Area:980m²
Year:2025
Photographs:Philip Vile,Mark Carline,Theatr Weston,Fred Howarth
Manufacturers:Jakob,RHEINZINK,Troldtekt,Centre-stage,Clark Door,Constructional Timber,Hakwood,Ideal Combi,LSI Projects,Race Furniture,Rob Featherstone McIntyre,Schüco
Structural Engineering:Betts Associates
Services Engineer:Skelly & Couch
Project Manager:Plann
Landscape Design:Studio Bristow
BREEAM Assessor:WYG/Tetra Tech
Category:Theater
Design Team:Lucy Picardo, Will Mesher, Alessandra Vella, Fred Howarth, Simon Ricketts, Jessica Daly, Rachel Housley, Pierre Shaw, Will Priest, Isabel Mathers, Adrian Lau, Steve Tompkins
Main Contractor:Gilbert Ash
Client:Theatr Clwyd & Flintshire County Council
Access Consultants:HADA
Fire Consultant:OFR
Service Design Consultancy:Studio Three Sixty
Wayfinding Consultant:Studio Mothership
Catering Consultant:Keith Winton Design
Country:United Kingdom
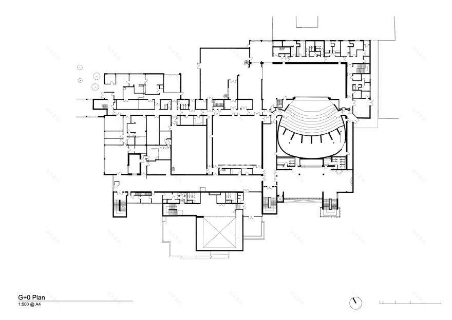
Text description provided by the architects. Haworth Tompkins has recently completed the transformation of Wales' largest producing theater, Theatr Clwyd, a Grade II-listed theater and cultural centre in Mold, North Wales. The major redevelopment transforms the landmark 1970s arts complex into a vibrant, sustainable, and accessible civic destination, equipped to support professional productions, participatory work, education, and serve its local community for generations to come. Theatr Clwyd sits on a hillside above the town of Mold and was built as a regional arts centre to provide cultural opportunities for people living in North Wales. It was originally designed to accommodate multiple performance spaces, TV studios, a gallery, and function rooms. Designed by R.W.Harvey, the county architect for Flintshire, the building was opened as 'Clwyd Theater and Educational Technology Centre' on the 21st May 1976, by Queen Elizabeth II.
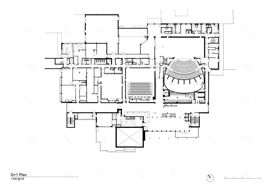
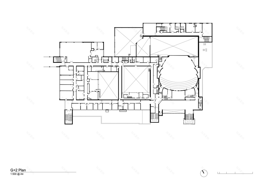
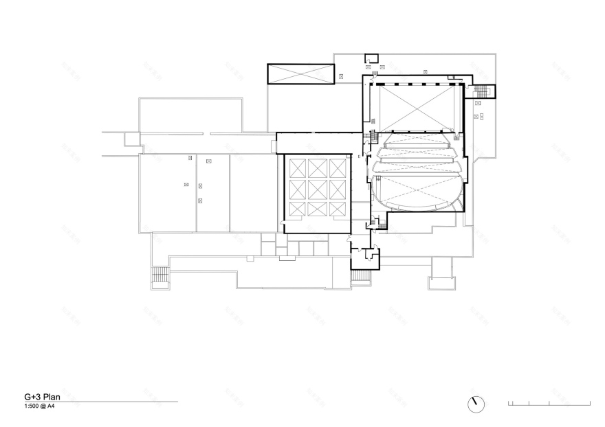
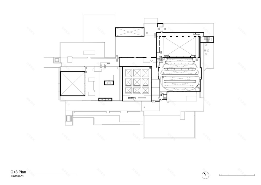
Haworth Tompkins was appointed in 2017 to lead a comprehensive redevelopment of the 10,000 sqm sprawling complex, addressing the building's end of life mechanical and electrical services, fragmented, inaccessible public spaces, and deteriorating staff working conditions while safeguarding the building's historic character. In upgrading and expanding the original 70s building to make it more welcoming and technically capable, our approach was to open the building up to its extraordinary rural landscape setting and enable a more technically sophisticated and adaptable environment for contemporary theatre. At the heart of the transformation is a new, south-west facing, three-storey glazed foyer extension, which creates a visible and welcoming entrance. Arranged over three levels with a central atrium, the daylight-filled foyer brings together a reception, café, restaurant, and generous public circulation routes which offer expansive views across the Clwydian countryside. The foyer acts as a covered public square: a place to meet, work, eat, and spend time beyond attending a performance.
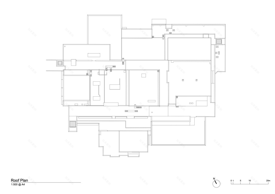
Internally, the redevelopment reorganises the convoluted and restrictive 70s circulation into intuitive and generous routes centred around an internal "street" connecting the theatre's performance spaces, visual art gallery, and public facilities. Alongside three performance spaces, an events room and a cinema, the building now includes rehearsal rooms, studios, making workshops, artist spaces, a restaurant and bar, significantly improved backstage areas, and dedicated community spaces. A new scenic workshop extension allows, for the first time in the building's history, all the production teams to work together on site, while a public viewing walkway provides audiences with a glimpse of the extraordinary sets and props that are made on site. Accessibility has been a central priority throughout the project. The redevelopment introduces new lifts, step-free routes across all levels, additional wheelchair positions within auditoria, and a Changing Places facility. Dedicated community spaces, play areas, and sensory gardens further extend the theatre's role as a welcoming civic resource for audiences of all ages and abilities.
Rather than demolish and rebuild, the design adopts a deep retrofit strategy, retaining the majority of the existing concrete structure and brick envelope, with minimal extensions, minimizing embodied carbon. A holistic approach supported the building's operational decarbonisation by reducing energy demand through fabric improvements, passive design, optimized building services, replacement of gas boilers, integration of air source heat pumps, on-site PVs, and a renewable energy tariff. Public consultation played a vital role in shaping the redevelopment, with over 22,000 survey responses helping guide priorities for accessibility, community use, and sustainability. The project was delivered through a phased construction programme, allowing the theater to maintain artistic activity throughout the works. The redevelopment arrives as Theatr Clwyd celebrates its 50th anniversary, marking a new chapter in the theater's history as a cultural centrepiece for performance, learning, and community life in North Wales.
"Theatr Clwyd has an extraordinary history as Wales' largest producing theater. Our ambition was to retain the spirit and character of the original 1970s Grade II listed building, while opening the building up to its spectacular rural landscape setting and to the community it serves. Working closely with the theater team, we have reimagined the building as a welcoming civic destination - a place where making, learning and communal gathering sit alongside performance. The project has prioritised deep retrofit and careful reuse of the existing structure with minimal extensions, reducing embodied and operational carbon while introducing new spaces that are light-filled, accessible, and convivial. It has been a privilege to collaborate so closely with Theatr Clwyd on a project that balances conservation, joy, inclusivity, and sustainability. The result is a renewed theater that celebrates its past while creating a technically capable and inspiring setting for theater-making long into the future." Lucy Picardo, Director at Haworth Tompkins.
"Theatr Clwyd has always been much more than a theater – it is a creative home for artists and a vital cultural hub for communities across North Wales. This transformation has been an extraordinary collaboration with Haworth Tompkins, whose deep understanding of theater making and generosity of approach have shaped every aspect of the project. Together we have renewed the theater to be more welcoming, accessible, and inspiring than ever before – a place where artists can create ambitious work, where communities can gather and feel a sense of belonging, and where audiences can experience world-class theater in the heart of North Wales." Liam Evans-Ford, Executive Director & CEO – Theatr Clwyd
Project gallery
客服
消息
收藏
下载
最近














































