查看完整案例

收藏

下载
在第三次咖啡浪潮的语境下,京都品牌 Kurasu 开启了从深圳湾万象城二期到北京三里屯的城市双城记。项目由了建筑主持设计咖啡厅设计,设计团队思考品牌入驻国内时其自身所带有的“双重性”,将咖啡手冲文化与社群联结转化为可被体验的城市空间。深圳kurasu店以“双檐”回应东亚传统坡屋顶建筑,北京店则以“双盏”将滤杯形制转化为空间语言,了建筑在平衡品牌辨识度的同时尊重在地语境,让咖啡文化与与中国的在地生活的自然融合。
Amid the momentum of the Third-wave coffee movement, Kyoto-born specialty coffee brand Kurasu has established its presence in China with two locations—first debuting at MixC Shenzhen Bay, followed by a pop-up at Beijing’s Taikoo Li Sanlitun. Designed by Atelier L, the two coffee shops translate Kurasu’s coffee brewing rituals and community ethos into distinct spatial experiences tailored to these two new urban settings. Inspired by the traditional East Asian pitched-roof architecture, the Shenzhen store adopts a “dual eaves” design strategy, while the Beijing pop-up employs a “dual vessels” concept—abstracting the geometry of the pour-over dripper into two architectural volumes. Both coffee shops balance brand identity with a sensibility to local context, bringing Kurasu’s coffee culture into the everyday rhythms of contemporary Chinese cities.
▼深圳湾万象城店外观,Exterior view of the Shenzhen store © 樊钊明
▼北京三里屯太古里慢闪店鸟瞰,Aerial view of the Beijing pop-up store © 金伟琦
深圳湾万象城店:双檐之下的城市会客厅
Kurasu, MixC Shenzhen Bay
A Community Living Room Beneath the “Dual Eaves”
Kurasu中国首店落地于深圳湾万象城二期。依托深圳湾商圈城市绿谷的规划概念与高端社区的客群基础,设计的核心愿景便是打造一处社区咖啡文化会客厅,策略上提出“内外双檐”概念,形成对町屋与渔村坡屋顶建筑的跨地域提炼与并置。
▼深圳湾万象城店设计模型:内外双檐,Design model of the Shenzhen store: inner and outer eaves © 了建筑
Kurasu’s first store in China is located at Shenzhen Bay MixC Phase II, a vibrant commercial and lifestyle hub that fosters everyday coffee culture in the neighborhood. The design vision is to create a community living room—an everyday space for visitors to stop by, gather, and connect. The design introduces an “inner and outer eaves” concept, inspired by the pitched roofs in both Japanese machiya townhouses and Shenzhen’s vernacular fishing settlements.
▼深圳湾万象城店街景,Street view of the Shenzhen store © 金伟琦
▼深圳湾万象城店外观,Exteriorview of the Shenzhen store© 金伟琦
▼深圳湾万象城店立面,Facade of the Shenzhen store ©金伟琦
▼深圳湾万象城店立面近景,Facade close view of the Shenzhen store© 樊钊明
“外檐”为哑光金属波纹板斜屋顶,接续商圈幕墙外立面语言的同时,兼具遮阳功能。它对外作为环境光影的幕布,对内则压低视觉感知,加强对“慢空间”氛围的渲染。“内檐”为微微打开的轻透界面,暗示咖啡吧台如随时可进行手冲表演的舞台。二者共同形成屋中屋的空间层级。
The “outer eaves,” shaped as a sloped matte corrugated metal canopy, continues the surrounding facade language while providing gentle shade. Outwardly, it becomes a canvas for the play of light and shadow; inwardly, it compresses the perceived scale, cultivating a slower, more intimate spatial atmosphere. The “inner eaves” are lighter and subtly lifted above the bar, suggesting the coffee counter as a stage for pour-over rituals. These “dual eaves” establish a spatial hierarchy, reminiscent of “a house within a house.”
▼深圳湾万象城店外观近景,Close-up exterior view of the Shenzhen store© 樊钊明
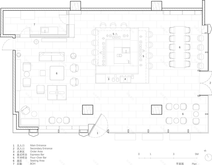
平面布局遵循动静分区的原则,通过次入口实现静态休憩区与动态体验区的流线划分,融合咖啡、烘焙、零售展示的复合功能,让空间成为可承载多元生活场景的社区会客厅。设计既考虑商业效率,也保留了慢停留的可能性。5.8米的板底高度,为设计提供了充足的表达维度。首层的主入口、意式吧台、手冲吧台构成动态体验区,构建出点单、冲煮、取餐的客流动线。在与业主充分沟通后,设计团队打破惯常咖啡空间的一字型吧台布局,以回字形吧台作为体验中心,手冲仪式、器具与香气在吧台弥散,形成交互性的视觉体验。
The interior layout follows a clear zoning strategy, with a secondary entrance separating active and quiet zones. Coffee, baking, and retail are interwoven into a cohesive setting, fostering a community hub that balances operational efficiency with unhurried stays. The generous 5.8 - meter ceiling height opens up broader spatial possibilities. On the ground floor, the entrance, espresso bar, and pour - over bar define a dynamic zone, guiding a fluid sequence of ordering, brewing, and pickup. Rather than a typical linear counter, the design introduces a looped bar at the center, turning coffee preparation into an open, shared experience—where the tools, rituals, and aromas of hand brewing unfold into an immersive, interactive scene.
▼深圳湾万象城店室内概览,Interior overview of the Shenzhen store © 金伟琦
▼深圳湾万象城店中央吧台,Central bar of the Shenzhen store © 金伟琦
室内外冷暖对话的材料体系,源自于在阴翳下慢啜的意象。外檐采取哑光金属波纹板,内部则使用木饰面、手工砖、莱姆石与杜邦纸,让室内界面拥有丰富的触觉与视觉层次。家具色系选用焦糖色、木色与黑色皮革,延续土壤与咖啡豆场景想象。编织、大漆、插花等日式器皿的点缀,让贴身的尺度下可近观可轻触,让场域如家中客厅一般温润松弛。
Inspired by the imagery of savoring coffee amid dappled shade, the material palette creates a subtle interplay between cool and warm tones. The exterior is clad in matte corrugated metal, while the interior features timber, handmade brick, limestone, and Tyvek—imbuing the space with tactile and visual depth. Caramel, wood, and black leather define the furniture palette, evoking the earthy hues of soil and coffee beans. Woven pieces, lacquerware, and ikebana vessels introduce a Japanese sensibility at an intimate scale, creating a warm, relaxed atmosphere akin to a living room.
▼深圳湾万象城店座位区,Seating area of the Shenzhen store© 金伟琦
▼深圳湾万象城店室内一角,A corner of the Shenzhen store interior© 金伟琦
外檐压低的高度与角度,与场地旁的乌桕树、紫花风铃木一同协调身体感知与外延的空间尺度,打造出室内外渗透的感官体验。可短暂驻足的室外座区,与周边的“溪水”、行道树等界面相互交织,意在构建起人们在屋檐下闲坐品咖、静赏街巷林樾的社区氛围。
The lowered, gently sloping external eaves echo the surrounding trees, softening the boundary between interior and exterior. Outdoor seating extends into a landscape of water features and street trees, inviting guests to pause unhurriedly beneath the outer eaves, where coffee and everyday community life intertwine seamlessly.
▼傍晚深圳湾万象城店街景,Street view of the Shenzhen store at dusk© 金伟琦
▼夜晚深圳湾万象城店街景,Street view of the Shenzhen store at night© 金伟琦
▼深圳湾万象城店夜景外观,Exterior night view of the Shenzhen store© 金伟琦
▼深圳湾万象城店立面夜景,Facade night view of the Shenzhen store© 金伟琦
北京三里屯太古里慢闪店:多元体验的空间滤杯
Kurasu Pop-Up, Taikoo Li Sanlitun “Dual Vessels” for Multisensory Experiences
北京三里屯太古里慢闪店为一处长8米、宽3.5米、限高3.5米的极小尺度慢闪空间。延续“双”(dual)的理念,以Kurasu经典手冲滤杯为母题,结合轻薄的纸折艺术形态,以一大一小“双盏”开启新一轮的空间叙事。“大杯”以覆扣的姿态实现内向围合,构建出咖啡冲煮与体验的核心空间;“小杯”以斜挑的形态形成外向开敞的展示界面,成为品牌与城市互动的窗口。
▼北京三里屯太古里慢闪店概念模型,Concept model of the Beijing pop-up store © 了建筑
The Kurasu Pop-up at Taikoo Li Sanlitun, Beijing occupies a compact footprint—8 meters long, 3.5 meters wide, with a height limit of 3.5 meters. Within its modest scale, the design draws on Kurasu’s signature pour-over dripper as a reference, reimagining it as two architectural volumes—one large, one small—articulated with the lightness of origami. The larger volume, like an inverted coffee dripper, creates an inward-facing space for brewing. The smaller volume tilts outward in a cantilevered gesture, opening onto the street as an interface that fosters a dialogue between the brand and the city.
▼北京三里屯太古里慢闪店外观,Exterior view of the Beijing pop-up store © 金伟琦
场地尺度的限制要求实现空间利用的最大化。大杯的平面布局紧凑高效,中间的线性吧台清晰划分操作区与顾客区。再以覆扣大杯为形,借围合界面,消解了街头喧嚣。更见细节与巧思的是,墙面在操作区一侧微妙地倾斜较缓,以最大化咖啡师的活动空间;而在顾客区,弧墙倾斜角度加大,强化空间的身体感知。让方寸之间拥有如居酒屋般的沉浸式体验。而悬挑的小杯则成为空间的视觉焦点,既实现了品牌的户外展示,又为行人提供了停留小憩的场所,让慢闪空间成为三里屯街头的城市微展厅。上沿可开启的玻璃屋面,既应对了极端天气下可能出现的风荷载过大的不利因素,同时兼顾季节更替带来的内部体验。人们品尝手中咖啡之余,不忘抬头望向城市的天空与枝叶的四季变化。
Given the limited footprint, the design prioritizes spatial efficiency. The larger volume features a compact, efficient layout, with a central linear bar that clearly delineates the service and customer areas. Its “inverted vessel” form creates a sense of enclosure, buffering the interior from the noise of the street. The wall gently tilts within the service area, freeing up movement behind the bar, while on the customer side, the curvature deepens—enhancing the spatial perception. The result is an intimate, immersive environment, evoking the atmosphere of an izakaya. The smaller volume cantilevers outward as a visual highlight, doubling as an outdoor display and a place for passersby to pause—transforming the pop-up into a micro urban gallery in Sanlitun. The operable glass roof addresses potential wind loads during extreme weather while attuning the interior to seasonal changes. As guests enjoy their coffee, their gaze is drawn upward to the shifting sky and the rhythms of surrounding trees.
▼北京三里屯太古里慢闪店外观近景,Exterior close view of the Beijing pop-up store© 金伟琦
▼小杯则成为视觉焦点,The smaller volume as a visual highlight © 金伟琦
了建筑设计团队尊重Kurasu的品牌调性,让结构与材质成为文化对话的载体。以质感对比与光影营造为手段,延续深圳首店的外冷内暖的熟悉感。同时采用磨砂不锈钢板、木纹铝板与米色质感漆,呼应品牌器物与京都的礼制感,兼顾慢闪空间的耐候性与施工便捷性。
Rooted in Kurasu’s brand identity, the design uses structure and materials to articulate a cultural narrative. A nuanced interplay of texture and light extends the familiar contrast of the Shenzhen store—cool outside, warm within. Brushed stainless steel, wood-grain aluminum, and beige textured finishes echo both the brand’s crafted wares and Kyoto’s ritual sensibility, while ensuring durability and construction efficiency.
▼北京三里屯太古里慢闪店外观细部,Beijing pop-up store exterior detail© 金伟琦
▼北京三里屯太古里慢闪店室内,Interior view of the Beijing pop-up store © 金伟琦
▼北京三里屯太古里慢闪店吧台,Coffee bar of the Beijing pop-up store © 金伟琦
钢结构底座将两个杯体钢结构锚固于地面,悄然承担配重之责,同时又在角落处微微翘起,以回应纸折艺术的轻盈。深色的小砾石结合天然石板与石块,既满足通行与闲坐,也整体围合出庭院景观。北京店通过形态边缘的转折与弯卷,让室内光线形成柔和的漫反射,冬日雪景下,磨砂不锈钢外立面作为街景灯光的流动载体。从玻璃内透出的光如一抹暖意,让有限的室内空间拥有独特的季节温度。
A steel base anchors the two volumes to the ground, quietly bearing structural loads, while its corners are slightly lifted as a nod to the lightness of origami. A mix of dark gravel, natural stone slabs, and scattered rocks forms a courtyard-like setting, accommodating both movement and moments of rest. The subtle folds and curves along the edges soften the interior light into an ambient glow. In winter, the frosted stainless steel facade reflects the shifting street lighting, while the interior light infuses the compact space with a quiet seasonal warmth.
▼北京三里屯太古里慢闪店夜晚街景,Street view of theBeijing pop-up store at night © 金伟琦
▼北京三里屯太古里慢闪店外观夜景,Exterior night view of the Beijing pop-up store© 金伟琦,小白
▼北京三里屯太古里慢闪店侧立面夜景,Side facade night view of the Beijing pop-up store© 金伟琦
了建筑的设计实践并非简单的品牌复制,而是一场关于“如何在高度商业化环境中留存慢生活”的持续探讨。咖啡厅设计以建筑语汇重塑空间的形态与体验,消解商业与生活的边界,让京都手冲文化在当代都市中生长出在地化的场所。
Instead of adopting a uniform design language, Atelier L seeks to cultivate an ongoing cross-cultural dialogue, exploring how a slower pace of life can flourish in urban commercial settings. The design reframes the coffee space as part of everyday life, where Kurasu’s pour-over culture takes root in new local contexts—echoing the brand’s vision and the meaning of Kurasu, “to live,” a tribute to everyday living.
▼深圳湾万象城店平面图,Plan of the Shenzhen store © 了建筑
▼北京三里屯太古里慢闪店平面图,Plan of the Beijing pop-up store © 了建筑
▼深圳湾万象城店立面图,Elevation of the Shenzhen store © 了建筑
▼北京三里屯太古里慢闪店立面图,Elevation of the Beijing pop-up store © 了建筑
▼深圳湾万象城店剖面图,Section of the Shenzhen store © 了建筑
▼北京三里屯太古里慢闪店剖面,Sections of the Beijing pop-up store © 了建筑
项目信息
项目名称:Kurasu深圳湾万象城店
项目业主:Kurasu
项目类型:咖啡厅
启动时间:2025年6月
完成时间:2025年10月
建筑面积:184㎡
项目地址:深圳市南山区深圳湾万象城2期C区
设计范围:建筑设计、室内设计
设计单位:了建筑
设计主创:李大可、雷楠
设计团队:庄龙威、罗文枫、伍兆弘、张抒平(模型制作)、李长欣(图纸表现)
设计驻场:伍兆弘
室内装修施工单位:广州璟之晟装饰工程有限公司
外立面施工单位:北京亿达和信装饰工程有限公司
幕墙顾问:郑友钊(广州凝龙工程技术咨询有限公司)
灯光设计顾问及制作单位:广东伽玛照明科技有限公司
软装顾问:舍下草堂
项目摄影:金伟琦、樊钊明
项目名称:Kurasu北京三里屯太古里慢闪店
项目业主:Kurasu
项目类型:咖啡厅
启动时间:2025年9月
完成时间:2025年12月
建筑面积:28㎡
项目地址:北京市朝阳区三里屯路11路院N2楼东侧太古里北区
设计范围:建筑设计、室内设计、景观设计
设计单位:了建筑
设计主创:李大可、雷楠
设计团队:庄龙威、罗文枫、伍兆弘、李长欣(图纸表现)
设计驻场:张益修(蔚象建筑)
施工单位:北京亿达和信装饰工程有限公司
项目摄影:金伟琦、小白
Project information
Project name: Kurasu, MixC Shenzhen Bay
Client: Kurasu
Project type: café
Start date: June 2025
Completion date: October 2025
Area: 184㎡
Location: Zone C, MixC Shenzhen Bay Phase II, Nanshan District, Shenzhen
Design scope: architecture, interior
Design studio: Atelier L
Lead designers: Dake Li, Nan Lei
Design team: Longwei Zhuang, Wenfeng Luo, Zhaohong Wu, Shuping Zhang (model making), Changxin Li (drawing representation)
On-site design support: Zhaohong Wu
Interior construction: King Sun Design
Facade construction: Beijing Million Partner Construction Company Limited
Curtain wall consulting: Youzhao Zheng (RINRO)
Lighting consulting & fabrication: GAMMA
FF&E consulting: SHEXIA SPACE DESIGN
Photography: Jin Weiqi , Zhaoming Fan
Project name: Kurasu Pop-Up, Taikoo Li Sanlitun
Client: Kurasu
Project type: café
Start date: September 2025
Completion date: December 2025
Area: 28㎡
Location: East side of N2 Building, Taikoo Li Sanlitun North, No. 11 Sanlitun Road, Chaoyang District, Beijing
Design scope: architecture, interior, landscape
Design studio: Atelier L
Lead designers: Dake Li, Nan Lei
Design team: Longwei Zhuang, Wenfeng Luo, Zhaohong Wu, Changxin Li (drawing representation)
On-site design support: Yixiu Zhang (Will Architects)
Construction: Beijing Million Partner Construction Company Limited
Photography: Jin Weiqi , Xiao Bai
客服
消息
收藏
下载
最近















































