查看完整案例

收藏

下载

翻译
Architects:Lahznimmo Architects
Area:2863m²
Year:2025
Photographs:Brett Boardman
Manufacturers:Autex Acoustic,Equitone,Sculptform
Lead Architects:Andrew Nimmo, Annabel Lahz, Hugo Cottier
Category:Library
Design Team:Stephanie Gotis-Graham, Charlotte Bryant, Benjamin Gore
Landscape Architecture:Spackman Mossop Michaels
General Contractor:North Construction
Engineering & Consulting > Acoustic:Acoustic Logic
Engineering & Consulting > Civil:Northrop Consulting Engineers
Engineering & Consulting > Structural:Northrop Consulting Engineers
Engineering & Consulting > Electrical:Northrop Consulting Engineers
Urban Planning:Milestone
Engineering & Consulting > Mechanical:Northrop Consulting Engineers
Engineering & Consulting > Quantity Surveying:MBM
Engineering & Consulting > Other:Steve Watson and Partners, MCD Fire Engineering
City:Gosford
Country:Australia
Text description provided by the architects. The Gosford Regional Library has been designed to generate a civic presence within the Civic Heart of Gosford, directly addressing the public space of Kibble Park. Kibble Park itself serves the symbolic role of 'Town Square', and the new Library will, in turn, symbolically act as a 'Town Hall'.
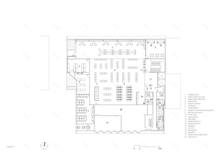
As a public building, Lahznimmo Architects believed it was important to create a link between the new Library and Kibble Park by drawing the public domain of the park into the building and creating a semi-outdoor landscaped forecourt within the site. This space is named the 'Neighbourhood Room', a covered space that connects three levels of the building and provides a weather-protected and gently tempered environment, containing tall mature Cabbage Tree palms, a plant synonymous with the natural environment of the Central Coast. The various functions of the library are arranged around the Neighbourhood Room, with views directly into and across it.
Our early analysis determined that the iconic views toward Presidents Hill and Rumbalara Reserve were the prime assets of the site, and that these should be preserved and celebrated for the benefit of the public. Therefore, the decision was made to locate the main library collection and public reading rooms on the top of the building, where the views are at their best, with a 'Public Living Room' running the full width of the north façade unobstructed.
The children's library is located on the ground level at the street front with extensive glazing, which helps to animate the street and promotes the early learning activities within. Adjacent to the main entry, visitors are greeted with the sound of children's laughter on arrival. It also provides convenient access for the many parents with children and prams who are attending the book reading activities. The library also includes: a 300-seat multi-purpose auditorium, flexible meeting spaces of varying sizes, wet and dry maker spaces, a recording studio, an innovation hub, an exhibition, and a local history collection.
Lahznimmo Architects have worked closely with Central Coast Council stakeholders to develop the design of the new Gosford Regional Library through a process of design workshops and briefing sessions that have addressed the requirements of the community. The design presents an innovative approach to extending the public domain with the civic scaled Neighbourhood Room and a considered resolution of building form and function that responds to the context and attributes of the site.
Project gallery
客服
消息
收藏
下载
最近


















