查看完整案例

收藏

下载

翻译
Project 2: Student Apartment
Problem:
Create and design a good living space apartment which felt comfortable and safe to live in with multiple issues and requirements to follow. Such as having a place to study, to sleep, to eat, to sleep, and any other living possibilities a college student may want.
Above is my Parti board and also my mood board to what I was looking to create for my apartment if I were able to create my own apartment and style it in a more comfortable way. I love the look of warm lighting instead of modern white lights which hurts my eyes, ambient lighting with different sources of where it comes from helps my mood a lot so I thought warm lighting + plants brings a good feel to the apartmnet,
These were my original sketches of what I wanted my apartment to be laid out and how it would look inside a huge building full of other apartments. There was originally going to be 3 bedrooms but it would be too large in square feet so I had to subtract it down to 2.
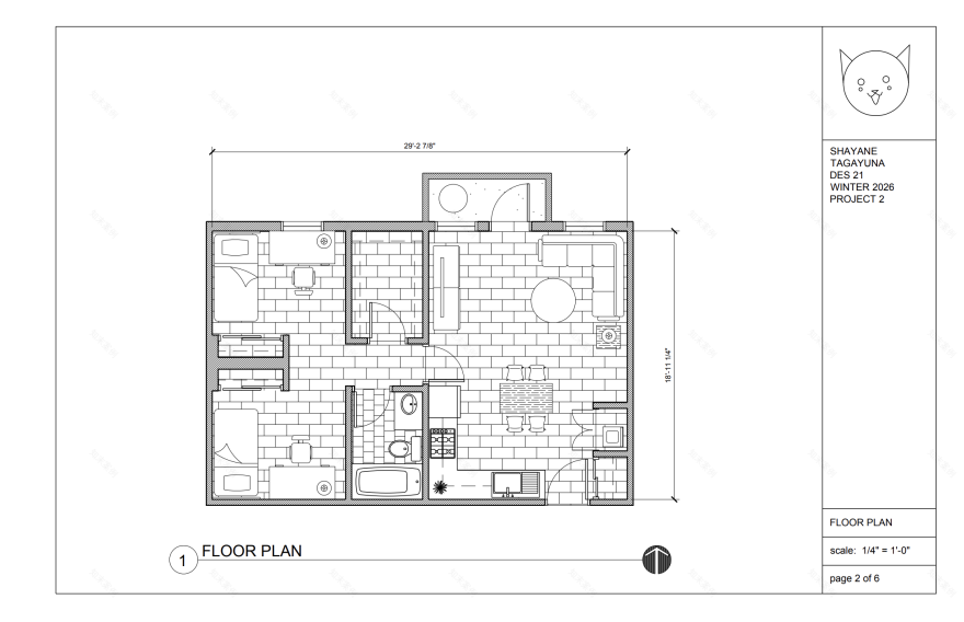
For my floor plan, I wanted to have wood as my floor material and bigger tiles for my bathroom floor. There were many adjustments when working on this in AutoCad because of sizes and errors were made but it was all worth it in the end.
With my drawing I made in Procreate using their perspective drawing assist tools, I was able to draft out the sketch of the view very easily and had no problems. With this rendering, you can really see the vision I had for this apartment and get a good feel of how it would be if you were the one standing inside that room instead.
客服
消息
收藏
下载
最近













