查看完整案例

收藏

下载

翻译
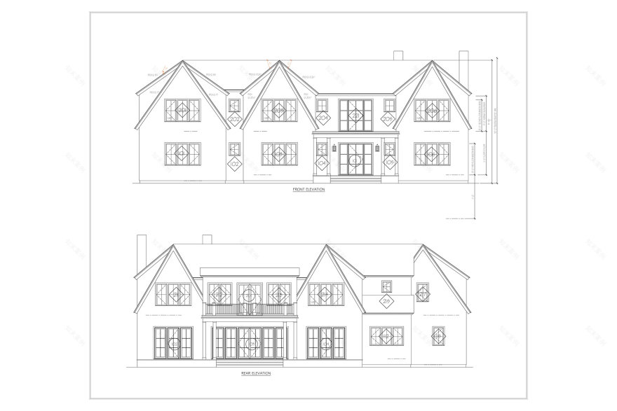
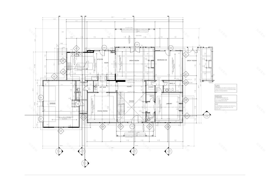
Residential Architecture Project – Custom Home in the Hamptons, NY
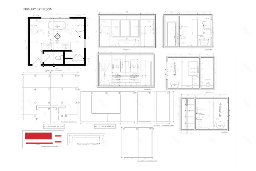
This project involved the interior design of a custom residential home in the Hamptons, NY. My scope included space planning and interior layout development for a high-end residential project. I produced construction-ready interior drawings, including floor plans, elevations, sections, and detailed drawings to support contractors during construction, as well as photorealistic 3D renderings to visualize the final design.
Project documentation including FLOOR PLANS, ELEVATIONS, and DETAILED DRAWINGS for bathrooms, kitchen, built-in cabinetry, and fireplace.
客服
消息
收藏
下载
最近
















