查看完整案例

收藏

下载

翻译
Nombre de proyecto: NV12.
Autor: ONYON arquitectura + interiorismo.
Ion Zubiaurre Ros y Hugo Prades Claessens.
Colaboradores: Jone Arruabarrena.
Cliente: Privado.
Tipo de trabajo: Rehabilitación integral de vivienda en un edificio con estructura de madera.
Labor realizada: Diseño de proyecto, interiorismo y gestión integral de la obra.
Ubicación: Bilbao, Vizcaya.
Fecha: 2021.
Superficie: 148 m2.
Fotografía / Infografía: Biderbost Photo.
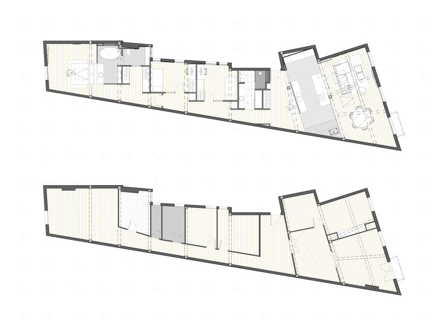
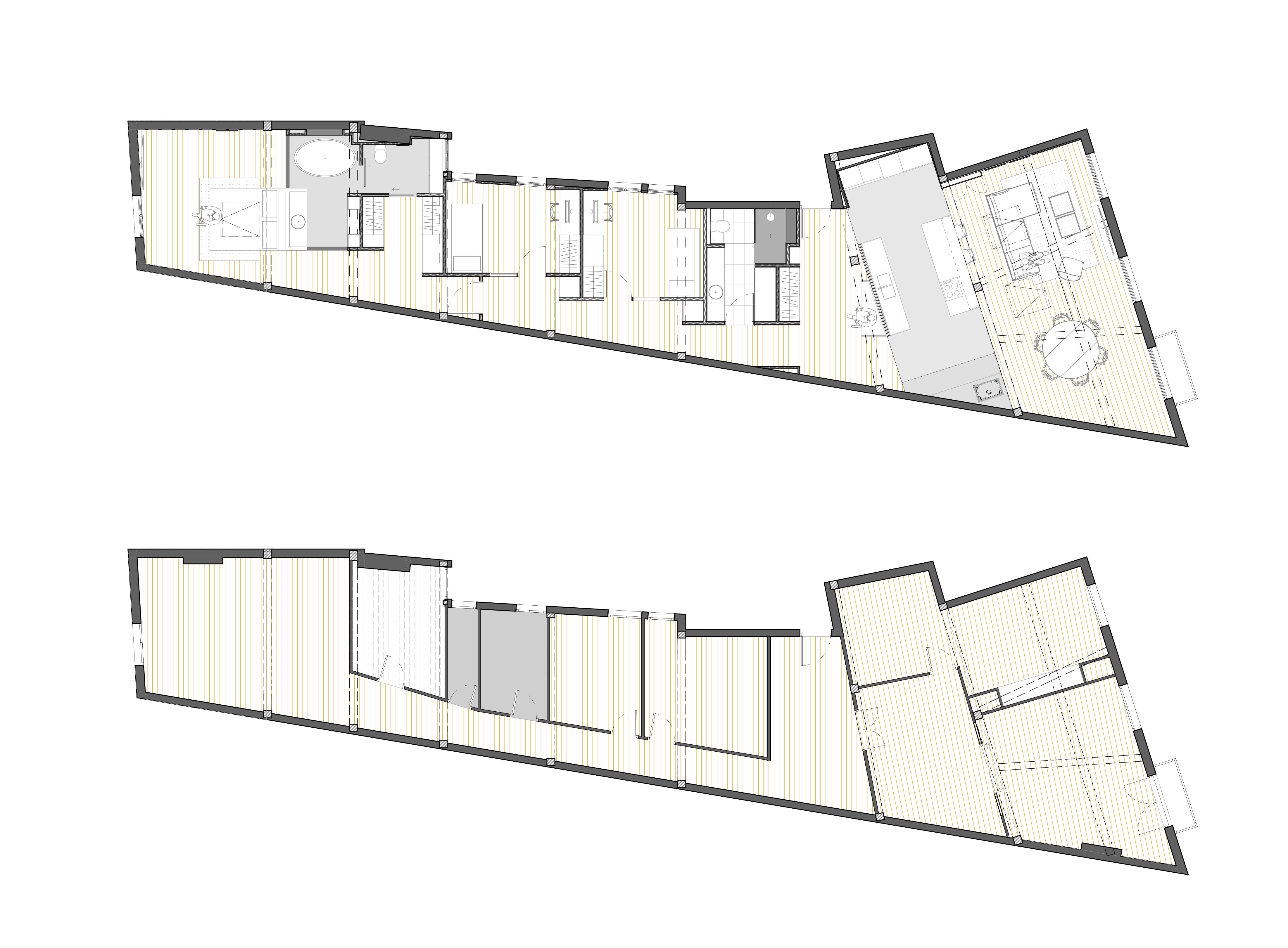
La vivienda está en la penúltima planta en un edificio de estructura de madera en el centro de Bilbao.
La estructura en general y la distribución de la vivienda estaban completamente obsoletas. Tras la demolición completa de la tabiquería y techos de la vivienda, hubo que realizar un detallado trabajo de localización y reparación de la estructura de madera.
La dificultad de la planta de ésta vivienda es que es estrecha y muy larga por lo que un largo pasillo era inevitable. El proyecto debía pues sacarle partido a éste y dotarlo de una personalidad interesante.
Los dos espacios de los extremos (salón-comedor y habitación principal) se hayan bajo la cubierta inclinada del inmueble por lo que gozan de mayor altura. El pasillo que conecta estos dos espacios ha sido diseñado en diente de sierra de modo a crear pequeños espacios de estar con estanterías de apoyo.
Otro elemento que caracteriza la vivienda es la modulación de los espacios con diferente altura. En el recorrido salón, cocina, pasillo habitación principal, las alturas van cambiando debido a la estructura de madera existente y creando un juego de luz y volumen muy dinámico.
Como se puede apreciar, el salón – comedor – cocina y hall de entrada son un espacio abierto que usa una celosía y las islas de la cocina para crear filtros visuales del espacio.
La habitación principal también está completamente abierta al baño y al vestidor.
客服
消息
收藏
下载
最近





















