查看完整案例

收藏

下载
-Name | 项目主题-
寂韵素舍
-Project name | 项目地址-
湖州·春辰里
-Spatial properties | 空间属性-
平层
-Area | 项目面积-
户型面积109㎡
客餐厅
/ 空间
REGION
客餐厅的整体设计随性而舒适,木质家具散发着柔和的质感,营造出温馨的氛围。墙上的装饰画为苏静的墙面增添了细节与艺术感。
The semi open design of the curtains not only ensures privacy, but also allows the scenery outside the window to be faintly visible, adding a sense of mystery and fun to the space
餐厨一体的开放式设计,加上素净的墙面与柜体,展现出干净利落的视觉效果,洞石岩板岛台质感温润,搭配黑色餐椅,增添了几分沉稳。
The semi open design of the curtains not only ensures privacy, but also allows the scenery outside the window to be faintly visible, adding a sense of mystery and fun to the space
主卧
/ 空间
REGION
房间以柔和的米色为主色调,光线透过轻薄的白色纱帘洒入,让人仿佛置身于宁静的世外桃源,心灵得到深度的放松与慰藉
The semi open design of the curtains not only ensures privacy, but also allows the scenery outside the window to be faintly visible, adding a sense of mystery and fun to the space
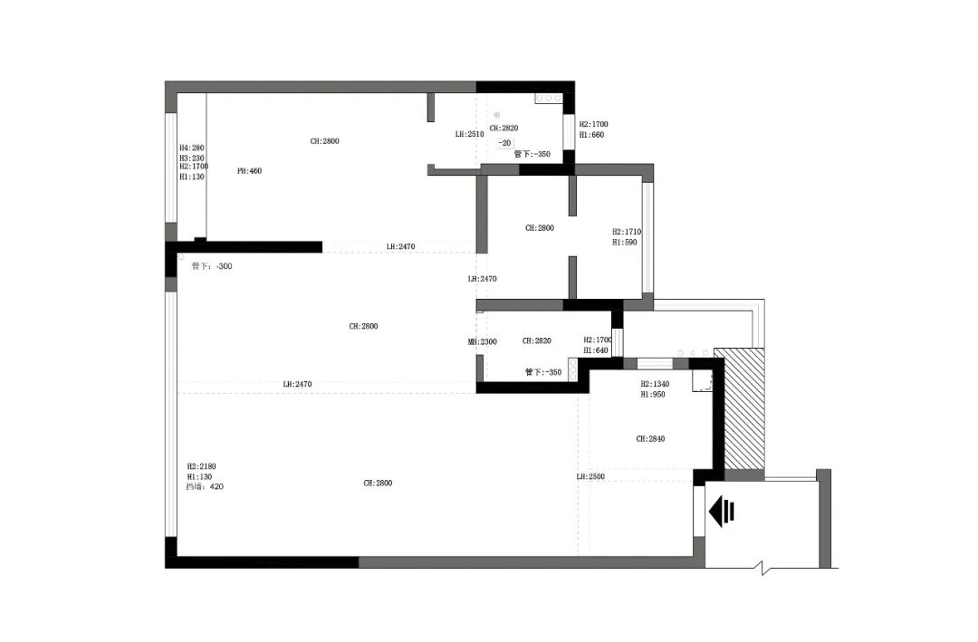
○ 原户型'Plan sketch
客服
消息
收藏
下载
最近
























