查看完整案例

收藏

下载

翻译
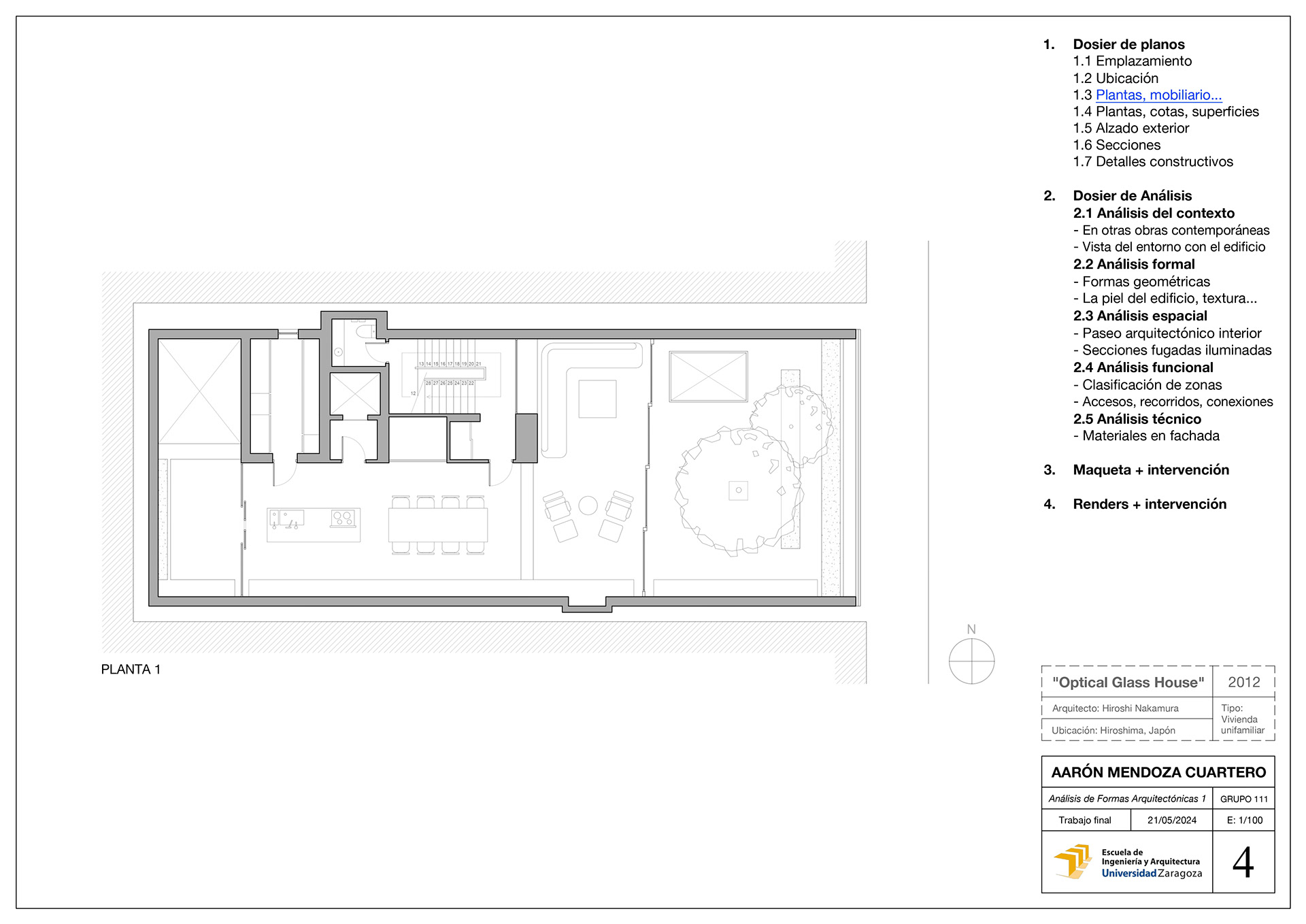
Proyecto final de Análisis de Formas Arquitectónicas 1.
Análisis de la vivienda "Optical Glass House", del arquitecto Hiroshi Nakamura.
Finalizada en 2012 y situada en Hiroshima, Japón.
Esta es la parte más técnica. Muestro las portadas de cada apartado y unas cuantas hojas de muestra
客服
消息
收藏
下载
最近



























