查看完整案例

收藏

下载

翻译
CONTRASTES
SUITE DE HOTEL
En el acceso, predominan los tonos monocromáticos y los materiales fríos como el mármol blanco, el metal negro y los reflejos espejados. Esta combinación transmite una sensación de orden, elegancia y modernidad atemporal, evocando el carácter público y representativo del hotel.
En la suite, en cambio, los materiales se vuelven más cálidos y orgánicos: madera natural, textiles suaves y vegetación interior. La iluminación cálida indirecta refuerza el carácter íntimo y relajante del espacio. Este ambiente invita al huésped a desconectarse, ofreciendo un refugio sensorial que contrasta con la solemnidad del acceso.
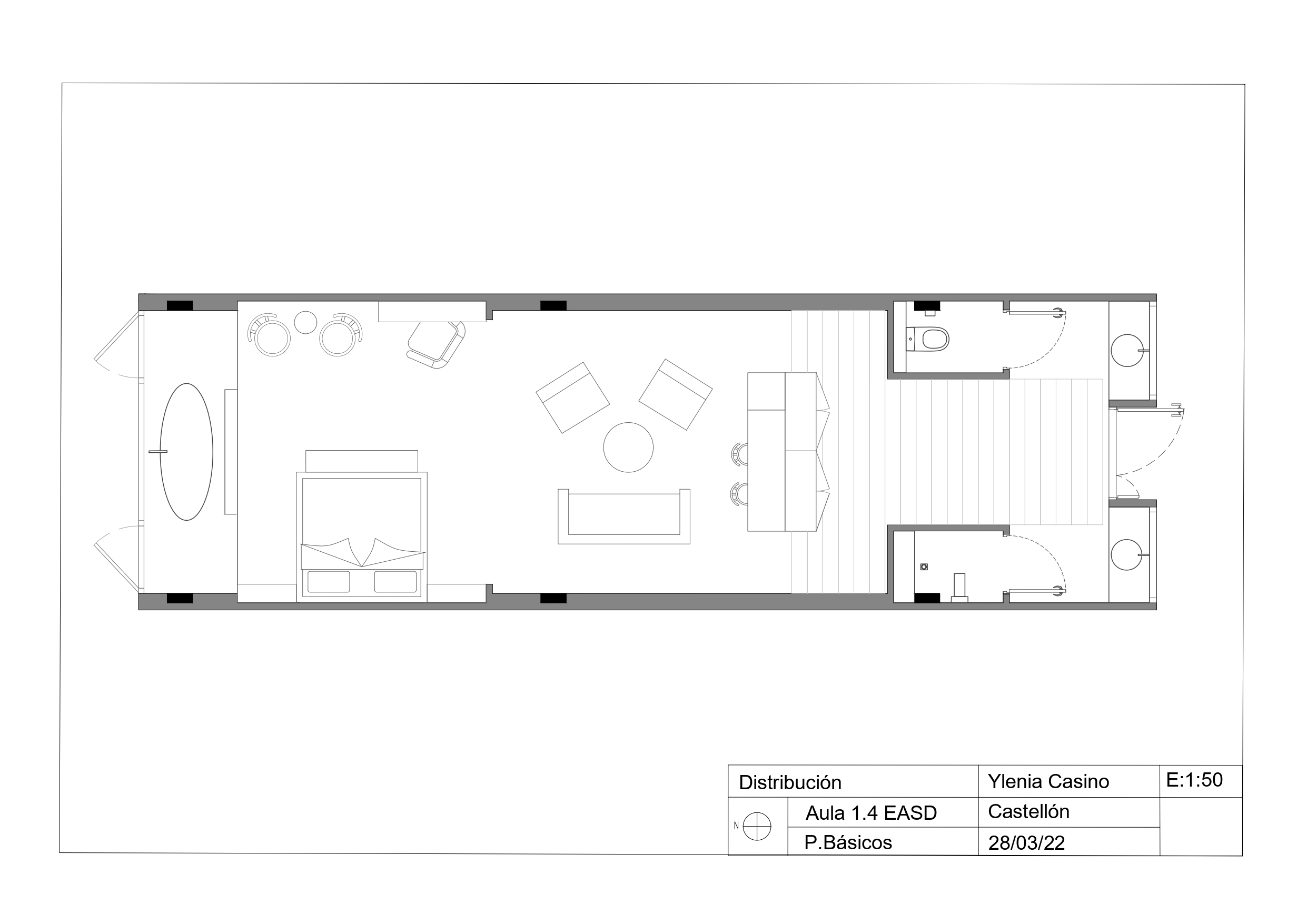
La ubicación del baño al inicio de la suite no responde únicamente a un criterio funcional, sino también a una intención conceptual y experiencial. Este planteamiento redefine la manera en que el huésped se relaciona con el espacio, estructurando la suite como una secuencia de sensaciones: de lo público a lo íntimo, de lo práctico a lo emocional.
El interior de la suite se concibe como un espacio contemporáneo, cálido y envolvente, donde la funcionalidad hotelera se une a una atmósfera doméstica y relajante. El diseño busca que el huésped no solo ocupe un lugar de paso, sino que viva una experiencia sensorial completa, marcada por el confort, la intimidad y la conexión con lo natural.
客服
消息
收藏
下载
最近










