查看完整案例

收藏

下载

翻译
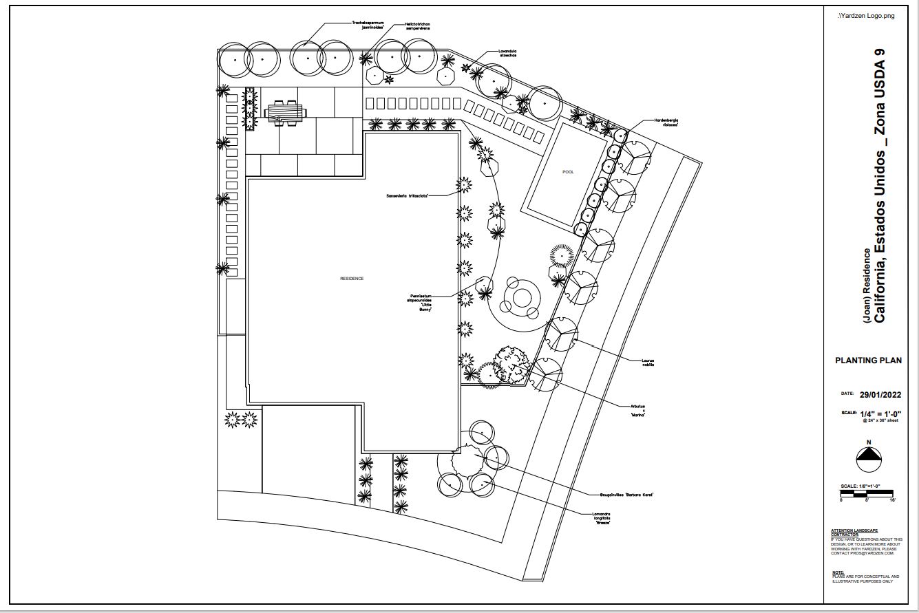
The project focuses on the transformation of an outdoor space for a single-family home, considering key elements. It includes a detailed planting plan, landscape design with durable materials, and a styling plan with purchase options. Night lighting is specified in another plan, and photorealistic 3D and illustrative 2D renderings are provided. All drawings, ready in CAD format, facilitate implementation by the contractor. This project offers a complete solution for a harmonious garden.The project focuses on the transformation of an outdoor space for a single-family home, considering key elements. It includes a detailed planting plan, landscape design with durable materials, and a styling plan with purchase options. Night lighting is specified in another plan, and photorealistic 3D and illustrative 2D renderings are provided. All drawings, ready in CAD format, facilitate implementation by the contractor. This project offers a complete solution for a harmonious garden.
Team: JARDZEN
Year: 2022 - 2023
Client: B.A. Comuna 14
Area: 441 m2
Status: Finished
Location: California, USA.
My role: Architect designer
客服
消息
收藏
下载
最近









