查看完整案例

收藏

下载
文化塑源:合于一源、分而为二
文化溯源是指通过追溯历史脉络探究文化起源与演变,是当今文化领域的热点议题之一。在合肥美术馆的项目实践中,我们从建筑学的角度审视,提出文化溯源的建筑化体现——文化“塑源”,即以一种城市雕塑的形式去塑造合肥文脉的原型。《尔雅 - 释水》中曰:“归异出同流,曰肥”,合肥就是因东、南淝河发源于此,合于一源、分而为二,故称合肥。因此方案以两个中心对称的多曲面形体相交叠来表现两水相汇、合于一源的灵动形象。美术馆屋顶的起翘和交错的曲面就像是一朵凝固的白色浪花,恰好就落在了这天鹅湖畔。
▲设计理念
▲东北鸟瞰
▲东南鸟瞰
▲北入口广场鸟瞰
▲东北透视
▲东南转角透视
归异出同:形式、空间与结构的一体化设计
在这次实践中,形式、空间结构的一体化设计是我们的追求。四个混凝土卷筒作为结构核心,限定出展厅空间的同时,又塑造了流动的公共空间——峡谷般的廊道及位于“交汇的中心”的中庭。再结合两大空间、结构亮点——主入口桥式桁架、大尺寸悬挂旋转楼梯(半径约6.12米,由8根钢索悬拉,其独特挑战性属国内罕有),进而形成了“多种类结构构件组合的复杂多层结构体系”。
▲结构体系示意图
▲3D打印工作模型
▲中庭—“交汇的中心”
▲“交汇的漩涡”与开幕大厅
▲“峡谷”走廊
流光游影:时空游走中的感知艺术
通高天窗引入的光束,在混凝土卷筒的弧形表面,投下漫步的光影,让人们一步入美术馆时,便能接受光的洗礼。中庭上空巨大、悬浮的铜色旋转楼梯,犹如“交汇的漩涡”极为震撼,既是视觉的焦点,也是驱动空间流动的核心,引导着来访者在循迹而上的过程中接近天空,在沿梯盘旋时回望与对视。水平通廊“峡峙”在南北两侧高大的混凝土“卷筒”之间,上方细长的天窗引导天光顺着“峡谷”侧壁向下蔓延,令人犹如漫游在水墨峡谷之中。
▲“交汇的漩涡”-旋转楼梯
▲回望与对视-旋转楼梯近景
▲流动的核心-旋转楼梯近景
▲“峡谷”走廊的漫射天光
▲“峡谷”走廊的多重流动空间和走廊西端“城市画廊”
我们之所以关注空间流动性,是因为它带来了人的流动、视线的流动,以及光影的流动,正是它们构成了空间动态感知的核心要素,同时亦和人与艺术品的交互异曲同工。因此,整个公共空间本身就可以成为一件艺术品,观众身处其中步移景异,从不同角度去发现不同的美。这也是建筑师的愿景,即通过设计去引发公众对美学自主的探索和发现。
▲空间细部-天窗、栏板、廊与梯
▲跃动回转——旋转楼梯细部
▲开幕大厅
▲1号大展厅
▲5号小展厅
▲黑与白-边庭楼梯
▲咖啡厅及艺术商店
转译:传统技艺的当代表达
在设计之初我们就研究了合肥的传统美术工艺,其中有一项“烙印葫芦”和“吴山铁字”对我们很有启发。我们希望通过转译的方式将传统工艺“映射”到设计中。
“桂花”浮雕UHPC幕墙
“烙印葫芦”是利用烙铁在葫芦上进行类似“凹浮雕”的创作。以合肥市花桂花为母题设计了一套“桂花”浮雕UHPC幕墙。设计充分发挥其新材料高强度的性能优势,单块UHPC尺寸为2.4m X 6.0m,可无需龙骨仅靠上下端直接连接上下层板间。每块单元板包含10个1.2mX1.2m四孔交织的桂花正方形花格,远看虚实有序,近看又有层岩与石雕般的表面和细节。
▲UHPC幕墙细部及合美LOGO
在照明设计方面,利用桂花图案的镂空孔洞内侧下部嵌入安装LED点光源,结合立面穿孔参数化设计的虚实渐变效果,营造出远观如繁星点点,近看如金桂满枝的典雅艺术氛围。
▲东北鸟瞰夜景
▲东南鸟瞰夜景
▲北广场夜景透视
▲“金桂飘香”-UHPC近景灯光效果
“巢湖金粼”铜画卷幕墙
“吴山铁字”则是以锤代笔,以铁作墨,是一种金属的锻打工艺。我们借助锻打工艺,以3种不同尺寸的“铜画卷”(共9286片,尺寸为高300mm,长度500 - 600mm不等),通过像素化组合形成图底关系抽象的表现了石涛《巢湖图》独特的漫卷波涛,在面向主干道的东立面构建了一幅巨幅“巢湖金粼”铜画卷。“铜画卷”模块在平面方向上卷曲成“U”字形态,其开口方向和弧度使其视觉效果借助光影随着视角移动造成的微妙视差效果,形成波光翻腾的“动态图像”(随南北方位视角变换,还能形成图底关系反转)。使静态的幕墙兼具了动态的效果,也为建筑赋予了更多的美学维度。
▲“巢湖金粼”铜画卷幕墙
▲“巢湖金粼”铜画卷幕墙细部及内侧
▲铜画卷幕墙过程推敲模型
结语
合肥美术馆以崭新的姿态伫立于巢湖之滨,以极具辨识度的建筑语汇与空间形态激荡着现代艺术的创新活力。她是镌刻着城市印记的文化新地标,亦是绽放着当代艺术活力的美学新高地。
▲西北清晨鸟瞰 技术图纸
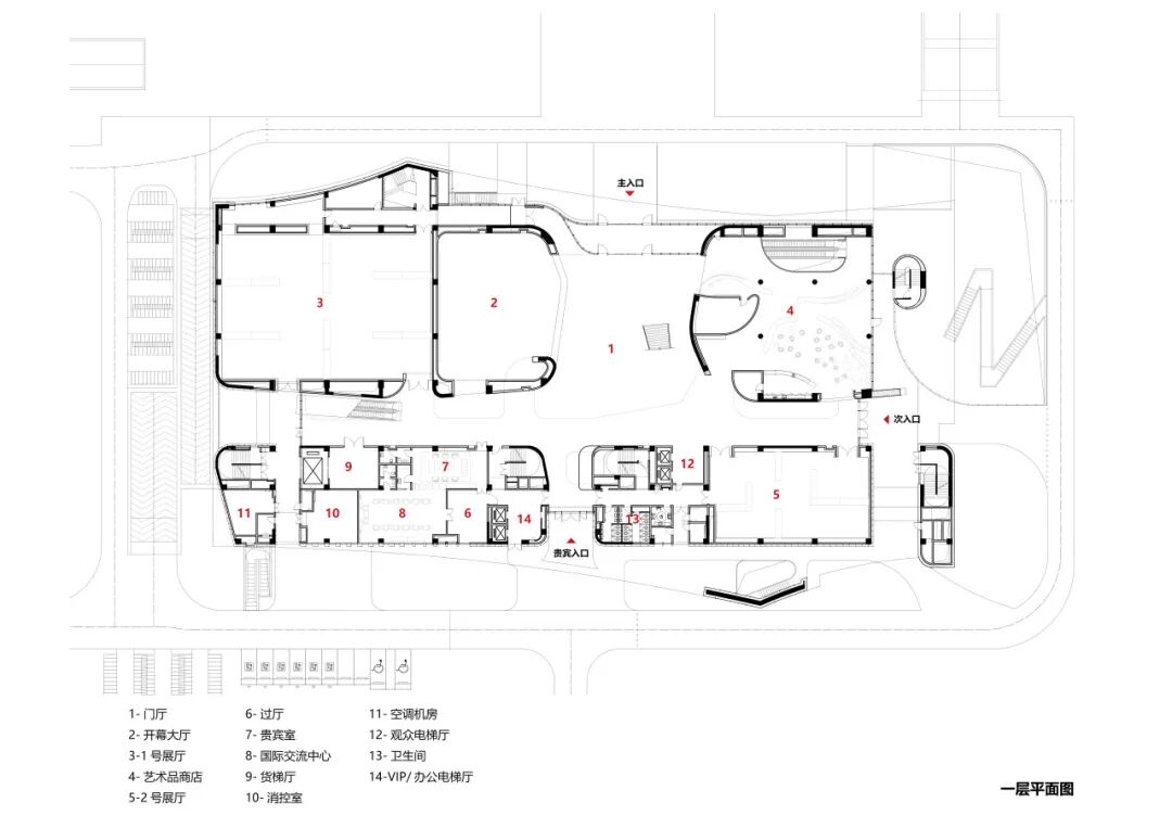
▲一层平面图
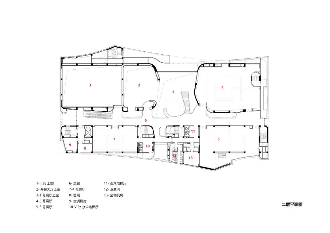
▲二层平面图
▲三层平面图
▲四层平面图
▲地下二层平面图
▲地下一层平面图
▲屋顶层平面图
▲屋顶百叶平面图
▲屋顶构架平面图
▲剖面图
项目档案
项目名称:合肥美术馆
建设单位:合肥市文学艺术界联合会
代建单位:合肥市重点工程建设管理局
设计单位:同济大学建筑设计研究院(集团)有限公司 建筑设计四院
设计时间:2018年12月
完成年份:2025年9月
项目地址:安徽省合肥市政务区文博园
建筑面积:36000㎡
设计团队
项目总负责人:江立敏,谭劲松
建筑团队:张煜,罗溪,徐艳,秦宇洁,巢静敏,刘镕玮,马雪松,蒋伶佼,邱楚懿
结构团队:刘冰,殷维忠,程睿,张硕,沈葵,洪祎,高路巧
给排水团队:任军,金伟格,葛佳春
电气团队:顾玉辉,罗颜,蔡猛龙
暖通团队:钱必华,徐伟鹏,陆袁
幕墙团队:田利军,陈伟庭,欧阳海强、吴金剑、张磊
岩土团队:张准,刘佳星
照明团队:杨秀,卞晨,顾兴花,徐霞青,温海兰,马玥,刘苏玥
景观团队:何强,林久钞,李莉娟,刘媛媛,周耀辉,詹丽
室内方案设计咨询:上海热气建筑设计有限公司
展厅设计咨询:南京金鸿装饰工程有限公司
摄影:马元、罗溪
客服
消息
收藏
下载
最近





















































