查看完整案例

收藏

下载

翻译
MODA HOME FACTORY
"Showroom & Administration Space"
Freelance Project
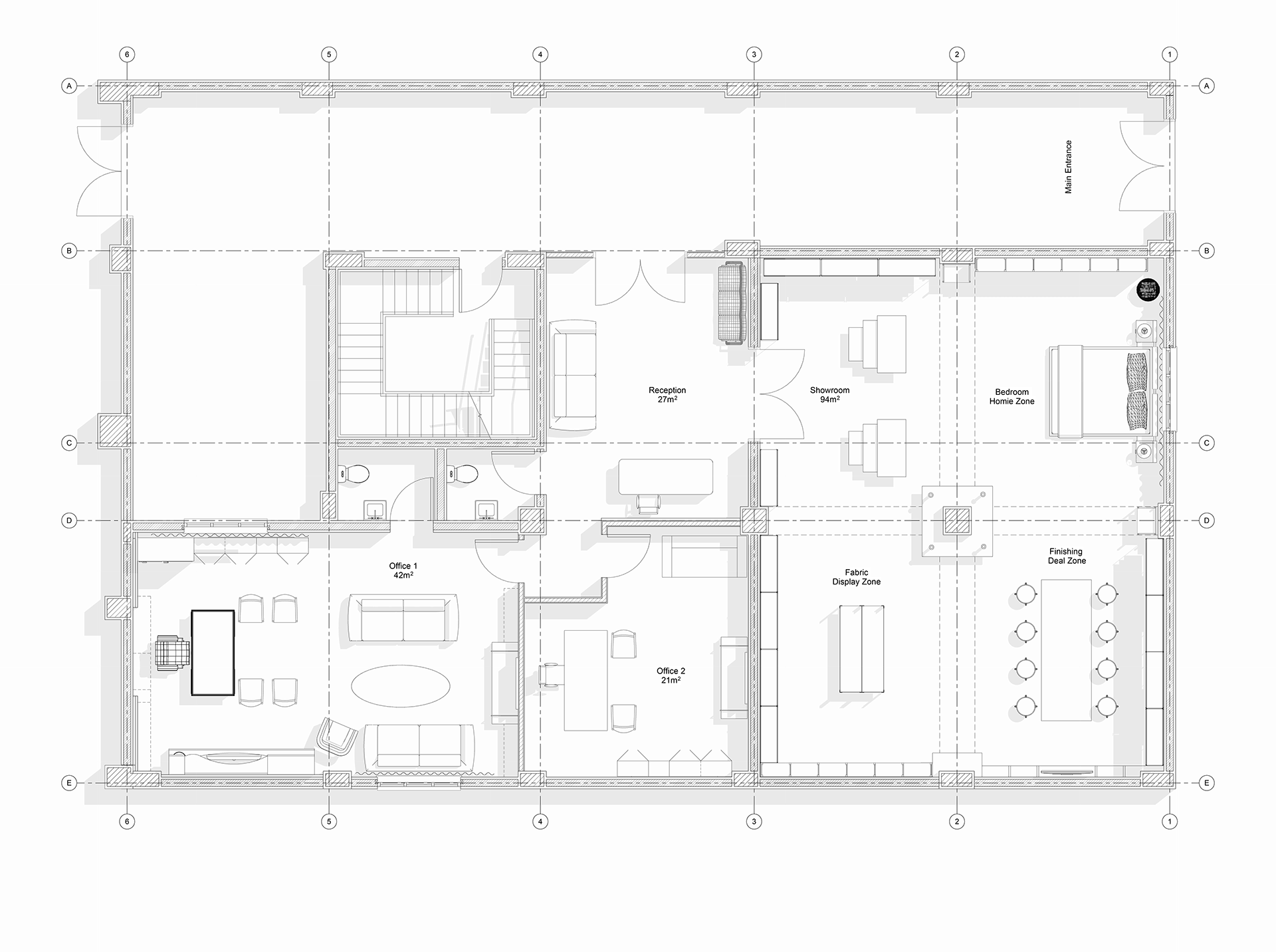
Location: Salah Salem Street, Cairo, EgyptType: Factory Administration Space & Showroom SpaceCollaboration: Moda Home Company
Area: 200sqmYear: 2025
About:
From initial site conditions to a fully developed corporate environment.
This project was designed as a dedicated business presentation space that reflects Moda Home’s brand identity while supporting administrative efficiency. The showroom facilitates structured product presentation for partners and stakeholders, while the administration area ensures privacy, productivity, and seamless operational flow.
A transformation shaped by clarity, material warmth, and spatial functionality.
客服
消息
收藏
下载
最近













