查看完整案例

收藏

下载

翻译
Architects:Fpoles Arquitetos
Area:413m²
Year:2024
Manufacturers:Alus Esquadrias,M2 Marmoraria,kitchens
Lead Architects:Fernando Poles, Tiago Martins e Fábio Chaves
Category:Residential Architecture,Houses
Landscape Architecture:Gustavo Carvallho
General Construction:JJ Lima, Fábio Sobrano
Engineering & Consulting > Lighting:Aluxe
Engineering & Consulting > Structural:Engenheiro Wagner
City:São Paulo
Country:Brazil
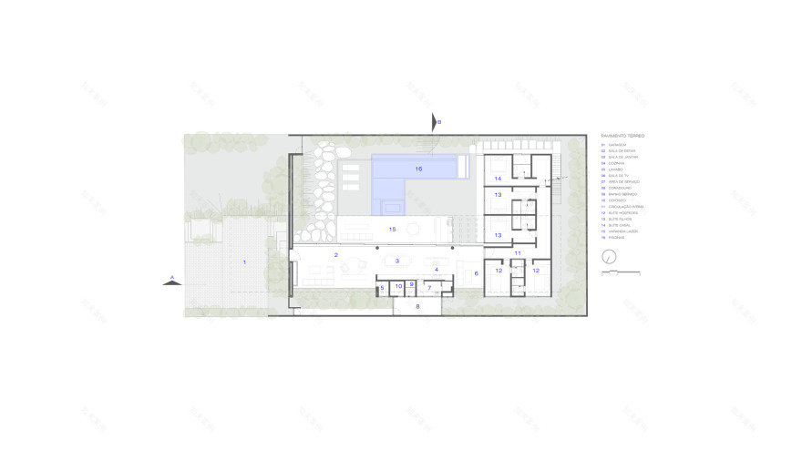
Text description provided by the architects. A large canopy defines the house’s principal feature: it extends from the living area to the garage, blurring the boundaries between inside and outside in a single fluid motion. It is not merely a shelter; it is an invitation. Beneath it, the spaces merge and cease to compete with one another, simply coexisting.
The chosen materials do not vie for attention. White imposes itself as a necessary silence, a backdrop that returns the spotlight to the gardens. They are the ones that speak first, through texture, color, and the movement of light throughout the day. The architecture steps back so that the landscape can come forward.
This gesture of retreat, however, is not absence. It is precision. Every surface, every transition between materials was designed to create distinct sensations without breaking the continuity of the space. The exposed concrete dialogues with the smooth plaster; the floor that emerges from within continues outward without interruption. The physical boundary exists, but the sensory boundary dissolves.
The central courtyard is where this logic reveals itself most clearly. It ceases to be a passageway and becomes a place, a space for socializing that both social and intimate environments share at the same time. When the windows open, there is no longer an inside or an outside: there is only the house unfolding. The living room extends into the garden, the garden enters through the living room, and the courtyard breathes in the midst of it all like the lungs of domestic life.
The spaces flow seamlessly because the floor plan does not confine them to isolated rooms. The architecture here is a support, generous enough to embrace daily life without dictating it. Coziness isn’t confined to a single room: it permeates the entire house, built layer by layer through the choice of materials, the scale of the spaces, and the way natural light enters and travels through every corner throughout the day.
The result is a house that doesn’t impose itself. It exists so that life can happen within it—and, often, beyond it.
Project gallery
客服
消息
收藏
下载
最近































