查看完整案例

收藏

下载

翻译
دراسة ارتفاعات المباني
دراسة نوع الإنشاء
دراسة نوع التصميم
دراسة حالات المباني
دراسة الفراغ والمصمت
دراسة طبيعة الأرض
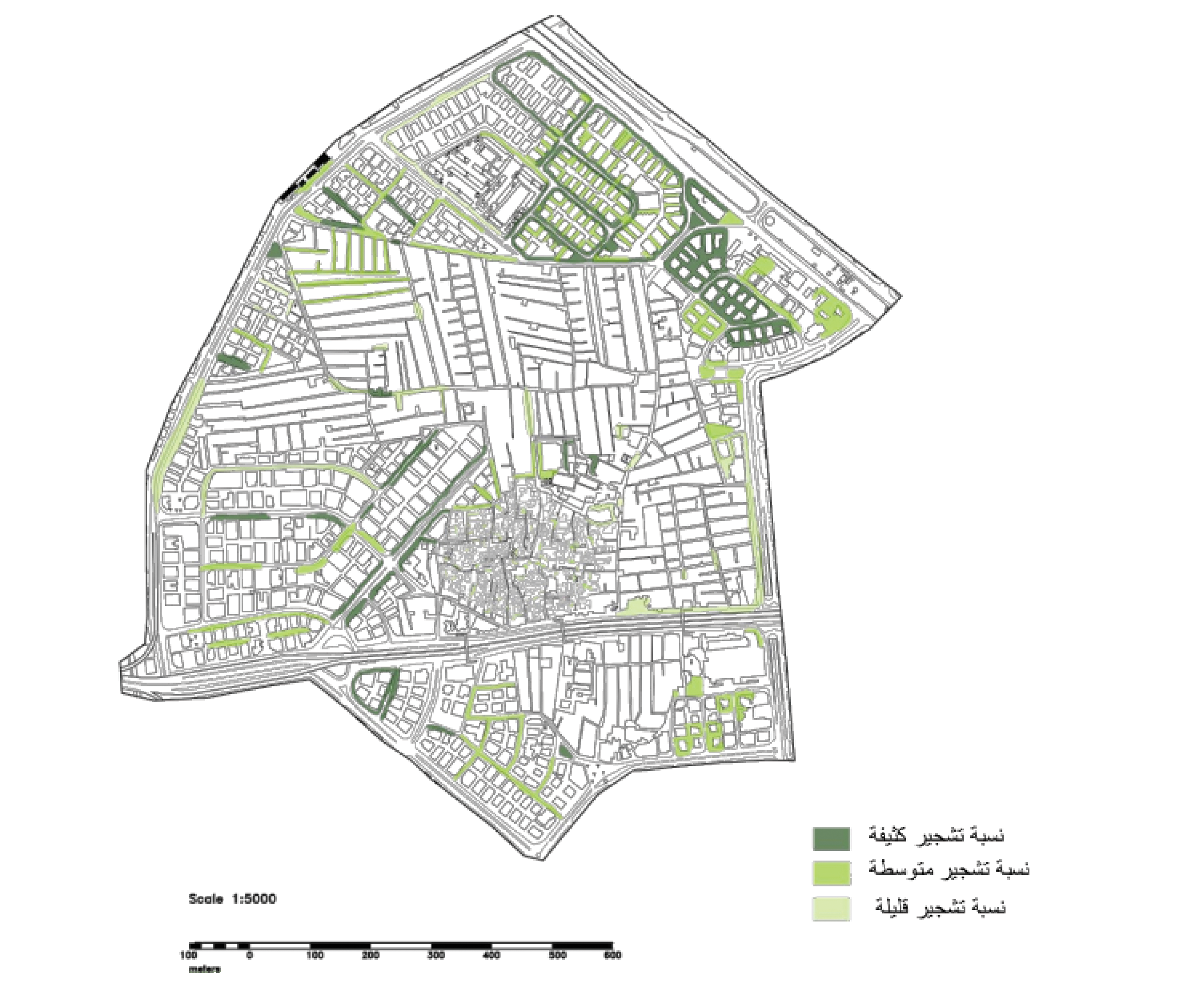
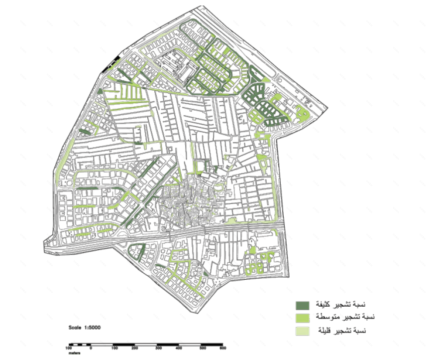
دراسة التشجير
دراسة التدرج الهرمي للشوارع
الدراسة الاقتصادية
SWOT analysis
بدائل تصميمية مختلفة لتخطيط منطقة ميت عقبة
قطاعات الشوارع للبديل الأول
قطاعات الشوارع للبديل الثاني
قطاعات الشوارع للبديل الثالث
البديل الأمثل لتخطيط منطقة ميت عقبة
قطاعات الشوارع للبديل الأمثل
客服
消息
收藏
下载
最近























