查看完整案例

收藏

下载
-1F.会客厅
不寻常的经验 不平凡的设计
从梦中涌出来 在家中变幻出多少新奇花样
舒阔尺度 融入日常生活的每一刻
优雅与精致在空间里缓缓铺展
不同功能角落于此和谐相融
海浪一般的天花敲击 弹奏
相映成趣 共同演奏家的旋律
在冬日写信 也可以很温暖
炉火的身侧 肉桂与橘皮的香涌上来
空气中滚出思念前调
我和你 安宁的我们
融化冬天的月光
节奏改变律动 从夏天荡到冬天
四分之一圆的边缘融化光线
星星眨眼 跳动
落下的光线在黑白琴键上轻盈得 天荒地老
音符的轮廓也清晰浮现在家中
舒畅 惬意
家人之间 总是这样爱着
-1F.餐厅
顺着海浪的指引 到达另一侧 大自然的明眸从天井穿透而下 温情内敛的氛围悄然沉淀于空间框架与圆融线条的平衡里 不同家具打造多重生活场景 为三餐四季平添诸多乐趣 滋养旷日持久的美丽
真正的奢华,是空间的留白与静谧。独立却开阔的一个个生活场景,构筑清晰的功能分区。光线铺成出明暗交错的韵律,在自然的晕染下,用餐的仪式感愈发浓厚,让家人相聚的时光温馨四溢。
-1F.电梯厅
进退有度的厅 唤起内心的新
木质与简约色彩
设计纯粹 却包罗万象
眼前的遮挡 洒脱的敛藏
长廊的延伸 自由地驰骋
家的答案 就是现在触手可及的天地
1F.会客厅
世间万千的美好意象,化作家居灵感碎片,轻轻拾起再好好放置,衍生出更多温柔的可能。身心与设计同频共振,让居者于此,安放身心,拥抱生活的温柔回响。
自由不必一直行走远方,也可以让全世界的山海在家里相逢。柔软与坚硬,松弛与静默之间,在阳光下小憩,蜷在软榻读半页诗,陷进黑色扶椅发呆,自在呼吸,光影和思绪,在这里一同慢下来。
听水流声轻轻落下的细碎,空间的边界在此变得柔软。
远处的纱帘与光影,和眼前的瓶盏、台面连成一片。
不急着斟满酒杯,让一切发生的事物,都在我们的心里再发生一次。
1F.书房
早晨的花很薄
午后的影子又大又轻
风侧过身穿越院子
在新鲜的书房墙上 思绪开始生长
不仅找到等待好光景的韧力
而且找到承纳好光景的状态
翻阅 聆听 我们坐着 不说话
就十分美好
1F.门厅
天有不同的蓝 云有不同的软
穹顶的天井 是天空递来的情书
石柱沉默如岛屿 壁灯是岛上的星
漏下的阳光和云朵的影子私语
归家的人 在长椅上稍作停留
一只梦的蝴蝶从门外飞过
开出金色的花
1F.卫生间
生活是河床,爱是不断续的河流。
镜面嵌在石墙的缺口里,纹路像被风揉皱的沙岸,起伏的边缘,闪耀不败的霞光之歌。
1F.楼梯
深爱星辰 乃至不惧黑暗
精心设计下 黑暗也不显得拥挤
黑色楼梯 慵懒 随性却神秘
半墙的缺口是光的邮差 把空间的暖意 悄悄递到了向上的路上
2F.公子房
成长这件事本身就滋生孕育着幸福。这是一个为生长而存在的场域。
蓝与白的碰撞,明黄的点缀,空间未被填满,留下足够的空白。
在可触摸的温暖与自由里,孩子慢慢长成一个独立的、完整的人。
2F.衣帽间
孩子成长的微光
如春芽破土般 带着懵懂与倔强
白与木色交织 似晨曦轻吻大地
光影流转 如童真蹁跹起舞
于挑选间 触摸自我
于收纳中 学会秩序
爱 便是在这成长的幽径旁 悄然铺展
2F.书房
千千万万种风貌诠释童年的欢喜
爱护住这美妙的阶段
一朵花 一颗果子
一片朦朦胧胧的聪明
一种永远不息的活动
少年的书桌上没有虚度的光阴
悠悠拨动梦想启航的琴弦
伴他在人生的漫漫征途上
绽放出属于自己的璀璨光芒
2F.实验室
喜爱探索是人类的天性,善于探索是天才的本领。
这里没有封闭的窒息感,天井与轨道灯共同编织着光的网,让风可以自由穿行。
实验时,连呼吸都带着光的味道,那是探索的勇气,是未知的甜美,是成长路上最温柔的诗行。
3F.主卧
舒适居住,是色彩与光影的和谐陈述。阳光从窗户漫入,窗外城墙如古卷铺展。躺在这样的主卧里,但觉风过群山,花飞满天,内心安宁明净却又饱满,连呼吸都染上蜜色,美好得像未写完的童话。
3F.衣帽间
美是一种自然性。她站在中央,自有一种神性。
悬空的梳妆台像一片被风托起的云。镜中映出无限延伸的拱廊,每一个拱顶都藏着光的秘密。
优雅在这里不是刻意的装饰,而是空间的本质。
3F.浴室
让我们享受人生的滋味吧,如果我们感受得越多,我们就会生活得越长久,恰如这浴室的注脚。
当她走过,空气会记住她的香气,浴缸里的涟漪缓缓扩散。
舒适从不是刻意的堆砌,而是让每一寸感官都恰到好处。
3F.书房
真正的美无需刻意 它自然存在
书房的极简 不是贫乏 而是经过筛选后的丰沛
它的沉稳 不是沉闷 而是深思熟虑后的从容
在这里用最少的色彩 呈现出最深邃的光影变化
而每一本书都是伙伴 每一次沉思都是与伟大灵魂的对话
-2F.电梯
轻松愉快走进电梯,金属框架如极简主义的笔触,在空间中勾勒出透明的几何诗。张国亮的雕塑《坐拥梦想》立于左侧,世界就在面前。每一次升降都成为向梦想靠近的旅程。
-2F.入户门厅
通透感不来自空旷,而来自精确的取舍。每一道圆弧都经过计算,每一寸空间都经过丈量。少即是多,这里用最少的线条,勾勒出最丰富的空间层次。每一次归家,都是空间旅行一般的享受。
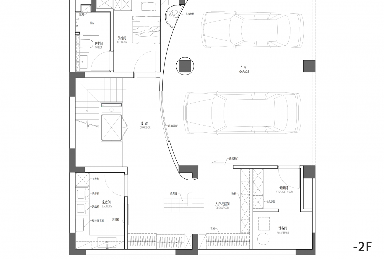
-2F.车库
拓展有限的空间,延伸到无限的时间里。穹顶如新月垂落,柱身圆弧镶着鎏金的英文字母,那是爱意与温暖的永恒投影。打开车库门归家的每一刻愉悦,都成为触摸爱与家的甜美时刻。
1F.庭院
停留吧 在这里
你只需站在阳光下
看橘子树结果 风穿过叶片
感受大地的低吟
活成自然的一部分
允许自己 被此刻的美好彻底浸透
空间是光的容器,也是声音的剧场。家,恰似一曲永远未完的协奏曲。这方空间的设计,最终成就了生活的和声。晨雾中翻书声与咖啡机的合鸣,暮雨里钢琴与壁炉柴火的私语,都变得像四分音符一样活泼。家的天籁,不是舞台上的完美演奏,而是渗进每寸空间肌理的温暖回响,藏着最真实的陪伴与默契。让每个日常瞬间都成为艺术的载体,让家的温暖在音符中永恒流淌,让每个设计细节都成为爱的注脚。
项目地点:江苏 南京
室内面积:536㎡
空间性质:别墅
项目进展:已交付
合作模式:全案设计 全程托管
项目设计:观享际SKH室内设计
项目施工:观享际SKH室内设计
项目软装:观享际SKH室内设计
空间摄影:丛林
部分品牌:Swift电梯、铂睿思五恒、RARA全屋定制、威法全屋定制、维赢智能、米兰之窗门窗、林内热水系统、朗穆地板、汉斯格雅&雅生&TOTO洁具、利勃海尔朗斯淋浴房、盘石石材、德国WULFF床垫、铜瑞金属、罗曼缔克陶瓷、欧西凯岩板海聆梦、罗格朗、迈卡伯防水、ASKO方太、美国利佰特泵业、欧施泥艺术涂料、德国倍世净水、予美风尚、慕冠家居、陈星宇、鸢美空间
设计时间:2024年9月-2024年11月
施工时间:2024年11月-2025年12月
客服
消息
收藏
下载
最近













































































