查看完整案例

收藏

下载

翻译
Architects:aceboXalonso studio
Year:2025
Lead Architects:Victoria Acebo, Ángel Alonso
Category:Houses,Renovation
Quantity Surveyors:Javier Gonzalez, Javier Mach
Construction Company:Fernando Roca. Buril estudio
City:Madrid
Country:Spain
Text description provided by the architects. In 1971, the then-owners of a row-end single-family home located in one of the historical neighborhoods of Madrid incorporated into it one of the iconic objects of the imagery of developmental Spain: the blue pool. For their private use, they decided to build a pool, sacrificing nearly all of the twenty-eight square meters that made up the backyard of their home, which until then had been a place for children's revelry and a respite from domestic tasks. It is possible that the decision was made simply in response to changing circumstances: with the children grown and the housekeeper working outside the home, the yard fell into disuse; or perhaps, it was the pool, as a fantasy imported from postcards of sun and tourism, that managed to carve out a place as a desire among other domestic needs.
In any case, the blue pool arrived to join a series of interventions that had been taking place on the house since it was built back in the 1920s to address the housing shortage in the working-class neighborhoods of the capital. The house, through additions, repairs, and DIY actions, had drifted away from the original model and transformed into a collage of bodies that operated dysfunctionally among themselves. When the blue pool arrived, it not only deepened this process but also managed to erase its working-class origins, giving it a new identity of a more hedonistic, individualistic character that was also more in line with the late Francoist society that was fully entering capitalism. The blue pool, in reality, was not just another element in that collage, but a metaphor for the dreams of that emerging society.
When we first visited this house in 2021, we found a sort of shabby palimpsest to which accessories such as awnings, antennas, or wiring had been continually added... Despite the gentrification process that the historical neighborhood was undergoing, the abandonment in this place was palpable, and the glamour (if it ever had any) was pure decay. Only the old pool from the seventies, chipped and showing successive layers of paint in different shades of blue, remained, awakening hopes. Not only had the imagery of the bourgeois house with a pool survived over those fifty years, but it had also been reinforced due to the real estate drift that the city was experiencing. An imagery frozen in time and without evolution.
The actions proposed for this house aimed to update it and bring it into the 21st century. Conservation, restoration, cleaning, removal of negative impacts, and recovery tasks were undertaken in an effort to rescue, as much as possible, the original model and adapt it to the circumstances of the new owner family. Along that path, there was a shift from the static and scenographic imagery promoted by the blue pool to a more complex, dynamic, and active one.
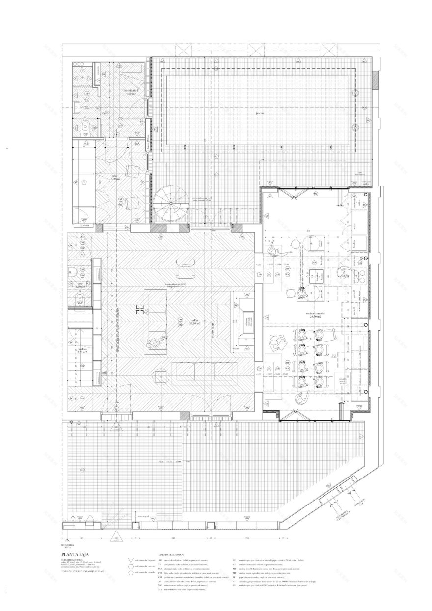
That backyard that had been occupied years ago was reclaimed without having to give up the pool. Without entering into contradiction, both realities were validated as possible. The place assumed different roles and transformed into a mechanism capable of collaborating in the environmental management of the house. Through a mobile platform measuring 6.60 x 2.60 meters, and in just a few minutes, the yard can become a pond, pool, or swimming area, making the presence of water a seasonal option that transforms domestic dynamics. The aesthetic decision to abandon the pool blue color in favor of green aims to establish connections with the memory of the place, specifically with those architectures, such as cisterns or tanks, which propose other ways of relating to water. Also, being aware of water scarcity, the old installations were optimized to influence recirculation, and moreover, their treatment was naturalized to discuss other forms of health.
Project gallery
客服
消息
收藏
下载
最近































