查看完整案例

收藏

下载

翻译
Учебный проект кафе на 100 посадочных мест в мкр. Верхняя Курья г. Перми
Здание располагается в микрорайоне Верхняя Курья г. Перми около берега реки Камы. Проект благоустройства включает в себя множество функциональных зон, а близость к воде и склон привели к необычным решениям - использованию настилов, лестниц и пандусов, террас, подпорных стенок из габионов, размещению на участке амфитеатра
Одной из целей проекта было создание уютного летнего пространства во дворе кафе. Были использованы декоративные посадки злаковых растений, гирлянды и современные клумбы со скамьями на габионах
Рельеф позволил создать амфитеатр из габионов для проведения мероприятий на берегу реки. Это пространство подойдет для музыкальных выступлений, представлений, собраний, лекций и т.д.
На склоне также была размещена площадка тихого отдыха с шезлонгами для отдыха гостей. Она связывает между собой лестницу и пандус для МГН, спускающиеся от кафе к реке
В благоустройстве использованы злаковые растения, можжевельник и сосны а также влаголюбивые растения. Выбор обусловлен грунтовыми условиями на участке: преимущественно супеси и пески. Также подобный выбор растений связывает участок с близлежащим сосновым бором.
Расположение здания предопределило выбор фасадного решения - скатные крыши, отсылающие с старым дачам, исторически располагавшимся на территории микрорайона, клинкерная плитка в отделке фасадов, имитирующая кирпичную кладку визуально связывает здание с Мотовилихинскими заводами, располагающимися на противоположном берегу реки.
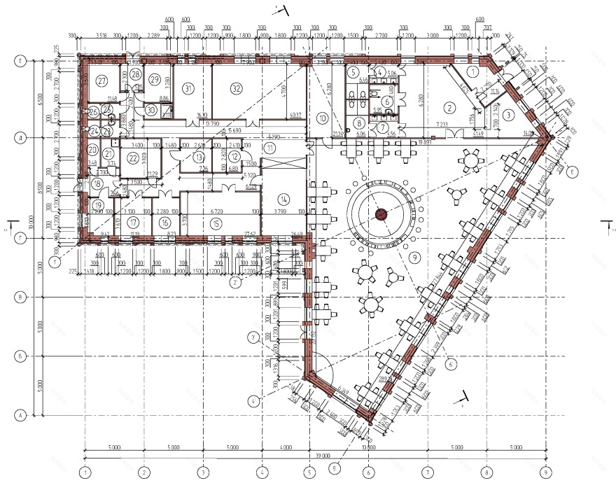
Планировочно кафе разделено на 2 функциональных зоны: кухня и обеденный зал. Кухонная зона на фасадах выделена характерными диагональными декоративными панелями, подчеркивающими связь здания с промышленной архитектурой мотовилихинского района, придающими ему динамичности, свойственной легким речным судам. Обеденный зал выделен большими панорамными окнами, из которых открывается вид на реку.
客服
消息
收藏
下载
最近


















